-
Home type
Ranch
-
Year built
1960
-
Lot size
2,447 sq ft
-
Price per sq ft
$184
-
Taxes
$765 / Yr
-
HOA fees
$285 / Mo
-
Last updated
Today
-
Views
15
Questions? Call us: (623) 777-7994
Overview
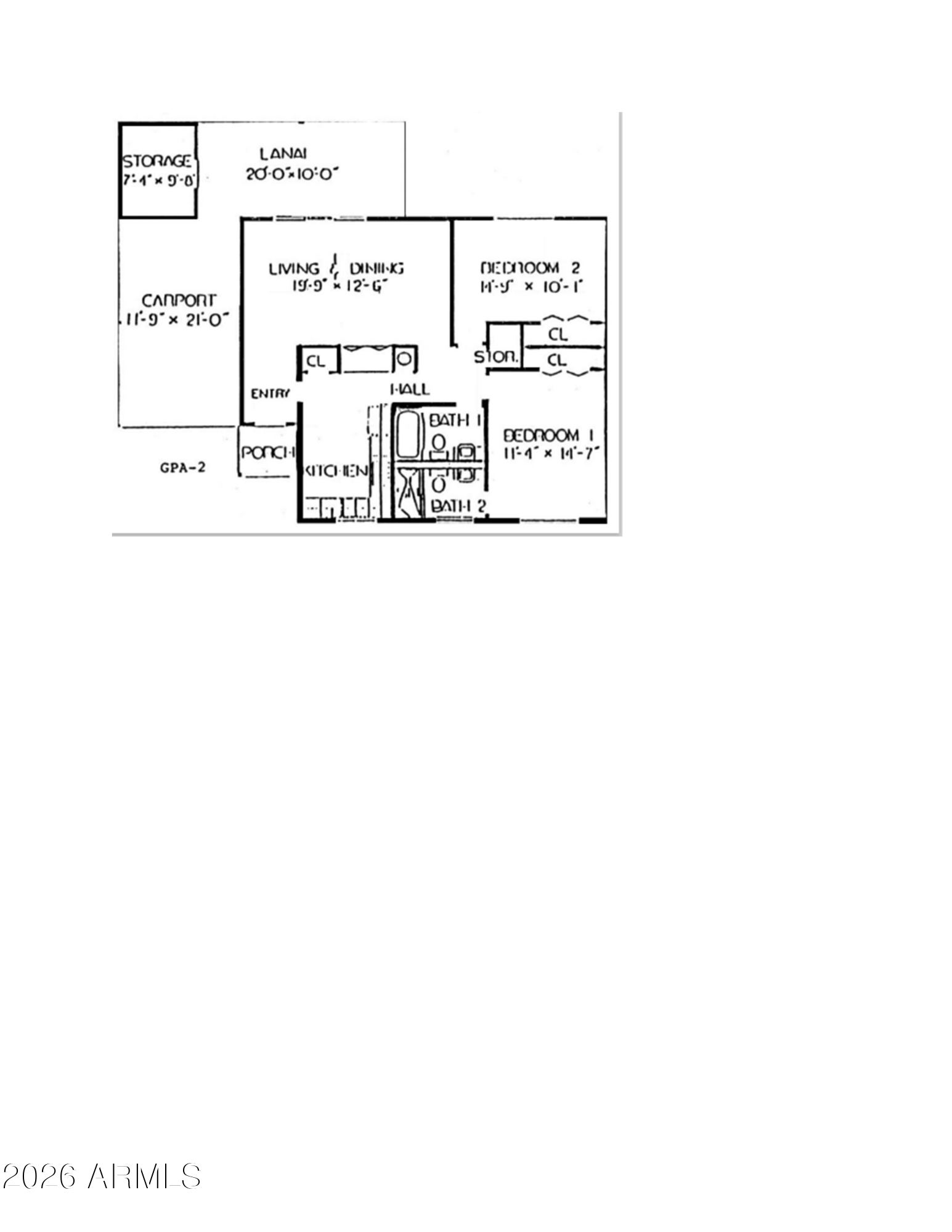
Welcome To This Fully Updated Apartment Style GPA2 Model Home On The Golf Course In Sun City, AZ. This Home Highlights Golf Course Views, Rental Eligibility, And Extensive Updates Throughout. Yes, This Home Is Rentable! As You Walk Inside, Your Eyes Are Immediately Drawn Through The Home To The Expansive Golf Course View, Creating A Serene, Park-Like Setting That Defines The Lifestyle So Many Buyers Want In Sun City. This Golf Course Property Features An Extensive List Of Recent Improvements (Ask Your Agent For The Complete Update List). Major Upgrades Include A One-Year-Old AC Unit, A Water Heater Installed This Year, A Roof Installed In 2017, Updated Windows, And A Newer Sliding Glass Door For Energy Efficiency And Comfort. The Large Arizona Room Overlooks The Golf Course And Is Located Just Off The Living Room, Offering Flexible Space For Relaxing, Entertaining, Or Enjoying Morning Coffee With A View. Interior Enhancements Include Smooth Ceilings With Popcorn Removed, Ceiling Fans In Every Room, And An Open-Concept Layout Created By Removing The Wall Between The Kitchen And Living Room For A Bright, Modern Flow. The Updated Kitchen Features Newer Cabinets, Updated Countertops, Modern Appliances, A Gas Stove, A Built-In Wine Rack, And Lower Cabinets With Pull-Out Drawers For Added Convenience And Functionality. Both Bathrooms Have Been Tastefully Remodeled With Walk-In Tile Showers, Updated Toilets, And Modern Vanities. The Laundry Room Is Conveniently Located Inside The Home, Just Off The Arizona Room. Be Sure To Notice The Oversized Single-Car Garage, Providing Extra Storage Space And Practicality. If You Are Searching For A Move-In Ready, Updated Golf Course Home In Sun City That Is Rentable And Designed For Comfortable Arizona Living, This Home Is A Must See! Please Stop By And See It Soon!
Interior
Appliances
- Dryer, Washer, Refrigerator, Built-in Microwave, Dishwasher, Disposal, Gas Cooktop
Bedrooms
- Bedrooms: 2
Bathrooms
- Total bathrooms: 2
- Full baths: 2
Laundry
- Inside
Cooling
- Gas, Central Air, Ceiling Fan(s)
Heating
- Natural Gas
Features
- Quartz Countertops, High Speed Internet, Eat-in Kitchen, Breakfast Bar, Pantry, 3/4 Bath Master Bdrm
Size
- 1,274 sq ft
Exterior
Private Pool
- No
Patio & Porch
- Covered Patio(s), Patio
Roof
- Composition
Garage
- Garage Spaces: 1
- Garage Door Opener
- Direct Access
Carport
- None
Year Built
- 1960
Lot Size
- 0.06 acres
- 2,447 sq ft
Waterfront
- No
Water Source
- Pvt Water Company
Sewer
- Private Sewer
Community Info
HOA Information
- Association Fee: $285
- Association Fee Frequency: Monthly
- Association Fee 2: $25
- Association Fee 2 Frequency: Annually
- Association Fee Includes: Insurance, Pest Control, Trash, Water, Maintenance Exterior
Taxes
- Annual amount: $765.00
- Tax year: 2025
Senior Community
- No
Features
- Pool, Racquetball, Golf, Pickleball, Community Spa, Community Spa Htd, Community Media Room, Tennis Court(s), Biking/Walking Path, Fitness Center
Location
- City: Sun City
- County/Parrish: Maricopa
- Township: 3N
Listing courtesy of: Timothy Nixon, My Home Group Real Estate Listing Agent Contact Information: 623-219-7149
MLS ID: 6992605
Copyright 2026 Arizona Regional Multiple Listing Service, Inc. All rights reserved. The ARMLS logo indicates a property listed by a real estate brokerage other than 55places.com. All information should be verified by the recipient and none is guaranteed as accurate by ARMLS.
Sun City Real Estate Agent
Want to learn more about Sun City?
Here is the community real estate expert who can answer your questions, take you on a tour, and help you find the perfect home.
Get started today with your personalized 55+ search experience!
Want to learn more about Sun City?
Get in touch with a community real estate expert who can answer your questions, take you on a tour, and help you find the perfect home.
Get started today with your personalized 55+ search experience!
Homes Sold:
55+ Homes Sold:
Sold for this Community:
Avg. Response Time:
Community Key Facts
Age Restrictions
- 55+
Amenities & Lifestyle
- See Sun City amenities
- See Sun City clubs, activities, and classes
Homes in Community
- Total Homes: 28,257
- Home Types: Single-Family, Attached, Condos
Gated
- No
Construction
- Construction Dates: 1960 - 2016
- Builder: Del Webb, HBE, Ryerson, ,
Similar homes in this community
Popular cities in Arizona
The following amenities are available to Sun City - Sun City, AZ residents:
- Clubhouse/Amenity Center
- Golf Course
- Restaurant
- Fitness Center
- Indoor Pool
- Outdoor Pool
- Aerobics & Dance Studio
- Indoor Walking Track
- Card Room
- Ceramics Studio
- Arts & Crafts Studio
- Lapidary Studio
- Stained Glass Studio
- Woodworking Shop
- Ballroom
- Performance/Movie Theater
- Computers
- Library
- Billiards
- Bowling
- Walking & Biking Trails
- Tennis Courts
- Pickleball Courts
- Bocce Ball Courts
- Shuffleboard Courts
- Horseshoe Pits
- Softball/Baseball Field
- Lawn Bowling
- Lakes - Fishing Lakes
- Outdoor Amphitheater
- Parks & Natural Space
- Table Tennis
- Outdoor Patio
- Racquetball Courts
- Golf Practice Facilities/Putting Green
- Picnic Area
- On-site Retail
- Hospital
- Worship Centers
- Multipurpose Room
- Spa
There are plenty of activities available in Sun City. Here is a sample of some of the clubs, activities and classes offered here.
- 500 Club
- Aerobics
- Apple Macintosh Computer Club
- Aqua Fitness
- Armchair Photo Explorers
- Artistic Stained Glass
- Artists at the Lake
- Backgammon Club of Sun City
- Bell Ceramics
- Bell Crafts
- Bell Lapidary
- Bell Lawn Bowls
- Bell Metal Club
- Bell Shuffleboard
- Bell Silvercraft
- Bell Stitchers
- Bell Tea Dance
- Bell Woodworking
- Best Friends Dog Club
- Bocce
- Book in Hand Club
- Bunco Broncos
- Camera Guild
- Canasta
- Card Sharks Bridge
- Chamber Orchestra
- Chess Club
- China Painters Cupboard
- China Painting
- Computer Club of Sun City
- Country Dance Club
- Creative Quilters
- Dance For Fitness
- Euchre
- Fairway Sterling and Stones
- Fairway Woodworking
- Fairway/Mountain View Lawn Bowls
- Friday Afternoon Bridge
- Friendship Quilters, Fabric Artists
- Garden Club
- Gourmet Social Club
- Grand Slam Bridge
- Grandmothers and Friends
- Handbell Ringers
- Handi-Capables
- Hatha Yoga
- Kachina Bridge
- Knitters
- Ladies Exercise
- Lakeview Lawn Bowls
- Lakeview Woodworking
- Leathercraft
- Lifelong Learning Club
- Mahjong
- Marinette Clay Corner
- Men's Club
- Mini-Golf Club
- Mixed Cards
- Mixed Cribbage
- Monday Nite Pinochle Club
- New England Club
- Newcomer Hospitality
- NextGen Club
- Oakmont Ceramics
- Oakmont Lawn Bowls
- One Partner Bridge
- Outdoor Shuffleboard Club
- Palo Verde Artists
- Piano Club
- Pickleball Club
- Pinochle
- RV Club
- Racquetball Club of Sun City
- Readers Ensemble
- Rhythm Ramblers
- Rockhounds
- Rockin' Thru the Years
- Saguaro Bridge
- Saturday Pinochle
- Senior Softball Club
- Sew 'N Sew
- Silver Stones
- Six Shooter Horseshoes
- So Grand Exercise
- Spanish Club
- Stamp Club
- Sun City Ballroom Dance Club
- Sun City Billiards
- Sun City Calligraphy Society
- Sun City Carvers
- Sun City Choraliers
- Sun City Clay Club
- Sun City Concert Band
- Sun City Democrats
- Sun City Duplicate Bridge
- Sun City Lawn Bowls (USLBA)
- Sun City Line Dance Club
- Sun City Model Railroad Club
- Sun City Players Community Theater
- Sun City Poms
- Sun City Republican Club
- Sun City Singles Dance Club
- Sun City Singles Social Club
- Sun City Squares
- Sun City Women's Social Club
- Sundial Crafts
- Sundial Dance Club
- Sundial Shuffleboard Club
- Swim Club
- Table Tennis Club
- Tennis Club
- Thursday Afternoon Bridge
- Tip Top Dance Club
- Ukulele Club
- Water Volleyball
- Wednesday Afternoon Bridge
- Women's Chorus




