- 2 beds
- 2 baths
- 1,536 sq ft
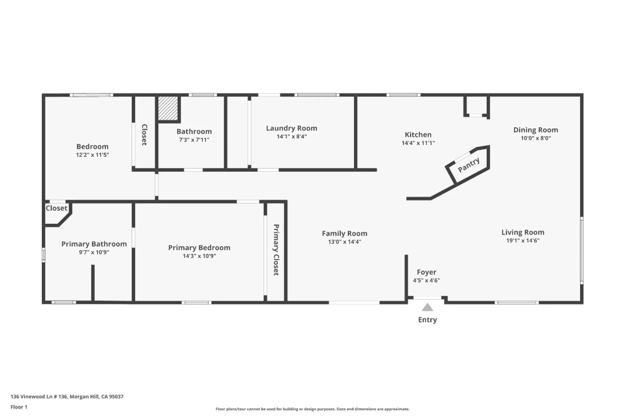
136 Vinewood Ln # 136, Morgan Hill, CA, 95037
Community: Woodland Estates
-
Home type
Double wide mobile home
-
Year built
1971
-
Price per sq ft
$299
-
Last updated
Today
-
Views
5
Questions? Call us: (669) 345-4520
Overview
Welcome to Morgan Hill! This charming 2-bedroom, 2-bathroom home offers 1,536 sq. ft. of comfortable living space in the desirable Woodland Estates 55+ community. The thoughtfully designed kitchen features unique Quartz countertops, blending style and functionality for all your culinary creations. The separate family room provides the perfect spot for cozy gatherings or relaxing evenings, while elegant hardwood flooring throughout enhances the homes warm and inviting atmosphere. The spacious laundry room offers added versatility, its large enough to double as an office, hobby, or craft space. Enjoy meals in the dining area, perfect for both everyday living and entertaining guests. Woodland Estates offers a variety of activities and amenities for active seniors, making it easy to stay social and engaged. Experience the ideal balance of comfort, convenience, and community in this welcoming home.
Interior
Appliances
- Countertop - Other
Bedrooms
- Bedrooms: 2
Cooling
- Central AC
Heating
- Central Forced Air
Fireplace
- None
Size
- 1,536 sq ft
Exterior
Private Pool
- No
Roof
- Metal
Garage
- None
Carport
- None
Year Built
- 1971
Waterfront
- No
Water Source
- Public
Sewer
- Public Sewer
Community Info
Senior Community
- No
Location
- City: Morgan Hill
- County/Parrish: Santa Clara
Listing courtesy of: Gina Zoumut, Coldwell Banker Realty Listing Agent Contact Information: [email protected]
MLS ID: ML82020861
Property Information © 2025 MLSListings Inc. All rights reserved. Listing information is deemed reliable but not guaranteed. Certain information contained herein is derived from information which is the licensed property of, and copyrighted by, MLSListings Inc. The viewer acknowledges ownership and validity of its copyright. Information provided is for personal, non-commercial use by a viewer with a bona fide interest in the purchase or sale of real estate of the type being offered via this website or other electronic means. The viewer is prohibited from copying, redistributing or retransmitting any of the data or information provided by MLSListing, Inc.
Woodland Estates Real Estate Agent
Want to learn more about Woodland Estates?
Here is the community real estate expert who can answer your questions, take you on a tour, and help you find the perfect home.
Get started today with your personalized 55+ search experience!
Want to learn more about Woodland Estates?
Get in touch with a community real estate expert who can answer your questions, take you on a tour, and help you find the perfect home.
Get started today with your personalized 55+ search experience!
Homes Sold:
55+ Homes Sold:
Sold for this Community:
Avg. Response Time:
Community Key Facts
Age Restrictions
- 55+
Amenities & Lifestyle
- See Woodland Estates amenities
- See Woodland Estates clubs, activities, and classes
Homes in Community
- Total Homes: 285
- Home Types: Manufactured
Gated
- No
Construction
- Construction Dates: 1976 - 1986
Similar homes in this community
Popular cities in California
The following amenities are available to Woodland Estates - Morgan Hill, CA residents:
- Clubhouse/Amenity Center
- Fitness Center
- Outdoor Pool
- Library
- Walking & Biking Trails
- Tennis Courts
- Bocce Ball Courts
- Parks & Natural Space
- Outdoor Patio
- Multipurpose Room
- Spa
There are plenty of activities available in Woodland Estates. Here is a sample of some of the clubs, activities and classes offered here.
- Bocce Ball
- Brunches
- Community Excursions
- Dinners
- Lunches
- Tennis
- Water Aerobics




