- 2 beds
- 2 baths
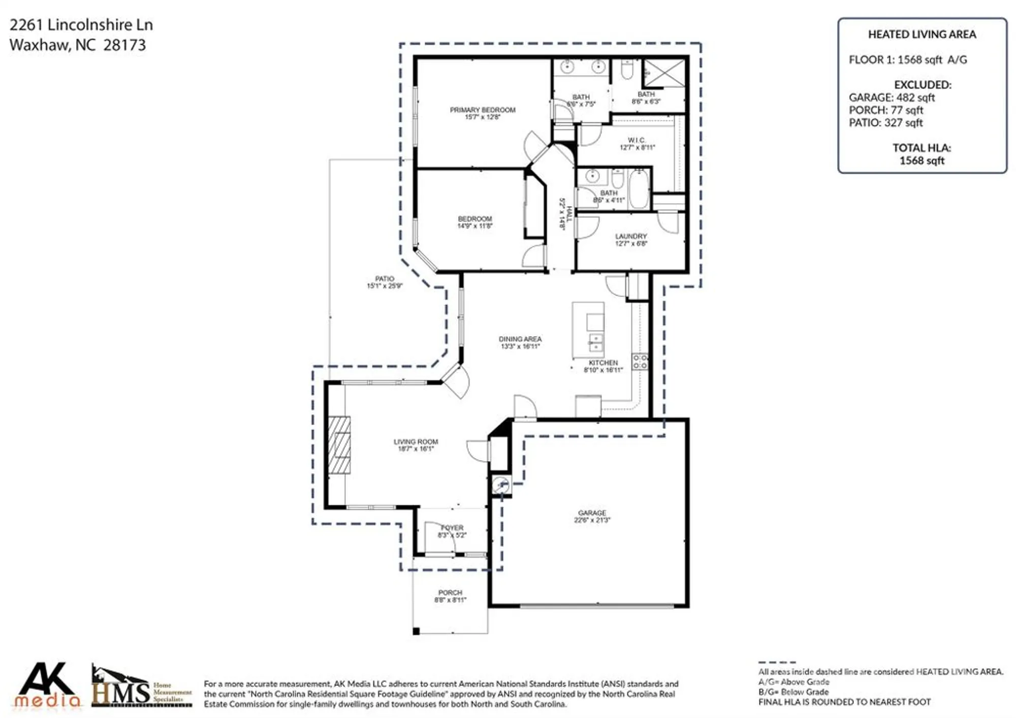
- 1,568 sq ft
2261 Lincolnshire Ln, Waxhaw, NC, 28173
Community: The Courtyards at Wesley Chapel
-
Home type
Single family
-
Year built
2020
-
Lot size
6,534 sq ft
-
Price per sq ft
$287
-
HOA fees
$314 / Mo
-
Last updated
3 days ago
-
Views
8
-
Saves
1
Questions? Call us: (980) 300-6534
Overview
Welcome to The Courtyards at Wesley Chapel, a thriving 55 & better community nestled in Waxhaw, a quiet Union county neighborhood, yet easily accessible to all things Lake Norman & Charlotte! This adorable, clean like-new 2 bedroom Palazzo ranch w/ 2 car garage features a clean color palette on the walls, lighting & finishes. A well-appointed kitchen anchors the main living area w/ ss appls, quartz counters, pendant lighting, light craftsman style cabinetry, 2 sun tunnels & island breakfast bar. The great room serves as the central gathering space w/ a linear gas fireplace, which offers a contemporary aesthetic. Custom-built-ins flank the fireplace, adding architectural interest & functionality. A serene primary suite completes this home & ensuite bath w/ dual sink vanity, spacious walk-in closet & tiled shower. Step outside to your private lanai, a tranquil transition between indoor comfort & the beauty of outdoor gardens. This home and community truly has something for everyone!
Interior
Appliances
- Dishwasher, Electric Oven, Electric Range, Electric Water Heater, Microwave, Plumbed For Ice Maker, Refrigerator
Bedrooms
- Bedrooms: 2
Bathrooms
- Total bathrooms: 2
- Full baths: 2
Laundry
- Inside
- Laundry Room
- Main Level
- Washer Hookup
Cooling
- Ceiling Fan(s), Central Air
Heating
- Forced Air, Natural Gas
Fireplace
- None
Features
- Attic Stairs Pulldown, Cable Prewire, Kitchen Island, Open Floorplan, Pantry, Walk-In Closet(s)
Levels
- One
Size
- 1,568 sq ft
Exterior
Private Pool
- No
Roof
- Shingle
Garage
- Attached
- Garage Spaces: 2
- Driveway
- Attached Garage
- Garage Door Opener
- Garage Faces Front
- Keypad Entry
Carport
- None
Year Built
- 2020
Lot Size
- 0.15 acres
- 6,534 sq ft
Waterfront
- No
Water Source
- City
Sewer
- Public Sewer
Community Info
HOA Fee
- $314
- Frequency: Monthly
Senior Community
- Yes
Features
- Fifty Five and Older, Clubhouse, Fitness Center, Game Court, Outdoor Pool, Pond, Recreation Area, Sidewalks, Street Lights, Walking Trails
Location
- City: Waxhaw
- County/Parrish: Union
Listing courtesy of: Calla Wilcox, Helen Adams Realty Listing Agent Contact Information: 203-922-2144
MLS ID: 4268622
Listings courtesy of Canopy MLS as distributed by MLS GRID. Based on information submitted to the MLS GRID as of Nov 01, 2025, 04:47am PDT. All data is obtained from various sources and may not have been verified by broker or MLS GRID. Supplied Open House Information is subject to change without notice. All information should be independently reviewed and verified for accuracy. Properties may or may not be listed by the office/agent presenting the information. Properties displayed may be listed or sold by various participants in the MLS. Some IDX listings have been excluded from this website.The Digital Millennium Copyright Act of 1998, 17 U.S.C. § 512 (the "DMCA") provides recourse for copyright owners who believe that material appearing on the Internet infringes their rights under U.S. copyright law. If you believe in good faith that any content or material made available in connection with our website or services infringes your copyright, you (or your agent) may send us a notice requesting that the content or material be removed, or access to it blocked. Notices must be sent in writing by email to [email protected] DMCA requires that your notice of alleged copyright infringement include the following information:(1) description of the copyrighted work that is the subject of claimed infringement;(2) description of the alleged infringing content and information sufficient to permit us to locate the content;(3) contact information for you, including your address, telephone number and email address;(4) a statement by you that you have a good faith belief that the content in the manner complained of is not authorized by the copyright owner, or its agent, or by the operation of any law;(5) a statement by you, signed under penalty of perjury, that the information in the notification is accurate and that you have the authority to enforce the copyrights that are claimed to be infringed; and(6) a physical or electronic signature of the copyright owner or a person authorized to act on the copyright owner’s behalf. Failure to include all of the above information may result in the delay of the processing of your complaint.
The Courtyards at Wesley Chapel Real Estate Agent
Want to learn more about The Courtyards at Wesley Chapel?
Here is the community real estate expert who can answer your questions, take you on a tour, and help you find the perfect home.
Get started today with your personalized 55+ search experience!
Want to learn more about The Courtyards at Wesley Chapel?
Get in touch with a community real estate expert who can answer your questions, take you on a tour, and help you find the perfect home.
Get started today with your personalized 55+ search experience!
Homes Sold:
55+ Homes Sold:
Sold for this Community:
Avg. Response Time:
Community Key Facts
The Courtyards at Wesley Chapel
Age Restrictions
- 55+
Amenities & Lifestyle
- See The Courtyards at Wesley Chapel amenities
- See The Courtyards at Wesley Chapel clubs, activities, and classes
Homes in Community
- Total Homes: 136
- Home Types: Single-Family
Gated
- No
Construction
- Construction Dates: 2017 - 2021
- Builder: Epcon Communities
Popular cities in North Carolina
The following amenities are available to The Courtyards at Wesley Chapel - Waxhaw, NC residents:
- Clubhouse/Amenity Center
- Fitness Center
- Outdoor Pool
- Walking & Biking Trails
- Pickleball Courts
- Lakes - Scenic Lakes & Ponds
- Parks & Natural Space
- Outdoor Patio
- Multipurpose Room
- Fire Pit
There are plenty of activities available in The Courtyards at Wesley Chapel. Here is a sample of some of the clubs, activities and classes offered here.
- Community Events
- Exercising
- Social Groups
- Swimming




