- 2 beds
- 2 baths
- 1,372 sq ft
232 Cedar Hill Dr, Dallas, GA, 30132
Community: Villages at Cedar Hill
-
Home type
Single family
-
Year built
2026
-
Lot size
0 sq ft
-
Price per sq ft
$247
-
HOA fees
$190 / Mo
-
Last updated
2 days ago
-
Views
5
Questions? Call us: (470) 688-2665
Overview
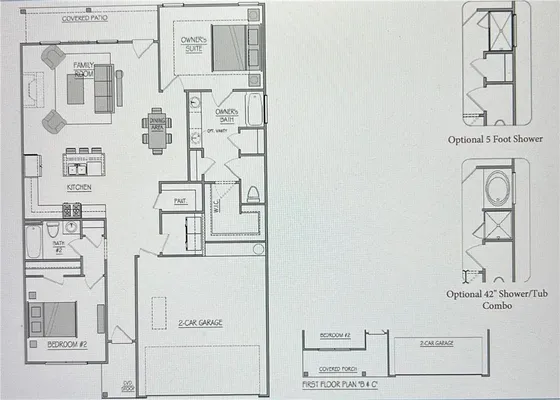
Welcome Home to Villages at Cedar Hill. Our Active Adult community in Dallas, GA. Enjoy easy living, in a highly sought after location, with lawn maintenance, beautiful interior finishes, and close proximity to shopping, dining and healthcare. There are several golf courses nearby along with the County Senior Center activities. Offering all of this from a friendly price point. Don’t miss your opportunity to reside in this lovely community. Let us introduce you to the beautiful Orchard plan at Villages at Cedar Hill, our Active Adult 55+ community in North Paulding County, GA. The Orchard offers a lovely Family Room with an open concept Dining area and Kitchen encompassing natural light throughout. With open concept you have LED lighting for greater flexibility of furniture placement. Granite in the kitchen, Stained cabinets with a huge single bowl stainless farmhouse sink within the spacious kitchen island and has stainless appliances inclusive of Gas range & Dishwasher. The Dishwasher is neatly placed within the island. The kitchen pantry offers additional storage and is a walk in. From the Family Room you can walk out onto the Covered Patio and enjoy some outdoor space with the beverage of your choice. The Orchard boasts 2 Bedrooms and 2 Bathrooms. The Primary Bedroom is amply sized for a king-sized bed. With dual windows for natural light and prewired for ceiling fan. The Primary suite features a walk-in closet and 5-foot shower with a low-clearance entry and glass door. Separate commode room for your privacy and dual sinks along with Linen closet for your storage needs. The walk in laundry room gives easy access for all. The second bedroom is ample-sized and boasts a walk-in closet and second bathroom with tub/shower combo and single sink. The 2-car garage has ample space and houses the natural gas water heater. The home has natural gas heat, and electric air conditioning. The attached floor plan is representative of the plan. Photos are representative only. Central mailboxes with keyed entry. Active Adult 55+ community ONLY. Under Construction - estimated completion date is February 2026.
Interior
Appliances
- Dishwasher, Gas Range, Gas Water Heater
Bedrooms
- Bedrooms: 2
Bathrooms
- Total bathrooms: 2
- Full baths: 2
Laundry
- Laundry Room
Cooling
- Central Air, Zoned
Heating
- Zoned
Features
- Tray Ceiling(s), Walk-In Closet(s), Dual Pane Window(s), Other Room(s)
Levels
- One
Exterior
Private Pool
- No
Patio & Porch
- Covered, Patio
Roof
- Shingle
Garage
- Garage Spaces: 1
- Driveway
- Garage
Carport
- None
Year Built
- 2026
Waterfront
- No
Water Source
- Public
Sewer
- Public Sewer
Community Info
HOA Fee
- $190
- Frequency: Monthly
Senior Community
- Yes
Listing courtesy of: Denise Coats, Piedmont Residential Realty, LLC. Listing Agent Contact Information: 404-673-2797
MLS ID: 7703489
Listings identified with the FMLS IDX logo come from FMLS and are held by brokerage firms other than the owner of this website and the listing brokerage is identified in any listing details. Information is deemed reliable but is not guaranteed. If you believe any FMLS listing contains material that infringes your copyrighted work, please click here to review our DMCA policy and learn how to submit a takedown request. © 2026 First Multiple Listing Service, Inc.
Villages at Cedar Hill Real Estate Agent
Want to learn more about Villages at Cedar Hill?
Here is the community real estate expert who can answer your questions, take you on a tour, and help you find the perfect home.
Get started today with your personalized 55+ search experience!
Want to learn more about Villages at Cedar Hill?
Get in touch with a community real estate expert who can answer your questions, take you on a tour, and help you find the perfect home.
Get started today with your personalized 55+ search experience!
Homes Sold:
55+ Homes Sold:
Sold for this Community:
Avg. Response Time:
Community Key Facts
Age Restrictions
- 55+
Amenities & Lifestyle
- See Villages at Cedar Hill amenities
- See Villages at Cedar Hill clubs, activities, and classes
Homes in Community
- Total Homes: 101
- Home Types: Single-Family
Gated
- No
Construction
- Construction Dates: 2023 - Present
- Builder: Piedmont Residential
Similar homes in this community
Popular cities in Georgia
The following amenities are available to Villages at Cedar Hill - Dallas, GA residents:
- Parks & Natural Space
- Lakes - Scenic Lakes & Ponds
There are plenty of events, activities, and classes to explore in the areas surrounding Villages at Cedar Hill. For more information, reach out to the local parks and recreation department.




