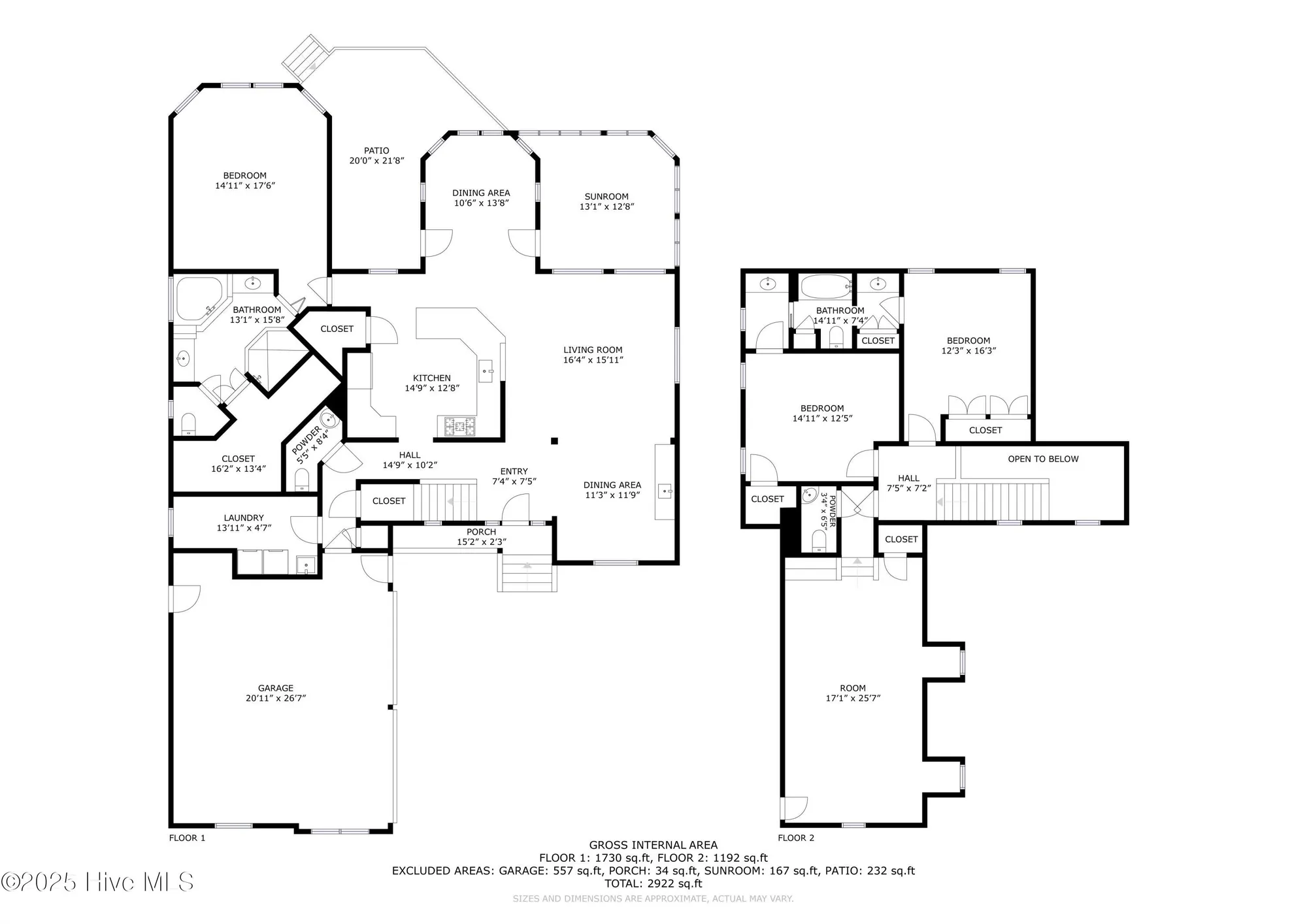
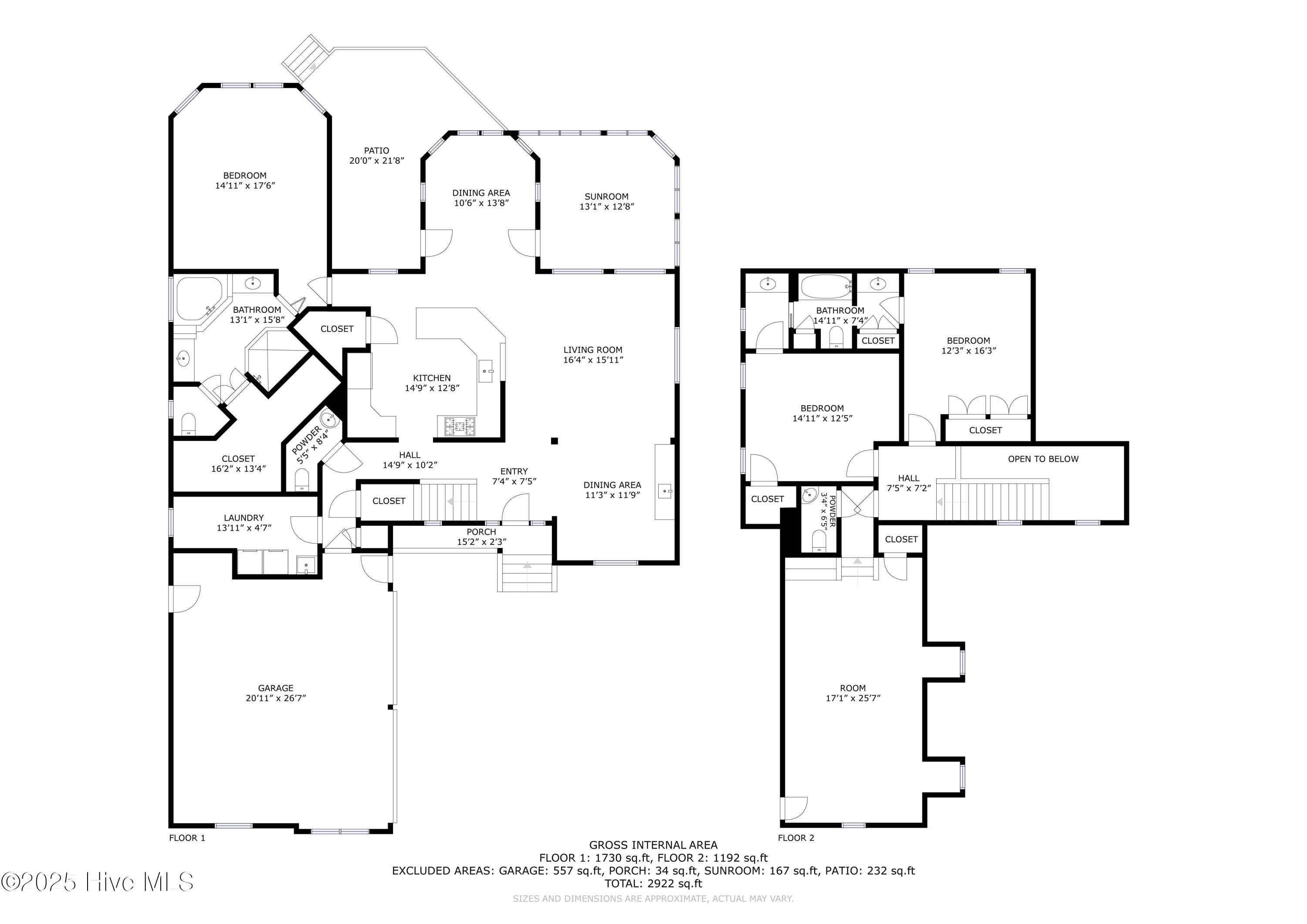
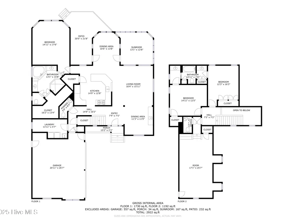
- 3 beds
- 4 baths
- 2,939 sq ft
2919 Trailwood Dr, Southport, NC, 28461
Community: St. James Plantation
-
Home type
Single family
-
Year built
1998
-
Lot size
13,939 sq ft
-
Price per sq ft
$214
-
Last updated
1 months ago
-
Views
3
-
Saves
1
Questions? Call us: (910) 713-1482
Overview
Experience the perfect harmony of timeless elegance and modern coastal luxury in this custom brick home. Ideally positioned along the picturesque 11th fairway of the Founders Club course in the prestigious gated community of St. James Plantation. The chef-inspired kitchen features a crisp white tiled backsplash, gleaming quartz countertops, a professional-grade Viking stove, and a spacious walk-in pantry- ideal for everyday living ot entertaining. A stylish wet bar adds the perfect touch for hosting family and friends in comfort and style. Rich oak hardwood flooring, detailed trim, and custom millwork throughout the home reflect exceptional craftsmanship and warmth.The primary suite is a true retreat, featuring elegant new lighting, a spa-worthy soaking tub, a steam shower, and dual vanities for an indulgent start or finish to your day. Enjoy panoramic golf views year-round from the glassed-in, climate-controlled Carolina Room, filled with natural light and designed for relaxation. A spacious bonus room with a half bath offers versatility for guests, a home office, or a media space.Recent updates include a new roof, dual HVAC systems, dehumidifier in the encapsulated crawl space. Leaf Filter gutter guards, and a freshly painted deck - providing peace of mind and enduring value. Nestled within the gated community of St James, this home invites you to embrace a lifestyle unlike any other. Enjoy four championship golf courses, tennis and pickleball, an indoor and three outdoor pools, a state-of-the-art wellness center, scenic walk and biking trails, and Waterway Park with kayak launch, dog parks, a full-service marina with a restaurant and lively tiki bar. Private oceanfront beach club on Oak Island
Interior
Appliances
- Built-In Microwave, Dishwasher, Washer, Vented Exhaust Fan, Refrigerator, Humidifier/Dehumidifier, Gas Oven, Dryer, Disposal
Bedrooms
- Bedrooms: 3
Bathrooms
- Total bathrooms: 4
- Half baths: 2
- Full baths: 2
Cooling
- Heat Pump
Heating
- Heat Pump
Fireplace
- None
Features
- Blinds/Shades, Solid Surface, Wet Bar, Walk-In Closet(s), Walk-in Shower, Vaulted Ceiling(s), Sound System, Kitchen Island, Pantry, Master Downstairs, Ceiling Fan(s)
Size
- 2,939 sq ft
Exterior
Private Pool
- No
Garage
- Attached
- Garage Spaces: 2
- None
Carport
- None
Year Built
- 1998
Lot Size
- 0.32 acres
- 13,939 sq ft
Waterfront
- No
Water Source
- Sewer Connected,Water Connected
Sewer
- Sewer Connected,Water Connected
Community Info
Senior Community
- No
Location
- City: Southport
- County/Parrish: Brunswick
Listing courtesy of: Vic R Rosado, Coldwell Banker Seacoast Advantage Listing Agent Contact Information: [email protected]
MLS ID: 100536731
The data relating to real estate on this web site comes in part from the Internet Data Exchange program of Hive MLS, and is updated as of Oct 24, 2025. All information is deemed reliable but not guaranteed and should be independently verified. All properties are subject to prior sale, change, or withdrawal. Neither listing broker(s) nor 55places.com shall be responsible for any typographical errors, misinformation, or misprints, and shall be held totally harmless from any damages arising from reliance upon these data. © 2025 Hive MLS
St. James Plantation Real Estate Agent
Want to learn more about St. James Plantation?
Here is the community real estate expert who can answer your questions, take you on a tour, and help you find the perfect home.
Get started today with your personalized 55+ search experience!
Want to learn more about St. James Plantation?
Get in touch with a community real estate expert who can answer your questions, take you on a tour, and help you find the perfect home.
Get started today with your personalized 55+ search experience!
Homes Sold:
55+ Homes Sold:
Sold for this Community:
Avg. Response Time:
Community Key Facts
Age Restrictions
- None
Amenities & Lifestyle
- See St. James Plantation amenities
- See St. James Plantation clubs, activities, and classes
Homes in Community
- Total Homes: 5,000
- Home Types: Single-Family, Attached, Condos
Gated
- Yes
Construction
- Construction Dates: 1991 - Present
- Builder: Barker and Canday Custom Homes, Logan Homes, Bill Clark Homes, Kent Homes, True Homes
Similar homes in this community
Popular cities in North Carolina
The following amenities are available to St. James Plantation - Southport, NC residents:
- Clubhouse/Amenity Center
- Golf Course
- Restaurant
- Fitness Center
- Indoor Pool
- Outdoor Pool
- Tennis Courts
- Lakes - Fishing Lakes
- Outdoor Patio
- Steam Room/Sauna
- Picnic Area
- On-site Retail
- Multipurpose Room
- Gazebo
- Boat Launch
- Misc.
- Locker Rooms
- Beach
- Kayaking/Kayak Equipment
There are plenty of activities available in St. James Plantation. Here is a sample of some of the clubs, activities and classes offered here.
- Artisans Group
- Bible Study
- Boating Club
- Bowling League
- Bridge Club
- Community Concerts
- Fishing Club
- Golf Leagues
- Karaoke Night
- Marjon Club
- Pilates
- Quilters
- Rifle and Pistol Club
- Scrapbooking Club
- Sea Notes Choral Society
- Softball League
- St. James Bikers
- Tai Chi
- Tennis Club
- Trivia Night
- Walking Club
- Wine Dinners
- Yoga




