• Home type

    Condominium

  • Year built

    2001

  • Lot size

    3,049 sq ft

  • Price per sq ft

    $466

  • HOA fees

    $902 / Mo

  • Last updated

    1 weeks ago

  • Views

    13


Questions? Call us: (442) 256-9064


Overview

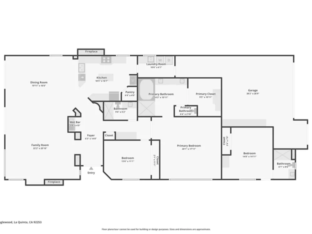
Lake, Mountain and Golf Views from this Resort-style living home on the 4th Hole of the Palmer Course at PGA WEST! This popular Spyglass floorplan offers 3 bedrooms and 3 bathrooms approx 2,400 sq ft, including a private attached casita (3rd Bedroom)with a separate entrance that is perfect for guests. Open and spacious home with private pool, spa, and spacious backyard designed investment/rental potential, a desert getaway or full-time enjoyment.Extraordinary views of the mountains, lake and the Arnold Palmer Private Course with no cart path or stray golf balls to worry about. North facing orientation keeps the pool and spa sun drenched, while protecting interior spaces from the harsh summer sun.The open concept layout features a bright kitchen connected to the dining and family rooms, and a great room with fireplace and built-in entertainment center ideal for relaxing or entertaining. The spacious primary suite includes a full bath with shower and dual vanities plus a custom walk-in closet. A second interior bedroom and full hall bath provide flexible use options, while the attached casita is equipped with a mini split system (2023) and offers privacy and comfort for guests.Additional upgrades include new AC and heat pump systems (2024) for modern efficiency and comfort. The 2-car plus golf cart garage adds convenience and storage. Outside, enjoy a backyard paradise complete with built-in BBQ, expansive deck space, private pool/spa and magical evening views of the illuminated mountains.Offered fully furnished and move-in ready just bring your suitcase and start enjoying the desert lifestyle. A rare find in PGA WEST schedule your showing today!


Interior

Appliances

  • Gas Range, Microwave, Electric Oven, Refrigerator, Dishwasher

Bedrooms

  • Bedrooms: 3

Bathrooms

  • Total bathrooms: 3
  • Full baths: 3

Laundry

  • Individual Room

Heating

  • Heat Pump, Natural Gas

Fireplace

  • None

Features

  • Furnished, Great Room, Guest Suite, Retreat Room, Walk-In Closet(s)

Levels

  • One

Size

  • 2,400 sq ft

Exterior

Private Pool

  • Yes

Garage

  • Attached
  • Garage Spaces: 2.5
  • Direct Garage Access
  • Garage Door Opener

Carport

  • None

Year Built

  • 2001

Lot Size

  • 0.07 acres
  • 3,049 sq ft

Waterfront

  • No

Community Info

HOA Fee

  • $902
  • Frequency: Monthly
  • Includes: Management, Trash, Security, Maintenance Grounds, Insurance, Cable TV

Senior Community

  • No

Location


Listing courtesy of: Debbie Behlman, Equity Union

Source: Crmls
MLS ID: 219129403DA

Crmls

Based on information from California Regional Multiple Listing Service, Inc. as of Sep 27, 2025 and/or other sources. All data, including all measurements and calculations of area, is obtained from various sources and has not been, and will not be, verified by broker or MLS. All information should be independently reviewed and verified for accuracy. Properties may or may not be listed by the office/agent presenting the information.


PGA West Real Estate Agent

Want to learn more about PGA West?

Here is the community real estate expert who can answer your questions, take you on a tour, and help you find the perfect home.

Get started today with your personalized 55+ search experience!

Want to learn more about PGA West?

Get in touch with a community real estate expert who can answer your questions, take you on a tour, and help you find the perfect home.

Get started today with your personalized 55+ search experience!

Homes Sold:

55+ Homes Sold:

Sold for this Community:

Avg. Response Time:

Global - Lead Form - Buyer Only
*55places does not provide or maintain community HOA information.
By requesting more information, you agree that 55places placeholder may call, text, or email you about your inquiry, which may be made with automated means (including recorded voice messages, SMS, or text messages). You understand that your consent is not a prerequisite for buying, selling or renting a property. You may revoke your consent at any time by contacting [email protected]. Message/data rates may apply. You also agree to 55places.com's Privacy Policy and Terms of Use.

Community Key Facts

PGA West

Age Restrictions

  • None

Amenities & Lifestyle

  • See PGA West amenities
  • See PGA West clubs, activities, and classes

Homes in Community

  • Total Homes: 6,000
  • Home Types: Single-Family, Attached

Gated

  • Yes

Construction

  • Construction Dates: 1985 - Present
  • Builder: Multiple Builders, Sunrise, Woodbridge Pacific Group, Woodbridge Pacific

Similar homes in this community PGA West

$899,000
3 Beds | 4 Baths | 2596 Sq. Ft.
MLS #219136318
Brad Schmett Real Estate Group, Brad Schmett Real Estate Group
$842,000
3 Beds | 4 Baths | 2001 Sq. Ft.
MLS #219136311
Compass, Jon A Caruana
$1,829,000
3 Beds | 4 Baths | 3741 Sq. Ft.
MLS #219136308
Compass, Becky King

PGA West Real Estate Agent

Want to learn more about PGA West?

Here is the community real estate expert who can answer your questions, take you on a tour, and help you find the perfect home.

Get started today with your personalized 55+ search experience!

Want to learn more about PGA West?

Get in touch with a community real estate expert who can answer your questions, take you on a tour, and help you find the perfect home.

Get started today with your personalized 55+ search experience!

Homes Sold:

55+ Homes Sold:

Sold for this Community:

Avg. Response Time:

Global - Lead Form - Buyer Only
*55places does not provide or maintain community HOA information.
By requesting more information, you agree that 55places placeholder may call, text, or email you about your inquiry, which may be made with automated means (including recorded voice messages, SMS, or text messages). You understand that your consent is not a prerequisite for buying, selling or renting a property. You may revoke your consent at any time by contacting [email protected]. Message/data rates may apply. You also agree to 55places.com's Privacy Policy and Terms of Use.

Agent Image
 

Community Expert

Call Us Call Us
Scroll to Top