-
Home type
Single family
-
Year built
2004
-
Lot size
8,207 sq ft
-
Price per sq ft
$252
-
Taxes
$5560 / Yr
-
HOA fees
$1518 / Semi-Annually
-
Last updated
Today
-
Views
6
Questions? Call us: (520) 666-6949
Overview
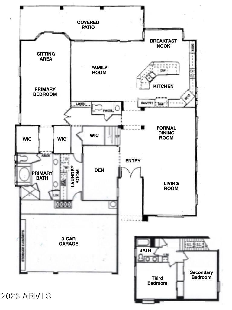
GORGEOUS Marbella in GATED, Adult Community of Oakwood on the GOLF COURSE w/ HEATED POOL & SPA featuring vaulted ceilings, NEWER HVACs, shutters & water softener w/ 3 Bedrooms, 2.5 Baths, DEN, formal living/dining room & FAMILY ROOM that is open to the SPECTACULAR KITCHEN. The kitchen has a HUGE ISLAND, QUARTZ COUNTERS, INDUCTION COOKTOP, DOUBLE OVENS & large eating area. The Master is spacious enough for a SITTING AREA & has a large WALK-IN SHOWER, 2 WALK-IN CLOSETS & double vanity. EXTRA STORAGE space in the Laundry room & EXTENDED 3-car garage w/ MINI SPLIT AC. Entertain or relax on the NORTH- FACING covered patio overlooking the PLAY POOL, GOLF COURSE & LAKE! PLUS SUN LAKES AMENITIES like: golf, tennis, pickle ball, pools, fitness center, clubs, social activities & restaurants
Interior
Appliances
- Water Softener Owned, Gas Stub for Range, Refrigerator, Built-in Microwave, Dishwasher, Disposal, Induction Cooktop, Electric Oven
Bedrooms
- Bedrooms: 3
Bathrooms
- Total bathrooms: 3
- Half baths: 1
- Full baths: 2
Laundry
- Inside
- Gas Dryer Hookup
- Wshr/Dry HookUp Only
Cooling
- Central Air, Ceiling Fan(s)
Heating
- Natural Gas
Fireplace
- 1, Living Room,Gas
Features
- Non-laminate Counter, Quartz Countertops, High Speed Internet, Double Vanity, Master Downstairs, Breakfast Bar, Furnished(See Rmrks), Vaulted Ceiling(s), Kitchen Island, Pantry, Full Bth Master Bdrm, Separate Shwr & Tub
Size
- 3,166 sq ft
Exterior
Private Pool
- Yes
Patio & Porch
- Covered Patio(s), Patio
Roof
- Tile
Garage
- Garage Spaces: 3
- Garage Door Opener
- Extended Length Garage
- Direct Access
- Attch'd Gar Cabinets
Carport
- None
Year Built
- 2004
Lot Size
- 0.19 acres
- 8,207 sq ft
Waterfront
- Yes
Water Source
- Pvt Water Company
Sewer
- Private Sewer
Community Info
HOA Information
- Association Fee: $1,518
- Association Fee Frequency: Semi-Annually
- Association Fee Includes: Maintenance Grounds, Street Maint
Taxes
- Annual amount: $5,560.00
- Tax year: 2025
Senior Community
- No
Features
- Pool, Golf, Pickleball, Lake, Gated, Community Spa, Community Spa Htd, Community Media Room, Guarded Entry, Concierge, Tennis Court(s), Biking/Walking Path, Fitness Center
Location
- City: Sun Lakes
- County/Parrish: Maricopa
- Township: 2S
Listing courtesy of: Charlotte Young, Realty ONE Group Listing Agent Contact Information: 480-802-3857
MLS ID: 6989018
Copyright 2026 Arizona Regional Multiple Listing Service, Inc. All rights reserved. The ARMLS logo indicates a property listed by a real estate brokerage other than 55places.com. All information should be verified by the recipient and none is guaranteed as accurate by ARMLS.
Sun Lakes Real Estate Agent
Want to learn more about Sun Lakes?
Here is the community real estate expert who can answer your questions, take you on a tour, and help you find the perfect home.
Get started today with your personalized 55+ search experience!
Want to learn more about Sun Lakes?
Get in touch with a community real estate expert who can answer your questions, take you on a tour, and help you find the perfect home.
Get started today with your personalized 55+ search experience!
Homes Sold:
55+ Homes Sold:
Sold for this Community:
Avg. Response Time:
Community Key Facts
Age Restrictions
- 55+
Amenities & Lifestyle
- See Sun Lakes amenities
- See Sun Lakes clubs, activities, and classes
Homes in Community
- Total Homes: 6,683
- Home Types: Single-Family, Attached, Manufactured
Gated
- No
Construction
- Construction Dates: 1972 - 2006
- Builder: Cavco, Robson Communities, , Palm Harbor, Robson
Similar homes in this community
Popular cities in Arizona
The following amenities are available to Sun Lakes - Sun Lakes, AZ residents:
- Clubhouse/Amenity Center
- Golf Course
- Restaurant
- Fitness Center
- Outdoor Pool
- Aerobics & Dance Studio
- Hobby & Game Room
- Ballroom
- Computers
- Walking & Biking Trails
- Tennis Courts
- Bocce Ball Courts
- Lakes - Fishing Lakes
- Parks & Natural Space
- Outdoor Patio
- Racquetball Courts
- Handball Courts
- Multipurpose Room
There are plenty of activities available in Sun Lakes. Here is a sample of some of the clubs, activities and classes offered here.
- Art League
- Ballroom Dance
- Barbershop Harmony
- Berevement/Hospice
- Bible Study
- Big Band Dance
- Bingo
- Bowling League
- Breast Cancer Support
- Bunco
- Canasta
- Chorale
- Country Western Dance
- Friendship Club
- Genealogical Society
- International Culture
- Knitters
- Ladies Golf
- Men's Golf
- Parkinson's Support
- Pinochle
- Quilters
- Rummikub
- Sew What?




