-
Home type
Villa
-
Year built
2021
-
Lot size
7,777 sq ft
-
Price per sq ft
$173
-
Taxes
$4758 / Yr
-
HOA fees
$267 / Mo
-
Last updated
Today
-
Views
5
-
Saves
1
Questions? Call us: (352) 668-9678
Overview
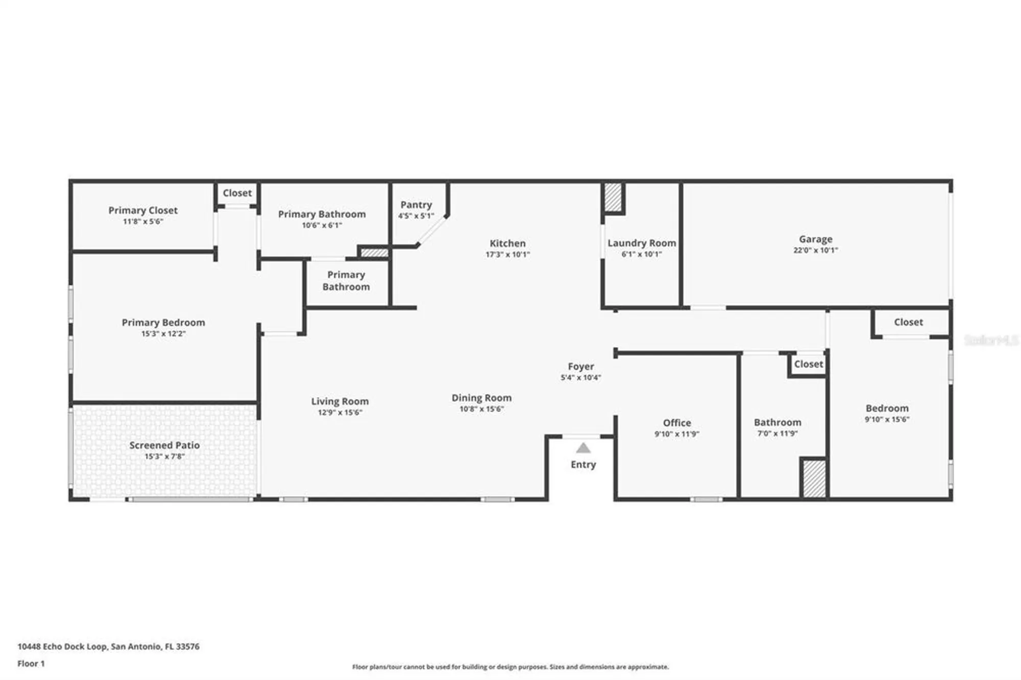
Medley Active Adult for those better than 55 years young presents an exceptional lifestyle just beyond the confines of your home. As a resident, you'll enjoy exclusive Clubhouse access with a full calendar of events daily! You will also enjoy a grill & bar, heated pool w/cabanas, ballroom, billiards room, card room, state of the art fitness center, pickleball & tennis courts, bocce ball, yoga, line dancing and private active adult events. PLUS included in your HOA is a 15-acre lagoon membership w/soft, sandy beaches including a swim-up bar, kayaking, paddleboarding, obstacle course, waterslides, corn hole games, and tons of community events! Be sure & invite friends or family to come along with you as you may gift them passes or pay a deeply discounted rate! This immaculate villa will please even the most selective buyers! Comprised of 2 spacious bedrooms, 2 full bathroms, a den/man cave and 1 car garage. Your new home includes lots of upgrades including wood look tile flooring throughout (no carpet anywhere!) agreeable gray walls with rounded corners, crown molding, quartz countertops throughout, upgraded lighting, stainless appliances and upgraded cabinetry. Sliding glass doors lead to your tiled and screened in lania with pond and conservation view. Great way to enjoy the beautiful weather without all the critters! As you step inside, you'll be greeted by a seamless flow of open living spaces, making it ideal for both relaxation and entertaining. Get ready to make memories that will last a lifetime! Your dream home awaits, you will be enjoying the CAREFREE FLORIDA RESORT LIFESTYLE in your new home as quickly as you are able to move in! Gorgeous curb appeal on this block villa with PLENTY OF ADDITIONAL PARKING just steps away from your villa for your convenience. Enjoy 42" Cabinets, and Walk-in Pantry with custom built-ins in this gorgeous kitchen. Primary Suite includes ensuite bath, dual sinks, grab bars, water closet and walk-in Closet with custom built-ins to keep you organized, and ceiling fans to keep you cool. Seller has also added rain gutters and pull-down stairs in the attic with additional floored storage space which are included in this energy efficient home. High-speed (ULTRAFI) internet, premium cable, yard maintenance & exterior painting as well as roof and homeowners insurance for the structure are maintained by the HOA. The location of this residence is equally remarkable with plenty of extra parking spots for your guests and situated in close proximity to premier shopping destinations, and an array of dining options, you'll find yourself immersed in a vibrant community that strikes a perfect balance between exclusivity and convenience. Ride your Golf Cart to the Clubhouse, Publix, restaurants, Farmers Market and more right inside the neighborhood! Close to Advent Health Hospitals, BayCare Hospital, Florida Medical Clinic, Wire Grass Mall, Tampa Premium Outlet Mall, Krate at the Grove, Sam's Club, Costco, Golf Courses & Movie Theater. Easy access to I75, 275, Tampa International Airport, Downtown Tampa and Florida's amazing beaches. CDD IS ALREADY INCLUDED IN TAX AMOUNT.
Interior
Appliances
- Dishwasher, Disposal, Dryer, Electric Water Heater, Microwave, Range, Refrigerator, Washer
Bedrooms
- Bedrooms: 2
Bathrooms
- Total bathrooms: 2
- Full baths: 2
Laundry
- Electric Dryer Hookup
- Inside
- Laundry Room
- Washer Hookup
Cooling
- Central Air
Heating
- Electric
Fireplace
- None
Features
- Ceiling Fan(s), Crown Molding, Kitchen/Family Room Combo, Open Floorplan, Main Level Primary, Split Bedrooms, Stone Counters, Walk-In Closet(s), Window Treatments
Levels
- One
Size
- 1,614 sq ft
Exterior
Private Pool
- No
Roof
- Tile
Garage
- Attached
- Garage Spaces: 1
- Guest
Carport
- None
Year Built
- 2021
Lot Size
- 0.18 acres
- 7,777 sq ft
Waterfront
- No
Water Source
- Public
Sewer
- Public Sewer
Community Info
HOA Fee
- $267
- Frequency: Monthly
- Includes: Cable TV, Clubhouse, Fence Restrictions, Fitness Center, Gated, Park, Pickleball, Playground, Pool, Shuffleboard Court, Tennis Court(s)
Taxes
- Annual amount: $4,758.31
- Tax year: 2024
Senior Community
- Yes
Features
- Clubhouse, Community Mailbox, Deed Restrictions, Dog Park, Fitness Center, Gated, Golf Carts Permitted, Irrigation-Reclaimed Water, Park, Playground, Pool, Restaurant, Sidewalks, Tennis Court(s), Street Lights
Location
- City: San Antonio
- County/Parrish: Pasco
- Township: 25S
Listing courtesy of: Debbie Sokolowski, FUTURE HOME REALTY INC, 813-855-4982
MLS ID: TB8440889
Listings courtesy of Stellar MLS as distributed by MLS GRID. Based on information submitted to the MLS GRID as of Oct 26, 2025, 11:43pm PDT. All data is obtained from various sources and may not have been verified by broker or MLS GRID. Supplied Open House Information is subject to change without notice. All information should be independently reviewed and verified for accuracy. Properties may or may not be listed by the office/agent presenting the information. Properties displayed may be listed or sold by various participants in the MLS.
Mirada Real Estate Agent
Want to learn more about Mirada?
Here is the community real estate expert who can answer your questions, take you on a tour, and help you find the perfect home.
Get started today with your personalized 55+ search experience!
Want to learn more about Mirada?
Get in touch with a community real estate expert who can answer your questions, take you on a tour, and help you find the perfect home.
Get started today with your personalized 55+ search experience!
Homes Sold:
55+ Homes Sold:
Sold for this Community:
Avg. Response Time:
Community Key Facts
Age Restrictions
- 55+
Amenities & Lifestyle
- See Mirada amenities
- See Mirada clubs, activities, and classes
Homes in Community
- Total Homes: 858
- Home Types: Single-Family, Attached
Gated
- Yes
Construction
- Construction Dates: 2019 - Present
- Builder: Lennar
Similar homes in this community
Popular cities in Florida
The following amenities are available to Mirada - San Antonio, FL residents:
- Clubhouse/Amenity Center
- Fitness Center
- Outdoor Pool
- Walking & Biking Trails
- Tennis Courts
- Pickleball Courts
- Bocce Ball Courts
- Lakes - Scenic Lakes & Ponds
- Outdoor Patio
- Pet Park
- Multipurpose Room
There are plenty of activities available in Mirada. Here is a sample of some of the clubs, activities and classes offered here.
- Bocce Ball
- Movie Nights
- Pickleball
- Sunset Boat Tours
- Sunset Socials
- Tennis




