• Home type

    Single family

  • Year built

    1997

  • Lot size

    9,339 sq ft

  • Price per sq ft

    $208

  • Taxes

    $7325 / Yr

  • HOA fees

    $1900 / Annually

  • Last updated

    Today

  • Views

    3

  • Saves

    1


Questions? Call us: (737) 252-1669


Overview

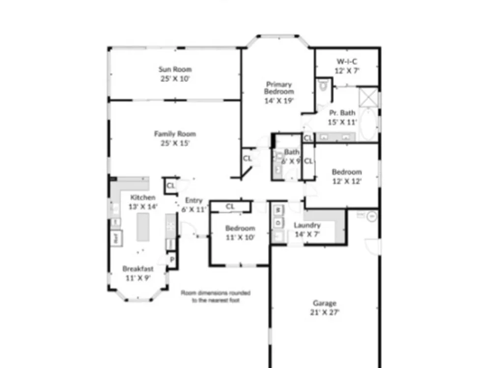
This popular 3-bedroom "Trinity" floor plan by Del Webb is full of natural light! 10' ceilings, crown molding, and hardwood floors in the living room and two bedrooms. The kitchen features white cabinets, quartz countertops, a composite sink, gas cooktop, and built-in stainless oven and microwave. Enjoy your morning coffee in the sunny bay window breakfast nook with plantation shutters and front yard views. The spacious main bedroom offers a retreat with its own bay window, peaceful greenbelt views, and a private bath featuring granite dual vanities, a stand-up shower and a jetted tub. The laundry room has a built-in desk and extra room ideal for hobby space or an additonal office. A 10' x 30' sunroom is heated and cooled for year-round comfort and it looks out onto the fully fenced backyard that backs to a quiet Sun City greenbelt. Extras include a decked attic with fan and a no-step extended garage with a side yard access door. 2024 Water Heater. 2016 Carrier HVAC. 2014 Replaced Roof.


Interior

Appliances

  • Built-In Oven, Dishwasher, Gas Cooktop, Disposal, Gas Water Heater, Microwave, Stainless Steel Appliance(s), Vented Exhaust Fan

Bedrooms

  • Bedrooms: 3

Bathrooms

  • Total bathrooms: 2
  • Full baths: 2

Laundry

  • Main Level
  • Laundry Room
  • Washer Hookup
  • Electric Dryer Hookup

Heating

  • Central, Forced Air, Natural Gas

Fireplace

  • None

Features

  • Breakfast Bar, Ceiling Fan(s), Crown Molding, Separate/Formal Dining Room, Double Vanity, High Ceilings, Kitchen Island, Multiple Dining Areas, Main Level Primary, NoInteriorSteps, Pantry, Quartz Countertops, Recessed Lighting, Walk-In Closet(s)

Levels

  • One

Size

  • 1,915 sq ft

Exterior

Private Pool

  • No

Roof

  • Composition,Shingle

Garage

  • Garage Spaces: 2
  • Attached
  • DoorSingle
  • GarageFacesFront
  • Garage
  • GarageDoorOpener

Carport

  • None

Year Built

  • 1997

Lot Size

  • 0.21 acres
  • 9,339 sq ft

Waterfront

  • No

Water Source

  • Public

Sewer

  • Public Sewer

Community Info

HOA Fee

  • $1,900
  • Frequency: Annually

Taxes

  • Annual amount: $7,324.60
  • Tax year: 2025

Senior Community

  • Yes

Features

  • Clubhouse, DogPark, FitnessCenter, Golf, Lake, Library, Playground, Pool, PlannedSocialActivities, PuttingGreen, Restaurant, TennisCourts, TrailsPaths

Location


Listing courtesy of: Cameron Freeman, The Stacy Group, LLC Listing Agent Contact Information: (512) 869-0223

Source: Actrist
MLS ID: 1059867

Actrist

Listings courtesy of Unlock MLS as distributed by MLS GRID. Based on information submitted to the MLS GRID as of Oct 13, 2025, 06:12pm PDT. All data is obtained from various sources and may not have been verified by broker or MLS GRID. Supplied Open House Information is subject to change without notice. All information should be independently reviewed and verified for accuracy. Properties may or may not be listed by the office/agent presenting the information. Properties displayed may be listed or sold by various participants in the MLS.


Sun City Texas Real Estate Agent

Want to learn more about Sun City Texas?

Here is the community real estate expert who can answer your questions, take you on a tour, and help you find the perfect home.

Get started today with your personalized 55+ search experience!

Want to learn more about Sun City Texas?

Get in touch with a community real estate expert who can answer your questions, take you on a tour, and help you find the perfect home.

Get started today with your personalized 55+ search experience!

Homes Sold:

55+ Homes Sold:

Sold for this Community:

Avg. Response Time:

Global - Lead Form - Buyer Only
*55places does not provide or maintain community HOA information.
By requesting more information, you agree that 55places placeholder may call, text, or email you about your inquiry, which may be made with automated means (including recorded voice messages, SMS, or text messages). You understand that your consent is not a prerequisite for buying, selling or renting a property. You may revoke your consent at any time by contacting [email protected]. Message/data rates may apply. You also agree to 55places.com's Privacy Policy and Terms of Use.

Community Key Facts

Sun City Texas

Age Restrictions

  • 55+

Amenities & Lifestyle

  • See Sun City Texas amenities
  • See Sun City Texas clubs, activities, and classes

Homes in Community

  • Total Homes: 9,900
  • Home Types: Single-Family, Attached

Gated

  • No

Construction

  • Construction Dates: 1995 - Present
  • Builder: Del Webb

Similar homes in this community Sun City Texas

$400,000
2 Beds | 2 Baths | 1997 Sq. Ft.
MLS #9807401
Horizon Realty, Terri Michelle
$539,500
3 Beds | 2 Baths | 2254 Sq. Ft.
MLS #1033879
Era Colonial Real Estate, Mimi Migliorini
$599,900
4 Beds | 2 Baths | 2598 Sq. Ft.
MLS #9545233
Era Brokers Consolidated, Pokey Delwaide

Sun City Texas Real Estate Agent

Want to learn more about Sun City Texas?

Here is the community real estate expert who can answer your questions, take you on a tour, and help you find the perfect home.

Get started today with your personalized 55+ search experience!

Want to learn more about Sun City Texas?

Get in touch with a community real estate expert who can answer your questions, take you on a tour, and help you find the perfect home.

Get started today with your personalized 55+ search experience!

Homes Sold:

55+ Homes Sold:

Sold for this Community:

Avg. Response Time:

Global - Lead Form - Buyer Only
*55places does not provide or maintain community HOA information.
By requesting more information, you agree that 55places placeholder may call, text, or email you about your inquiry, which may be made with automated means (including recorded voice messages, SMS, or text messages). You understand that your consent is not a prerequisite for buying, selling or renting a property. You may revoke your consent at any time by contacting [email protected]. Message/data rates may apply. You also agree to 55places.com's Privacy Policy and Terms of Use.

Agent Image
 

Community Expert

Call Us Call Us
Scroll to Top