-
Home type
Single family
-
Year built
1976
-
Lot size
10,607 sq ft
-
Price per sq ft
$241
-
Taxes
$3101 / Yr
-
HOA fees
$55 / Mo
-
Last updated
Today
-
Views
11
Questions? Call us: (727) 339-5582
Overview
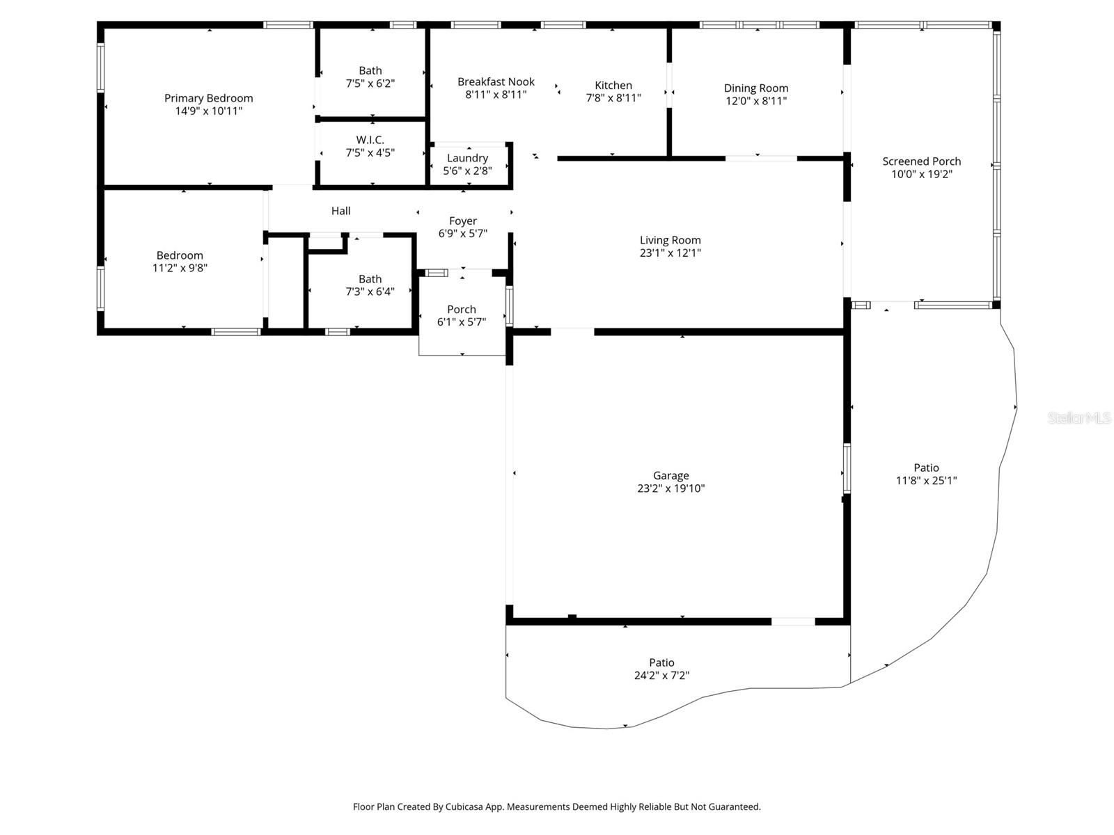
This beautifully updated 2-bedroom, 2-bathroom home offers comfort, style, and peace of mind—just bring your suitcase and start enjoying your new home from day one. Thoughtful updates inside and out make this residence truly move-in ready. From the moment you arrive, you’ll be impressed by the exceptional curb appeal, featuring several full-sized palm trees amid the well-designed landscaping. An impressive paver driveway leads to the extended double garage with epoxy flooring. The covered front entry welcomes you through a stately wood door into the foyer. Inside, the home feels warm and inviting with neutral paint, engineered hardwood flooring throughout (tile in wet areas), updated kitchen and bathrooms, and solar tubes that provide abundant natural light. To the left of the foyer are the two well-sized, light-filled bedrooms and the main bathroom. The primary bedroom features a spacious walk-in closet and a private en suite bath. To the right of the foyer is the heart of the home: a large living room with French doors opening to the enclosed porch. The updated kitchen showcases white cabinetry, quartz countertops, and newer stainless-steel appliances, along with a breakfast nook and laundry closet. The kitchen flows seamlessly into the formal dining room, which also features French doors leading to the recently tiled back porch. The backyard is a true retreat. Situated on a generous ¼-acre pie-shaped lot, it offers mature trees, a well-maintained lawn, and peaceful surroundings. Overlooking the sidewalk and near Footprint Lake, this home is perfectly positioned for neighborhood walks and friendly encounters with neighbors. Located in the San Clemente Village of Timber Oaks, residents enjoy an impressive array of amenities, including a clubhouse, fitness center, outdoor pool, card room, arts and crafts studio, performance/movie theater, billiards, walking and biking trails, tennis courts, and shuffleboard courts. Major updates include: New soffits, fascia, gutters, and gutter shields (2024), Kitchen update and appliances (2023), New roof and A/C (2022), New paver driveway and patio (2022), Tankless water heater (2021), Double-pane windows (2012). Additional features you will love - water filtration system connected to well for irrigation, newer interior doors throughout, entry door from garage into home for convenience and much more. Most furniture/household items are available for inclusion.
Interior
Appliances
- Dishwasher, Disposal, Dryer, Microwave, Range, Refrigerator, Washer
Bedrooms
- Bedrooms: 2
Bathrooms
- Total bathrooms: 2
- Full baths: 2
Laundry
- In Kitchen
- Inside
- Laundry Closet
Cooling
- Central Air
Heating
- Central, Electric
Features
- Eat-in Kitchen, Main Level Primary, Solid-Wood Cabinets, Stone Counters, Walk-In Closet(s), Window Treatments
Levels
- One
Size
- 1,142 sq ft
Exterior
Private Pool
- No
Patio & Porch
- Covered, Enclosed, Rear Porch
Roof
- Shingle
Garage
- Attached
- Garage Spaces: 2
Carport
- None
Year Built
- 1976
Lot Size
- 0.24 acres
- 10,607 sq ft
Waterfront
- No
Water Source
- Public
Sewer
- Public Sewer
Community Info
HOA Fee
- $55
- Frequency: Monthly
- Includes: Clubhouse, Fitness Center, Park, Pool, Trail(s)
Taxes
- Annual amount: $3,101.00
- Tax year: 2024
Senior Community
- Yes
Features
- Association Recreation - Owned, Clubhouse, Deed Restrictions, Fitness Center, Park, Pool, Sidewalks, Street Lights
Location
- City: Port Richey
- County/Parrish: Pasco
- Township: 25
Listing courtesy of: Karla Folstad, EXP REALTY LLC, 888-883-8509
MLS ID: TB8466242
Listings courtesy of Stellar MLS as distributed by MLS GRID. Based on information submitted to the MLS GRID as of Jan 23, 2026, 04:20am PST. All data is obtained from various sources and may not have been verified by broker or MLS GRID. Supplied Open House Information is subject to change without notice. All information should be independently reviewed and verified for accuracy. Properties may or may not be listed by the office/agent presenting the information. Properties displayed may be listed or sold by various participants in the MLS.
Timber Oaks Real Estate Agent
Want to learn more about Timber Oaks?
Here is the community real estate expert who can answer your questions, take you on a tour, and help you find the perfect home.
Get started today with your personalized 55+ search experience!
Want to learn more about Timber Oaks?
Get in touch with a community real estate expert who can answer your questions, take you on a tour, and help you find the perfect home.
Get started today with your personalized 55+ search experience!
Homes Sold:
55+ Homes Sold:
Sold for this Community:
Avg. Response Time:
Community Key Facts
Age Restrictions
- 55+
Amenities & Lifestyle
- See Timber Oaks amenities
- See Timber Oaks clubs, activities, and classes
Homes in Community
- Total Homes: 1,000
- Home Types: Single-Family, Attached
Gated
- No
Construction
- Construction Dates: 1973 - 1997
- Builder: D.R. Horton
Similar homes in this community
Popular cities in Florida
The following amenities are available to Timber Oaks - Port Richey, FL residents:
- Clubhouse/Amenity Center
- Fitness Center
- Outdoor Pool
- Card Room
- Arts & Crafts Studio
- Performance/Movie Theater
- Billiards
- Walking & Biking Trails
- Tennis Courts
- Shuffleboard Courts
- Lakes - Scenic Lakes & Ponds
- Outdoor Patio
- Multipurpose Room
- Business Center
- Spa
There are plenty of activities available in Timber Oaks. Here is a sample of some of the clubs, activities and classes offered here.
- Billiards
- Shuffleboard
- Tennis




