- 5 beds
- 6 baths
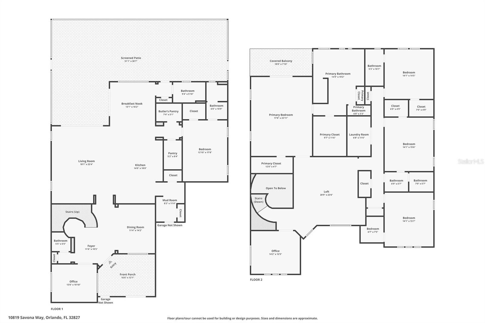
- 5,437 sq ft
10819 Savona Way, Orlando, FL, 32827
Community: Enclave at VillageWalk
-
Home type
Single family
-
Year built
2019
-
Lot size
9,501 sq ft
-
Price per sq ft
$264
-
Taxes
$19802 / Yr
-
HOA fees
$616 / Mo
-
Last updated
3 days ago
-
Views
2
-
Saves
1
Questions? Call us: (689) 220-7584
Overview
One or more photo(s) has been virtually staged. A RARE FIND IN LAKE NONA ! PRICED TO SELL! Welcome to this fairly new luxury residence located in the highly desirable Enclave at VillageWalk, in the heart of Lake Nona, one of Central Florida’s fastest-growing master-planned communities offering world-class amenities and an exceptional lifestyle. This stunning executive SUNCHASE model with an upstairs balcony is situated on a peaceful tree-lined street and showcases outstanding curb appeal on a spacious .22-acre homesite and very close to upcoming AdventHealth Hospital. Mature landscaping, elegant stone accents, barrel tile roof, and an oversized brick paver driveway create an impressive first impression. Designed for both luxury and functionality, this home features a highly desirable secondary primary suite on the first floor, a 3-car garage with an 8-foot front entry door, and an open-concept floor plan filled with custom architectural details, Built-in custom cabinetry and luxury vinyl plank flooring throughout. The front of the home offers a dedicated home office and formal living room, perfect for remote work and entertaining guests. The chef-inspired kitchen is beautifully appointed with upgraded 42” cabinetry, an expanded upper cabinet layout, a large custom island, gas range, double ovens, and abundant counter space, ideal for both everyday living and entertaining. The spacious living and dining areas seamlessly flow to the extended screened patio, creating the perfect indoor-outdoor lifestyle. Additional upgrades include a built-in wine closet, ceiling fans, security cameras, motion-activated security lighting, fruit trees, and numerous custom touches throughout the home that combine comfort, elegance, and peace of mind. Enclave at VillageWalk is a premier gated, maintenance-free community with natural gas service and HOA-maintained grounds. Residents enjoy access to top-rated schools, community events, fine dining, and an abundance of shopping and entertainment options nearby. VillageWalk at Lake Nona is a 24-hour guard-gated master-planned community conveniently located minutes from Orlando International Airport, Medical City, USTA National Campus, KPMG, and premier dining and entertainment destinations. The HOA includes 1 Gigabit internet, cable TV, and landscape maintenance, along with access to exceptional resort-style amenities including,26,000 sq. ft. Town Center, State-of-the-art fitness center.Resort-style swimming pool & heated lap pool, 6 lighted clay tennis courts, Basketball courts, Miles of walking and biking trails with pedestrian bridges, Lakeside gazebo, Library/business center & card room, Ballroom and community event spaces, On-site lifestyle and activity director. Gas station, post office, salon, spa, and more.. This exceptional luxury home truly offers the perfect combination of elegance, comfort, convenience, and resort-style living. Schedule your private showing TODAY!
Interior
Appliances
- Built-In Oven, Cooktop, Dishwasher, Disposal, Dryer, Exhaust Fan, Microwave, Range, Range Hood, Refrigerator, Tankless Water Heater, Washer
Bedrooms
- Bedrooms: 5
Bathrooms
- Total bathrooms: 6
- Half baths: 1
- Full baths: 5
Laundry
- Inside
- Laundry Room
- Upper Level
Cooling
- Central Air
Heating
- Central, Electric
Features
- Built-in Features, Ceiling Fan(s), Coffered Ceiling(s), Crown Molding, Eat-in Kitchen, High Ceilings, In-Wall Pest Control, Kitchen/Family Room Combo, Open Floorplan, Upper Level Primary, Solid Surface Counters, Solid-Wood Cabinets, Thermostat, Tray Ceiling(s), Walk-In Closet(s)
Levels
- Two
Size
- 5,437 sq ft
Exterior
Private Pool
- No
Patio & Porch
- Covered, Enclosed, Front Porch, Patio, Rear Porch, Screened
Roof
- Tile
Garage
- Attached
- Garage Spaces: 3
- Driveway
- Garage Door Opener
- Garage Faces Side
- Oversized
- Tandem
Carport
- None
Year Built
- 2019
Lot Size
- 0.22 acres
- 9,501 sq ft
Waterfront
- No
Water Source
- Public
Sewer
- Public Sewer
Community Info
HOA Information
- Association Fee: $616
- Association Fee Frequency: Monthly
- Association Fee Includes: Basketball Court, Cable TV, Clubhouse, Fitness Center, Gated, Pickleball, Playground, Pool, Recreation Facilities, Security, Tennis Court(s), Trail(s), 24 Hour Guard, Cable TV, Common Area Taxes, Pool(s), Internet, Maintenance Grounds, Recreation Facilities, Security
Taxes
- Annual amount: $19,801.69
- Tax year: 2025
Senior Community
- No
Features
- Association Recreation - Owned, Clubhouse, Community Mailbox, Deed Restrictions, Fitness Center, Gated, Guarded Entrance, Golf Carts Permitted, Park, Playground, Pool, Sidewalks, Tennis Court(s), Street Lights
Location
- City: Orlando
- County/Parrish: Orange
- Township: 24
Listing courtesy of: Raju Abraham, PA, CHARLES RUTENBERG REALTY ORLANDO, 407-622-2122
MLS ID: O6408096
Listings courtesy of Stellar MLS as distributed by MLS GRID. Based on information submitted to the MLS GRID as of May 27, 2026, 05:04pm PDT. All data is obtained from various sources and may not have been verified by broker or MLS GRID. Supplied Open House Information is subject to change without notice. All information should be independently reviewed and verified for accuracy. Properties may or may not be listed by the office/agent presenting the information. Properties displayed may be listed or sold by various participants in the MLS.
Enclave at VillageWalk Real Estate Agent
Want to learn more about Enclave at VillageWalk?
Here is the community real estate expert who can answer your questions, take you on a tour, and help you find the perfect home.
Get started today with your personalized 55+ search experience!
Want to learn more about Enclave at VillageWalk?
Get in touch with a community real estate expert who can answer your questions, take you on a tour, and help you find the perfect home.
Get started today with your personalized 55+ search experience!
Homes Sold:
55+ Homes Sold:
Sold for this Community:
Avg. Response Time:
Community Key Facts
Age Restrictions
- None
Amenities & Lifestyle
- See Enclave at VillageWalk amenities
- See Enclave at VillageWalk clubs, activities, and classes
Homes in Community
- Total Homes: 144
- Home Types: Single-Family
Gated
- Yes
Construction
- Construction Dates: 2015 - 2021
- Builder: Pulte Homes
Similar homes in this community
Popular cities in Florida
The following amenities are available to Enclave at VillageWalk - Orlando, FL residents:
- Clubhouse/Amenity Center
- Fitness Center
- Outdoor Pool
- Card Room
- Ballroom
- Library
- Walking & Biking Trails
- Tennis Courts
- Basketball Court
- Lakes - Scenic Lakes & Ponds
- Outdoor Amphitheater
- Playground for Grandkids
- Demonstration Kitchen
- Outdoor Patio
- Pet Park
- On-site Retail
- Day Spa/Salon/Barber Shop
- Multipurpose Room
- Business Center
- Gazebo
- Misc.
- Spa
There are plenty of activities available in Enclave at VillageWalk. Here is a sample of some of the clubs, activities and classes offered here.
- Aquatic Fusion
- Basketball
- Bunco
- Cards
- Community Events
- Cycling Club
- Dancing
- Fish Fry
- Golf Club
- Karaoke Night
- Mah Jongg
- Movie Night
- Neighborhood Watch
- Pilates Plus Tone & Sculpt
- Poker
- Running Club
- Seasonal Parties
- Social Committee
- Swimming
- Tai Chi
- Tennis Club
- Walking Club




