- 3 beds
- 3 baths
- 2,374 sq ft
112 Imagine Way, Pittsboro, NC, 27312
Community: Encore at Chatham Park
-
Home type
Single family
-
Year built
2023
-
Lot size
8,276 sq ft
-
Price per sq ft
$291
-
Taxes
$6720 / Yr
-
HOA fees
$265 / Mo
-
Last updated
Today
-
Saves
1
Questions? Call us: (984) 214-4740
Overview
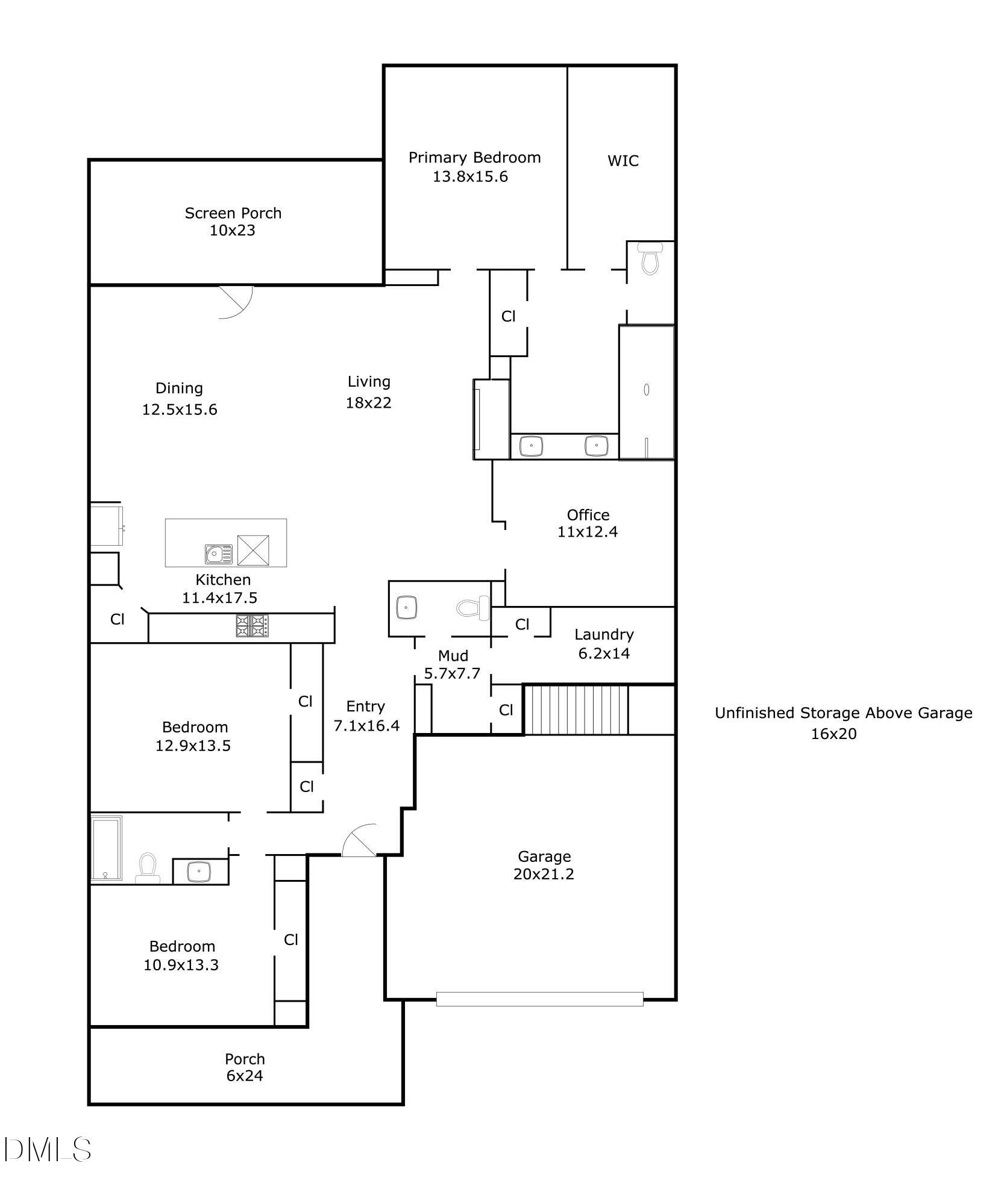
BETTER THAN NEW single-level living in Encore, Chatham Park's 55+ community! This beautifully designed home sits on a premium homesite with open space on TWO SIDES in a completed phase of the development without construction traffic & noise or retaining walls. David Weekley's EDGEMONT floorplan is one of the wider layouts to accommodate the home's ranch design, which features a bright, open-concept living area with GAS FIREPLACE and a separate home office w/ French doors. The central chef's kitchen includes a large island, tile backsplash, quartz counters & stainless appliances. All three bedrooms are on the main level, including a private primary suite w/ zero-entry shower, dual vanities & large walk-in closet. Two large guest bedrooms in front of the home can comfortably fit king-sized beds with room to spare and the private half-bath and spacious 10x23 screened porch are perfect for guests when entertaining. Don't miss the WALK-UP STORAGE located above the 2-car garage! This green-certified home has a tankless water heater, 2x6 exterior walls and other high-performance features making it ~34% more energy-efficient than a typical new home. There is also a NEMA 14-50 EV charging outlet for your electric vehicle. OTHER IMPROVEMENTS include louvered shutters throughout ($10k), tile flooring on screened porch, upgraded interior paint, additional wood flooring, updated kitchen hardware & pull-out shelving, additional landscaping, updated lighting fixtures & ceiling fans, extended appliance warranties through Jan 2028, and more! Encore is a 55+ resort-style community with included lawn maintenance and exclusive access to a Lifestyle Club with 5000sf clubhouse, well-equipped fitness center, tennis & pickleball courts, putting green, pool & hot tub, indoor/outdoor gathering spaces, meditation garden & gas firepits, meeting spaces, miles of scenic trails, and a lifestyle director coordinating year-round events & activities! The convenient location has easy access to US-64, 15-501 & I-540 and is just 4 min to world-class medical care, 5 min to coffee, retail, dining & entertainment, 7 min to new YMCA, 14 min to Jordan Lake & 33 min to RDU Airport. VIDEO TOUR: bit.ly/112Imagine-Video *Ask about available lender credit!
Interior
Appliances
- Dishwasher, Disposal, Electric Oven, ENERGY STAR Qualified Appliances, Gas Cooktop, Gas Water Heater, Microwave, Plumbed For Ice Maker, Range Hood, Stainless Steel Appliance(s), Tankless Water Heater, Vented Exhaust Fan, Oven
Bedrooms
- Bedrooms: 3
Bathrooms
- Total bathrooms: 3
- Half baths: 1
- Full baths: 2
Laundry
- Electric Dryer Hookup
- Laundry Room
- Lower Level
Cooling
- Ceiling Fan(s), Central Air, Electric
Heating
- Fireplace(s), Forced Air, Natural Gas
Fireplace
- 1, Family Room,Gas Log,Sealed Combustion
Features
- Tub Shower, Bookcases, Built-in Features, Ceiling Fan(s), Crown Molding, Double Vanity, Entrance Foyer, High Ceilings, High Speed Internet, Kitchen Island, Kitchen/Dining Combo, Living/Dining Room, Open Floorplan, Pantry, Master Downstairs, Quartz Countertops, Recessed Lighting, Smart Thermostat, Smooth Ceilings, Storage, Tray Ceiling(s), Walk-In Closet(s), Walk-In Shower, Water Closet(s)
Levels
- Two
Size
- 2,374 sq ft
Exterior
Private Pool
- No
Patio & Porch
- Covered, Front Porch, Porch, Rear Porch, Screened
Roof
- Shingle
Garage
- Attached
- Garage Spaces: 2
- Attached
- Driveway
- Electric Vehicle Charging Station(s)
- Garage
- Garage Door Opener
- Garage Faces Front
- Storage
Carport
- None
Year Built
- 2023
Lot Size
- 0.19 acres
- 8,276 sq ft
Waterfront
- No
Water Source
- Public
Sewer
- Public Sewer
Community Info
HOA Information
- Association Fee: $265
- Association Fee Frequency: Monthly
- Association Fee 2: $269
- Association Fee 2 Frequency: Semi-Annually
- Association Fee Includes: Barbecue, Cabana, Clubhouse, Fitness Center, Game Court Exterior, Game Room, Jogging Path, Landscaping, Maintenance Grounds, Management, Meeting Room, Party Room, Picnic Area, Pool, Recreation Facilities, Spa/Hot Tub, Sport Court, Tennis Court(s), Trail(s), Other, Maintenance Grounds, Maintenance
Taxes
- Annual amount: $6,719.80
- Tax year:
Senior Community
- Yes
Features
- Clubhouse, Fitness Center, Golf, Pool, Street Lights, Tennis Court(s)
Location
- City: Pittsboro
- County/Parrish: Chatham
Listing courtesy of: Peter Winkler, Keller Williams Elite Realty Listing Agent Contact Information: 919-360-1285
MLS ID: 10145257
Listings marked with a Doorify MLS icon are provided courtesy of the Doorify MLS, of North Carolina, Internet Data Exchange Database. Brokers make an effort to deliver accurate information, but buyers should independently verify any information on which they will rely in a transaction. The listing broker shall not be responsible for any typographical errors, misinformation, or misprints, and they shall be held totally harmless from any damages arising from reliance upon this data. This data is provided exclusively for consumers' personal, non-commercial use. Copyright 2024 Doorify MLS of North Carolina. All rights reserved.
Encore at Chatham Park Real Estate Agent
Want to learn more about Encore at Chatham Park?
Here is the community real estate expert who can answer your questions, take you on a tour, and help you find the perfect home.
Get started today with your personalized 55+ search experience!
Want to learn more about Encore at Chatham Park?
Get in touch with a community real estate expert who can answer your questions, take you on a tour, and help you find the perfect home.
Get started today with your personalized 55+ search experience!
Homes Sold:
55+ Homes Sold:
Sold for this Community:
Avg. Response Time:
Community Key Facts
Age Restrictions
- 55+
Amenities & Lifestyle
- See Encore at Chatham Park amenities
- See Encore at Chatham Park clubs, activities, and classes
Homes in Community
- Total Homes: 425
- Home Types: Single-Family, Attached
Gated
- No
Construction
- Construction Dates: 2024 - Present
- Builder: David Weekley Homes
Similar homes in this community
Popular cities in North Carolina
The following amenities are available to Encore at Chatham Park - Pittsboro, NC residents:
- Clubhouse/Amenity Center
- Multipurpose Room
- Fitness Center
- Performance/Movie Theater
- Bar
- Outdoor Pool
- Outdoor Patio
- Spa
- Golf Practice Facilities/Putting Green
- Tennis Courts
- Pickleball Courts
- Cornhole
- Fire Pit
- Walking & Biking Trails
There are plenty of activities available in Encore at Chatham Park. Here is a sample of some of the clubs, activities, and classes offered here.
- Biking
- Concerts
- Cornhole
- Fitness Classes
- Golf
- Movie Nights
- Pickleball
- Social Events
- Swimming
- Tennis
- Walking




