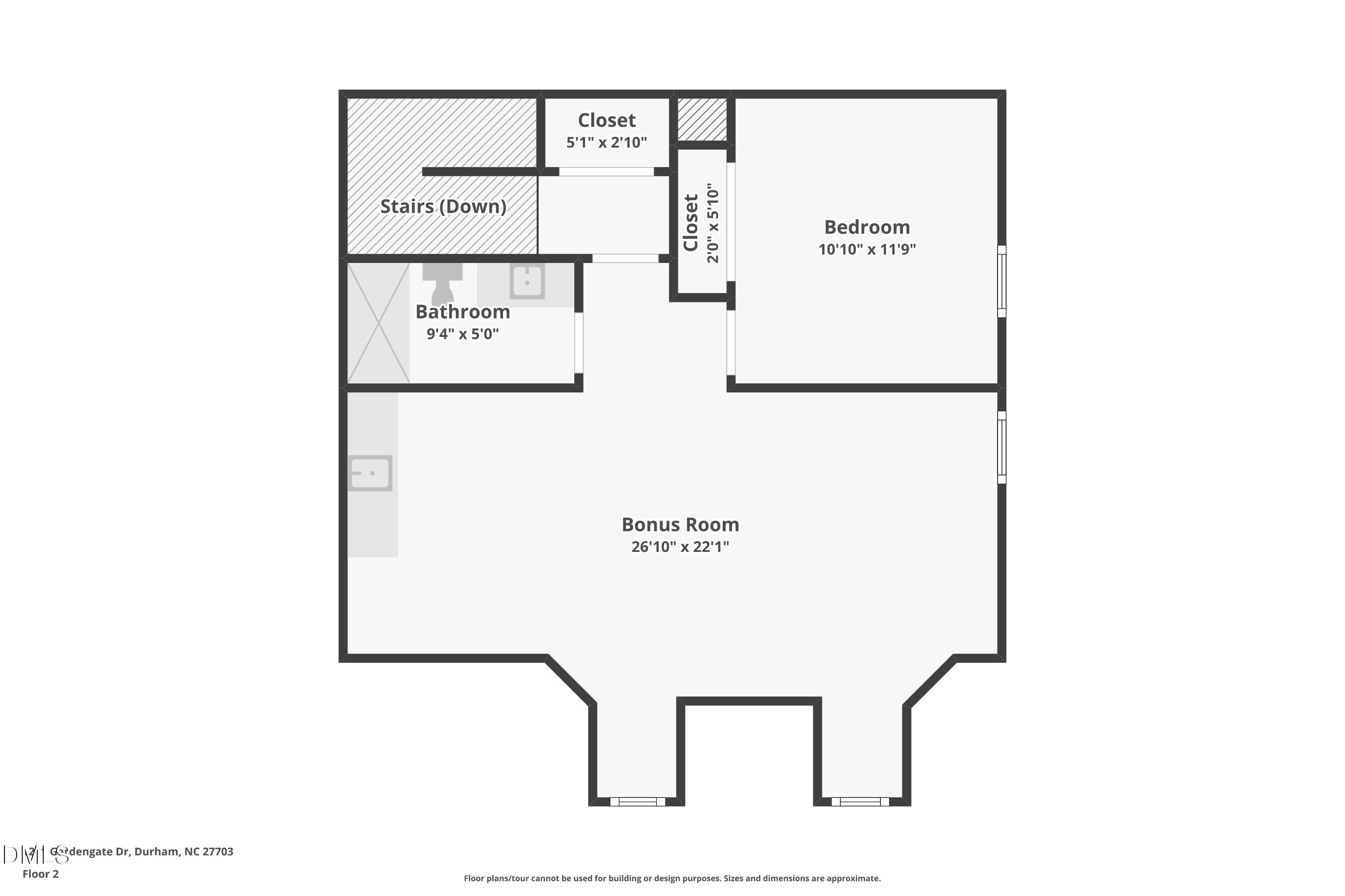
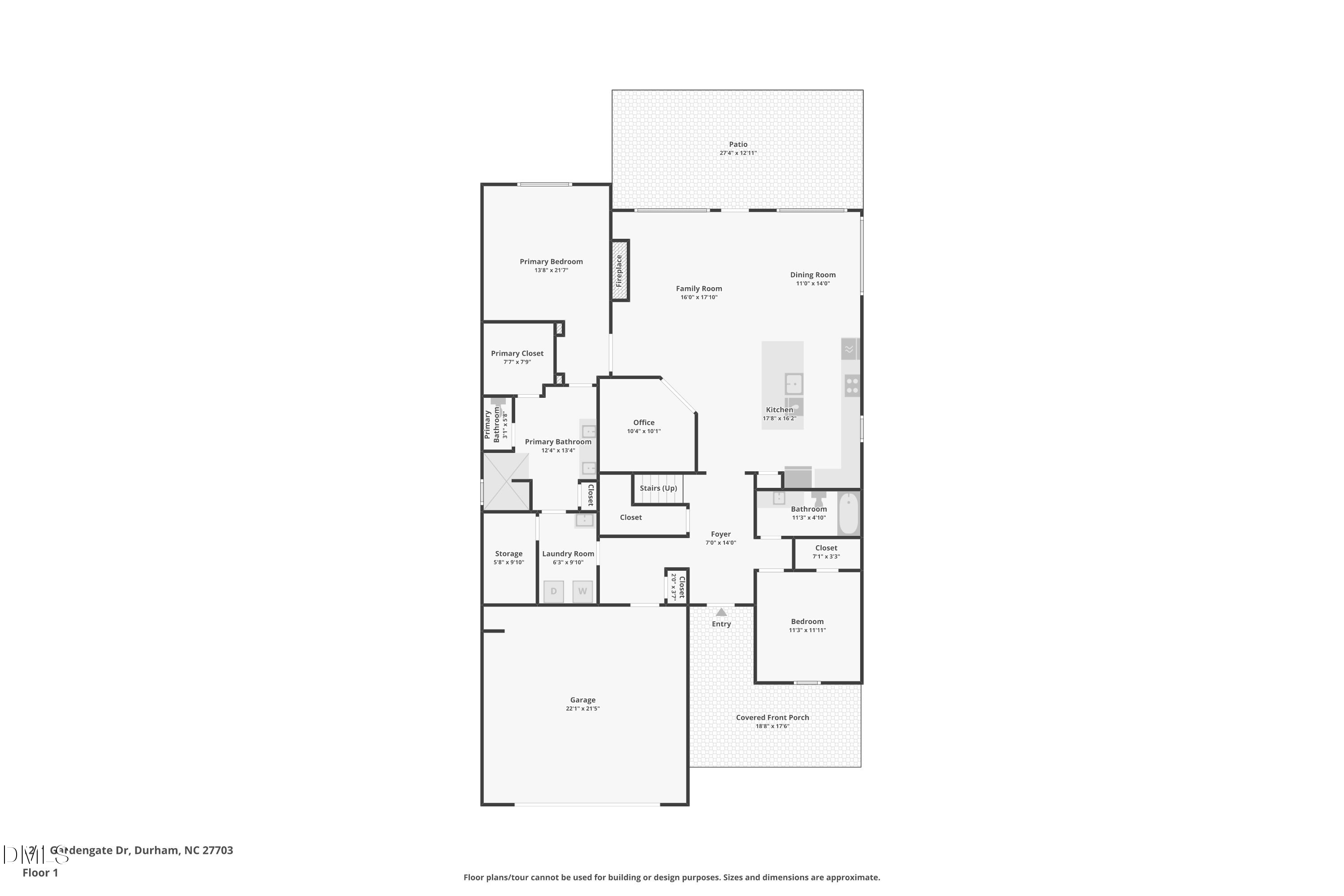
- 3 beds
- 3 baths
- 2,588 sq ft
1211 Gardengate Dr, Durham, NC, 27703
Community: The Courtyards at Andrews Chapel
-
Home type
Single family
-
Year built
2020
-
Lot size
6,098 sq ft
-
Price per sq ft
$286
-
Taxes
$6993 / Yr
-
HOA fees
$260 / Mo
-
Last updated
Today
-
Views
11
Questions? Call us: (743) 500-6423
Overview
Welcome to 1211 Gardengate Drive in Durham, NC, a beautifully crafted 3-bedroom, 3-bath home located in the sought-after luxury ranch community of The Courtyards of Andrews Chapel. Built in 2020, this thoughtfully designed residence offers approximately 2,500+ square feet of elegant, low-maintenance living with modern finishes throughout . Step inside to an open-concept floor plan featuring spacious living and dining areas, perfect for both everyday living and entertaining. The gourmet kitchen flows seamlessly into the main living space, while large windows invite in abundant natural light. The primary suite offers a private retreat with a well-appointed en-suite bath and generous closet space. Designed with comfort and convenience in mind, this home includes additional guest bedrooms, flexible living areas, and a 2-car garage. Enjoy the benefits of ranch-style living with minimal exterior maintenance, all within a vibrant, amenity-rich community known for its charm. Ideally located near shopping, dining, and major highways, this home offers easy access to RTP, RDU Airport, and all that the Triangle has to offer. Experience luxury, convenience, and lifestyle all in one exceptional property. Schedule your showing today!
Interior
Appliances
- Dishwasher, Double Oven, Electric Water Heater, Gas Cooktop, Microwave, Oven
Bedrooms
- Bedrooms: 3
Bathrooms
- Total bathrooms: 3
- Full baths: 3
Laundry
- Laundry Room
- Main Level
Cooling
- Central Air
Heating
- Floor Furnace, Natural Gas
Features
- Tub Shower, Ceiling Fan(s), Chandelier, Entrance Foyer, Granite Counters, High Ceilings, Kitchen/Dining Combo, Master Downstairs, Quartz Countertops, Recessed Lighting, Stall Shower, Smooth Ceilings, Tray Ceiling(s), Vaulted Ceiling(s), Walk-In Closet(s), Walk-In Shower
Levels
- One and One Half
Size
- 2,588 sq ft
Exterior
Private Pool
- No
Patio & Porch
- Covered, Patio, Porch
Roof
- Shingle
Garage
- Attached
- Garage Spaces: 2
- Attached
- Driveway
- Garage
Carport
- None
Year Built
- 2020
Lot Size
- 0.14 acres
- 6,098 sq ft
Waterfront
- No
Water Source
- Public
Sewer
- Public Sewer
Community Info
HOA Information
- Association Fee: $260
- Association Fee Frequency: Monthly
- Association Fee Includes: Clubhouse, Pool, Trail(s), Maintenance Grounds
Taxes
- Annual amount: $6,992.72
- Tax year:
Senior Community
- No
Listing courtesy of: Dena Vore, Costello Real Estate & Investm Listing Agent Contact Information: 919-802-1681
MLS ID: 10155578
Listings marked with a Doorify MLS icon are provided courtesy of the Doorify MLS, of North Carolina, Internet Data Exchange Database. Brokers make an effort to deliver accurate information, but buyers should independently verify any information on which they will rely in a transaction. The listing broker shall not be responsible for any typographical errors, misinformation, or misprints, and they shall be held totally harmless from any damages arising from reliance upon this data. This data is provided exclusively for consumers' personal, non-commercial use. Copyright 2024 Doorify MLS of North Carolina. All rights reserved.
The Courtyards at Andrews Chapel Real Estate Agent
Want to learn more about The Courtyards at Andrews Chapel?
Here is the community real estate expert who can answer your questions, take you on a tour, and help you find the perfect home.
Get started today with your personalized 55+ search experience!
Want to learn more about The Courtyards at Andrews Chapel?
Get in touch with a community real estate expert who can answer your questions, take you on a tour, and help you find the perfect home.
Get started today with your personalized 55+ search experience!
Homes Sold:
55+ Homes Sold:
Sold for this Community:
Avg. Response Time:
Community Key Facts
The Courtyards at Andrews Chapel
Age Restrictions
- None
Amenities & Lifestyle
- See The Courtyards at Andrews Chapel amenities
- See The Courtyards at Andrews Chapel clubs, activities, and classes
Homes in Community
- Total Homes: 120
- Home Types: Single-Family
Gated
- No
Construction
- Construction Dates: 2017 - 2020
- Builder: Epcon Communities
Popular cities in North Carolina
The following amenities are available to The Courtyards at Andrews Chapel - Durham, NC residents:
- Clubhouse/Amenity Center
- Fitness Center
- Outdoor Pool
- Walking & Biking Trails
- Lakes - Scenic Lakes & Ponds
- Parks & Natural Space
- Outdoor Patio
- Multipurpose Room
- Gazebo
There are plenty of activities available in The Courtyards at Andrews Chapel. Here is a sample of some of the clubs, activities and classes offered here.




