-
Home type
Villa
-
Year built
2014
-
Lot size
5,871 sq ft
-
Price per sq ft
$260
-
Taxes
$5598 / Yr
-
HOA fees
$518 / Qtr
-
Last updated
2 days ago
-
Views
2
-
Saves
1
Questions? Call us: (941) 265-8004
Overview
Welcome to your dream retreat in the exceptional gated Grand Palm community! This spacious, maintenance-free 2-bedroom, 2-bath home with a versatile den combines comfort and convenience. Step into an open and inviting layout featuring a gourmet kitchen with Corian countertops, high vaulted ceilings, and a great room perfect for entertaining. The main living areas and bathrooms showcase elegant tile floors, while luxury vinyl adds warmth to the bedrooms and den. Enjoy your mornings or evenings on the expansive, screened-in lanai overlooking the lush surroundings. Fully furnished, this home is move-in ready for you to start enjoying immediately. Beyond your doorstep, Grand Palm offers an impressive array of resort-style amenities. With two clubhouses, a resort-style pool, lap pool, spa, fitness center, and gathering hall, there's something for everyone. Sports enthusiasts can enjoy tennis, pickleball, and miles of scenic walking trails, while the pier offers a peaceful spot for fishing. A playground, dog park, and numerous other recreational spaces make this community truly unique. Experience the best in maintenance-free living at Grand Palm!
Interior
Appliances
- Dishwasher, Disposal, Dryer, Gas Water Heater, Microwave, Range, Refrigerator, Washer, Water Filter
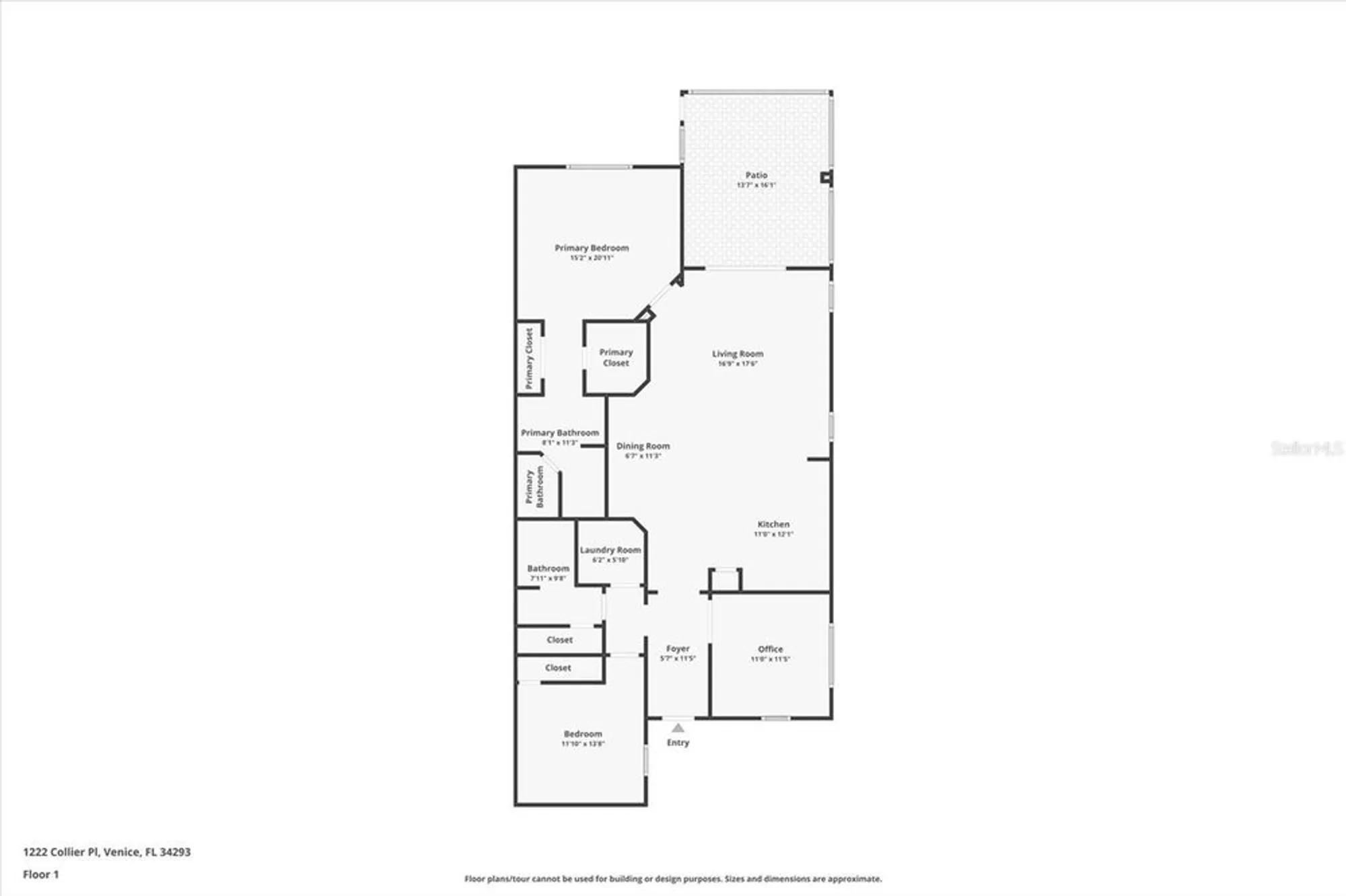
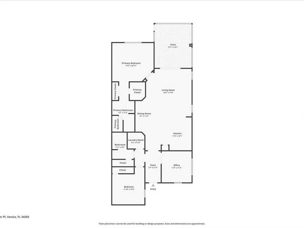
Bedrooms
- Bedrooms: 2
Bathrooms
- Total bathrooms: 2
- Full baths: 2
Laundry
- Inside
- Laundry Room
Cooling
- Central Air
Heating
- Central, Electric, Natural Gas
Fireplace
- None
Features
- Ceiling Fan(s), Crown Molding, Eat-in Kitchen, High Ceilings, Kitchen/Family Room Combo, Open Floorplan, Main Level Primary, Solid Surface Counters, Solid-Wood Cabinets, Split Bedrooms, Tray Ceiling(s), Vaulted Ceiling(s), Walk-In Closet(s), Window Treatments
Levels
- One
Size
- 1,517 sq ft
Exterior
Private Pool
- No
Patio & Porch
- Covered, Deck, Enclosed, Patio, Porch, Screened
Roof
- Tile
Garage
- Attached
- Garage Spaces: 2
- Garage Door Opener
Carport
- None
Year Built
- 2014
Lot Size
- 0.13 acres
- 5,871 sq ft
Waterfront
- No
Water Source
- Public
Sewer
- Public Sewer
Community Info
HOA Fee
- $518
- Frequency: Quarterly
- Includes: Clubhouse, Fitness Center, Gated, Maintenance, Park, Playground, Pool, Recreation Facilities, Security, Spa/Hot Tub, Tennis Court(s)
Taxes
- Annual amount: $5,597.62
- Tax year: 2023
Senior Community
- No
Features
- Association Recreation - Owned, Deed Restrictions, Fitness Center, Gated, Golf Carts Permitted, Park, Playground, Pool, Tennis Court(s), Street Lights
Location
- City: Venice
- County/Parrish: Sarasota
- Township: 39
Listing courtesy of: Kano Keller, WHITE SANDS REALTY GROUP FL, 941-923-5835
MLS ID: N6135055
Listings courtesy of Stellar MLS as distributed by MLS GRID. Based on information submitted to the MLS GRID as of Nov 24, 2025, 03:14pm PST. All data is obtained from various sources and may not have been verified by broker or MLS GRID. Supplied Open House Information is subject to change without notice. All information should be independently reviewed and verified for accuracy. Properties may or may not be listed by the office/agent presenting the information. Properties displayed may be listed or sold by various participants in the MLS.
Grand Palm Real Estate Agent
Want to learn more about Grand Palm?
Here is the community real estate expert who can answer your questions, take you on a tour, and help you find the perfect home.
Get started today with your personalized 55+ search experience!
Want to learn more about Grand Palm?
Get in touch with a community real estate expert who can answer your questions, take you on a tour, and help you find the perfect home.
Get started today with your personalized 55+ search experience!
Homes Sold:
55+ Homes Sold:
Sold for this Community:
Avg. Response Time:
Community Key Facts
Age Restrictions
Amenities & Lifestyle
- See Grand Palm amenities
- See Grand Palm clubs, activities, and classes
Homes in Community
- Total Homes: 1,700
- Home Types: Single-Family, Attached
Gated
- Yes
Construction
- Construction Dates: 2012 - Present
- Builder: Neal Communities, Neal, Del Webb
Similar homes in this community
Popular cities in Florida
The following amenities are available to Grand Palm - Wellen Park, FL residents:
- Clubhouse/Amenity Center
- Restaurant
- Fitness Center
- Outdoor Pool
- Walking & Biking Trails
- Tennis Courts
- Bocce Ball Courts
- Basketball Court
- Volleyball Court
- Lakes - Scenic Lakes & Ponds
- Playground for Grandkids
- Outdoor Patio
- Pet Park
- On-site Retail
- Multipurpose Room
- Misc.
- Gathering Areas
- Bar
There are plenty of activities available in Grand Palm. Here is a sample of some of the clubs, activities and classes offered here.
- Basketball
- Bocce Ball
- Fitness Classes
- Tennis
- Volleyball




