• Home type

    Detached

  • Year built

    2025

  • Lot size

    20,081 sq ft

  • Price per sq ft

    $338

  • Taxes

    $8316 / Yr

  • HOA fees

    $195 / Mo

  • Last updated

    Today

  • Views

    2


Questions? Call us: (757) 703-3175


Overview

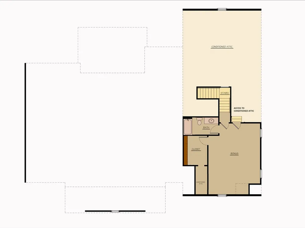
New construction in Ford’s Colony! This rare ranch-style home sits on a level lot with gentle slope —one of the last in the community without a basement. Featuring tray ceilings in the family room that opens to a spacious kitchen with induction stove top, custom locally made cabinetry and eat-in dining. The first floor includes hardwood flooring, a formal dining room, private study, and a primary suite, plus two additional bedrooms, two full baths, and a powder room. Bonus room over the garage serves as a 4th bedroom or flex space. Enjoy peaceful outdoor living on the screened porch overlooking the pond. Certified DOE Zero Energy Ready Home with 2x6 exterior walls, conditioned crawl space and attic, ehanced indoor air quaility and Solar Ready, offering future-ready comfort and efficiency. Includes a 2-car garage. Move-in ready Fall 2025—don’t miss this opportunity!


Interior

Appliances

  • Built-In Oven, Dishwasher, Exhaust Fan, Freezer, Some Gas Appliances, Disposal, Gas Water Heater, Ice Maker, Microwave, Refrigerator, Range Hood, Stove, Tankless Water Heater, Wine Cooler, ENERGY STAR Qualified Appliances

Bedrooms

  • Bedrooms: 4

Bathrooms

  • Total bathrooms: 4
  • Half baths: 1
  • Full baths: 3

Laundry

  • Washer Hookup
  • Dryer Hookup

Cooling

  • Central Air, Electric, Zoned

Heating

  • Electric, Heat Pump, Zoned

Fireplace

  • 1

Features

  • Attic Access, Tray Ceiling(s), Ceiling Fan(s), Cathedral Ceiling(s), Separate/Formal Dining Room, Double Vanity, Eat-in Kitchen, Granite Counters, Garden Tub/Roman Tub, High Ceilings, Kitchen Island, Pantry, Recessed Lighting, Walk-In Closet(s), BuiltInShowerChair

Levels

  • Two,One

Size

  • 3,257 sq ft

Exterior

Private Pool

  • No

Patio & Porch

  • Front Porch, Porch, Screened

Roof

  • Asphalt,Shingle

Garage

  • Attached
  • Garage Spaces: 2
  • Attached
  • DirectAccess
  • Driveway
  • Garage
  • GarageDoorOpener
  • Paved
  • TwoSpaces
  • OnStreet

Carport

  • None

Year Built

  • 2025

Lot Size

  • 0.46 acres
  • 20,081 sq ft

Waterfront

  • No

Water Source

  • Public

Sewer

  • Public Sewer

Community Info

HOA Fee

  • $195
  • Frequency: Monthly

Taxes

  • Annual amount: $8,316.00
  • Tax year: 2024

Senior Community

  • No

Features

  • Pool, TennisCourts, TrailsPaths

Location


Listing courtesy of: Morgan E Wojciechowski, Nu Homes Realty Listing Agent Contact Information: [email protected]

Source: Wmlst
MLS ID: 2502215

Wmlst

© 2025 WMLS. All rights reserved. The property data as provided by 55places.com is believed to be correct, however, interested parties are advised to confirm the information prior to making a purchase decision. The data relating to real estate for sale on this website comes in part from the Internet Data Exchange Program of the WMLS. Real estate listings held by brokerage firms other than 55places.com are marked with the Internet Data Exchange logo or the Internet Data Exchange brief/thumbnail logo and detailed information about them includes the name of the listing firms.


Ford’s Colony Real Estate Agent

Want to learn more about Ford’s Colony?

Here is the community real estate expert who can answer your questions, take you on a tour, and help you find the perfect home.

Get started today with your personalized 55+ search experience!

Want to learn more about Ford’s Colony?

Get in touch with a community real estate expert who can answer your questions, take you on a tour, and help you find the perfect home.

Get started today with your personalized 55+ search experience!

Homes Sold:

55+ Homes Sold:

Sold for this Community:

Avg. Response Time:

Global - Lead Form - Buyer Only
*55places does not provide or maintain community HOA information.
By requesting more information, you agree that 55places placeholder may call, text, or email you about your inquiry, which may be made with automated means (including recorded voice messages, SMS, or text messages). You understand that your consent is not a prerequisite for buying, selling or renting a property. You may revoke your consent at any time by contacting [email protected]. Message/data rates may apply. You also agree to 55places.com's Privacy Policy and Terms of Use.

Community Key Facts

Ford’s Colony

Age Restrictions

  • None

Amenities & Lifestyle

  • See Ford’s Colony amenities
  • See Ford’s Colony clubs, activities, and classes

Homes in Community

  • Total Homes: 3,250
  • Home Types: Attached, Condos, Single-Family

Gated

  • Yes

Construction

  • Construction Dates: 1987 - Present
  • Builder: Multiple Builders

Similar homes in this community Ford’s Colony

$515,000
4 Beds | 3 Baths | 2256 Sq. Ft.
MLS #2503382
Long & Foster Real Estate, Inc., Carmen Hamner
$1,250,000
4 Beds | 4 Baths | 4296 Sq. Ft.
MLS #VAJC2000540
Berkshire Hathaway Homeservices Towne Realty, Olyvia K Salyer
$995,000
4 Beds | 4 Baths | 3100 Sq. Ft.
MLS #2503452
Shaheen, Ruth, Martin & Fonville Real Estate, Jesse Meadows

Ford’s Colony Real Estate Agent

Want to learn more about Ford’s Colony?

Here is the community real estate expert who can answer your questions, take you on a tour, and help you find the perfect home.

Get started today with your personalized 55+ search experience!

Want to learn more about Ford’s Colony?

Get in touch with a community real estate expert who can answer your questions, take you on a tour, and help you find the perfect home.

Get started today with your personalized 55+ search experience!

Homes Sold:

55+ Homes Sold:

Sold for this Community:

Avg. Response Time:

Global - Lead Form - Buyer Only
*55places does not provide or maintain community HOA information.
By requesting more information, you agree that 55places placeholder may call, text, or email you about your inquiry, which may be made with automated means (including recorded voice messages, SMS, or text messages). You understand that your consent is not a prerequisite for buying, selling or renting a property. You may revoke your consent at any time by contacting [email protected]. Message/data rates may apply. You also agree to 55places.com's Privacy Policy and Terms of Use.

Agent Image
 

Community Expert

Call Us Call Us
Scroll to Top