- 2 beds
- 2 baths
- 1,200 sq ft
13320 Del Monte Dr M15 9g, Seal Beach, CA, 90740
Community: Leisure World® Seal Beach
-
Home type
Stock cooperative
-
Year built
1964
-
Price per sq ft
$633
-
HOA fees
$950 / Mo
-
Last updated
1 day ago
-
Views
9
-
Saves
1
Questions? Call us: (657) 329-7976
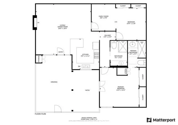
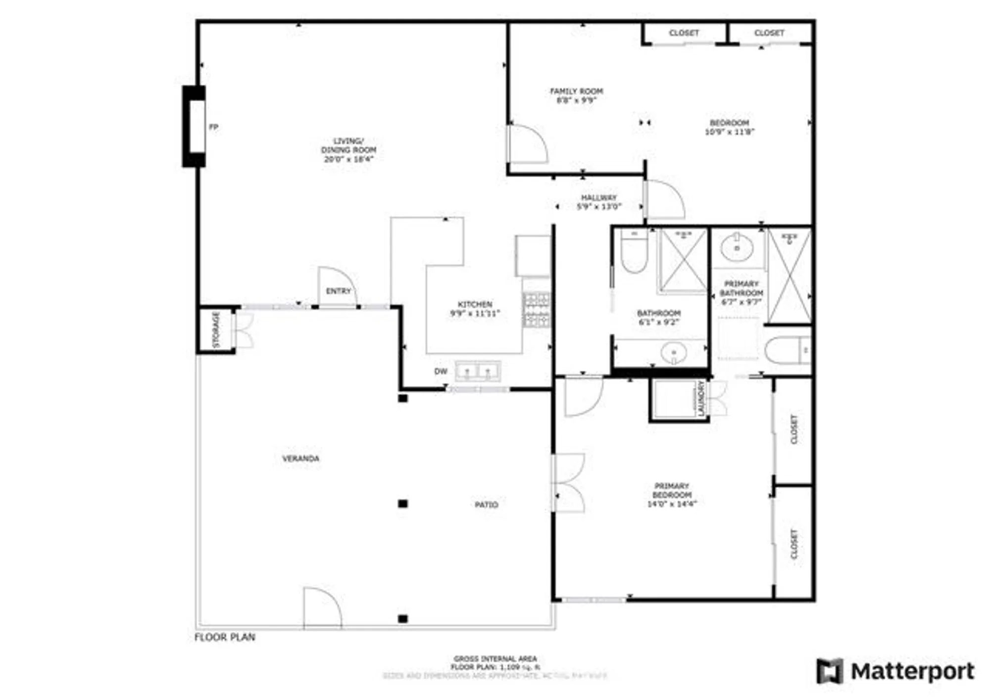
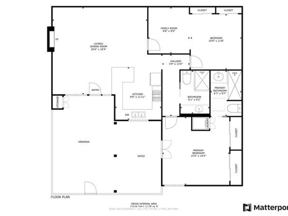
Overview
DRASTIC PRICE REDUCTION Stunning Full Remodel in Desirable Mutual 15 – 2 Bed, 2 Bath + Den Atrium Unit with Large Patio Beautifully upgraded, this spacious 2-bedroom, 2-bath home with a versatile den/atrium offers modern elegance and thoughtful design throughout. Located in sought-after Mutual 15, the unit features a generous partially covered patio with ceiling fan, elegant SoHo herringbone pavers, and smooth-finish walls—perfect for outdoor relaxing or entertaining. Adjacent golf cart pad includes a covered electrical outlet for convenience. Step inside to a bright and welcoming living room with vaulted ceilings highlighted by a striking chandelier and solar tube skylight, casting light over a sleek electric fireplace with gorgeous custom stone surround. The dining area flows seamlessly into a chef-inspired kitchen, featuring tall ivory cabinetry with black hardware, white and gray quartz countertops, full backsplash, and an RO water filtration system. High-end Samsung appliances include a built-in microwave, dishwasher, and Bespoke refrigerator with customizable door panels. The spacious primary suite offers French doors to the patio and a beautifully updated en-suite bath with skylight, tiled shower, and built-in bench. The second bedroom opens to the central atrium, which includes an operable skylight—perfect as a home office, reading nook, or potential third bedroom. A second fully remodeled bathroom in the hallway features another stylish tiled shower. A convenient LG washer-dryer stack is tucked away in a closet near the primary bathroom. The home also includes central heating and air conditioning for year-round comfort. Additional upgrades include smooth ceilings, 4” modern block baseboards, mirrored wardrobe doors, and custom window treatments from The Shade Store. View the 360-video tour! Some furnishings negotiable.
Interior
Bedrooms
- Bedrooms: 2
Bathrooms
- Total bathrooms: 2
- Full baths: 2
Laundry
- In Closet
Cooling
- Central Air
Heating
- Central
Fireplace
- None
Features
- High Ceilings, All Bedrooms on Lower Level
Levels
- One
Size
- 1,200 sq ft
Exterior
Private Pool
- No
Garage
- None
Carport
- Carport Spaces:
- Carport
- Covered
Year Built
- 1964
Waterfront
- No
Water Source
- Public
Sewer
- Conventional Septic,Public Sewer
Community Info
HOA Fee
- $950
- Frequency: Monthly
- Includes: Pickleball, Pool, Golf Course, Gym, Clubhouse
Senior Community
- Yes
Listing courtesy of: Dorothy Mesner, Triple S Realty, Inc, 562-235-6370
MLS ID: PW25101149
Based on information from California Regional Multiple Listing Service, Inc. as of Nov 29, 2025 and/or other sources. All data, including all measurements and calculations of area, is obtained from various sources and has not been, and will not be, verified by broker or MLS. All information should be independently reviewed and verified for accuracy. Properties may or may not be listed by the office/agent presenting the information.
Leisure World® Seal Beach Real Estate Agent
Want to learn more about Leisure World® Seal Beach?
Here is the community real estate expert who can answer your questions, take you on a tour, and help you find the perfect home.
Get started today with your personalized 55+ search experience!
Want to learn more about Leisure World® Seal Beach?
Get in touch with a community real estate expert who can answer your questions, take you on a tour, and help you find the perfect home.
Get started today with your personalized 55+ search experience!
Homes Sold:
55+ Homes Sold:
Sold for this Community:
Avg. Response Time:
Community Key Facts
Age Restrictions
- 55+
Amenities & Lifestyle
- See Leisure World® Seal Beach amenities
- See Leisure World® Seal Beach clubs, activities, and classes
Homes in Community
- Total Homes: 6,608
- Home Types: Attached, Condos
Gated
- Yes
Construction
- Construction Dates: 1960 - 1981
- Builder: Rossmoor Corporation
Similar homes in this community
Popular cities in California
The following amenities are available to Leisure World® Seal Beach - Seal Beach, CA residents:
- Clubhouse/Amenity Center
- Golf Course
- Fitness Center
- Outdoor Pool
- Card Room
- Ceramics Studio
- Arts & Crafts Studio
- Sewing Studio
- Lapidary Studio
- Woodworking Shop
- Ballroom
- Performance/Movie Theater
- Computers
- Library
- Billiards
- Shuffleboard Courts
- Horseshoe Pits
- Lawn Bowling
- Outdoor Amphitheater
- R.V./Boat Parking
- Gardening Plots
- Demonstration Kitchen
- Table Tennis
- Outdoor Patio
- Golf Practice Facilities/Putting Green
- Picnic Area
- On-site Retail
- Hospital
- Worship Centers
- Multipurpose Room
- Community Transit
- Misc.
- Lounge
There are plenty of activities available in Leisure World® Seal Beach. Here is a sample of some of the clubs, activities and classes offered here.
- 4X4 Fitness Club
- Ad Hoc Chorus
- Amateur Radio Service Club
- American Legion
- Art League
- Astronomy
- Ballet
- Ballroom Dance
- Barbershop Singing Club
- Bible Study
- Billiards
- Bingo
- Bowling Club
- Bridge
- Britannia Club of LW
- Buddha Circle
- Bunco
- Cabaret Entertainer's Club
- California Retired Teachers
- Cancer Support Group
- Card Party
- Ceramics Club
- Chair Exercise
- Chess
- Children A Priority
- Chinese English Club
- Chinese Friendship Club
- Chorale Club
- Christian Fellowship Fun Club
- Clay Crafters
- Cloggers Club
- Clutterers Anonymous
- Coin Club
- Community Church Women's Fellowship
- Community Service
- Community Sing
- Computer Club
- Continuing Education Classes
- Course in Miracles Group
- Creative Writers
- Cribbage
- Dance Club
- Democrat Club
- Dixiecats
- Dixieland Jazz Club
- Driver Safety
- Early Risers
- Eastern Star Card Club
- Enter Laughing
- Euchrites
- Farmer's Markets
- Feeling Good Aerobics
- Fiction Writers Critique Club
- Filipino Association of LW
- Friendly Couples
- GOP Club
- Gadabouts
- Garden Club
- Genealogy Workshop
- Goldentones Band
- Grapevine Dance Club
- Guitar
- Happy Bikers
- Happy Hours
- Holiday Parties
- Hui O Hula
- International Folk Dance
- Investment Forum
- Italian-American
- Kang Nam Dance Studio
- Karaoke Christmas Party
- Knights of Columbus
- Korean American Chorale
- Korean American Classical Music Class
- Korean American Club
- Korean American Guitar Club
- Korean Catholic Fellowship
- LW Chorale
- LW Historical Society
- LW Sunshine Club
- LW Symphony Orchestra
- LW Women's Sing-Along Club
- Lapidary and Jewelry Making
- Leisure Leggers
- Leisure Time Dance
- Line Dance
- Little Flower Guild
- Live Music
- Low Impact Aerobics
- Mahjong
- Mat Class
- Mexican Train
- Military Officers Association of America
- Mini Farmers
- Multicultural Council
- Music Appreciation
- Musical Strings
- Na' Amat
- Nationalities
- New York Club
- Nikkei Club
- Oil Painting
- Open Forum
- PEO
- Painting
- Parkinson's Support Group
- Phil-Am Social Club
- Photographic Arts
- Pilates Club
- Pinochle
- Poetry Workshop
- Poker Club
- Potlucks
- Producers Club
- Pure Joy Dance Group
- Quilting Bees
- RV Club
- Rockettes Bible Study
- Rollin' Thunder Golf Cart Club
- Saltwater Club
- Salvation Army Home League
- Saturday Night Dances
- Schmooze Club
- Science Discussion Club
- Scrabble
- Scrapbooking Club
- Senior Patriots For Peace
- Seniors Keeping Fit
- Shuffleboard
- Sign Language Group
- Silver Fox Classic Car Club
- Social Club
- Spanish Club
- Special Events Club
- St. Jude Support Group
- Stick, Qigong and Tai Chi Club
- Sunshine Club
- Table Tennis
- Tap Class
- Tennis
- The Company
- The Dance Club
- The Women's Club
- Theater Club
- Touch of Dutch
- Upper Body Strength Class
- Velvetones Swing Band
- Video Producers
- Vietnamese American Club
- Viniyoga Therapy with Mat
- Walking Group
- We The People Club
- Where We Live
- Whirlers Square Dance
- Woodcarving Club
- Writers Group
- Y's Service Club
- Yahtzee Rollers
- Yiddish Club
- Zumba Club




