• Year built

    1972

  • Lot size

    4,792 sq ft

  • Price per sq ft

    $229

  • HOA fees

    $352 / Qtr

  • Last updated

    1 weeks ago

  • Views

    9

  • Saves

    2


Questions? Call us: (657) 500-0418


Overview

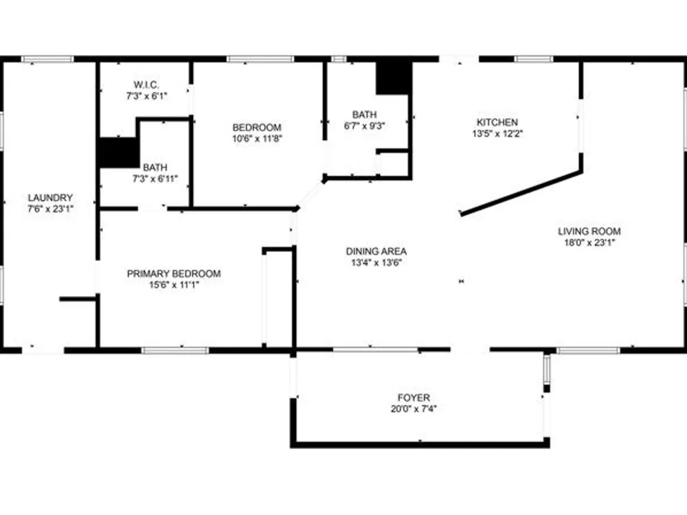
Charming 2-Bedroom Home with Land Ownership in 55+ Community Welcome to your beautifully upgraded mobile home where you own the land—no space rent! This well-maintained 2-bedroom, 2-bathroom home is located in a 55+ community and features two spacious primary suites, each with its own private bathroom—perfect for guests or shared living. Step inside to find stylish touches throughout, including crown molding, wainscoting, and durable vinyl flooring that adds elegance and easy maintenance. The open living and dining areas flow seamlessly, creating a warm and inviting atmosphere. Enjoy the convenience of an attached carport, plus a large storage shed for all your extras. Relax and unwind in the community’s heated pool and spa, all part of the affordable HOA amenities. Don’t miss this rare opportunity to own a beautifully finished home with land included in a welcoming and well-kept community.


Interior

Appliances

  • Dishwasher, Gas Oven, Gas Range, Gas Water Heater, Microwave

Bedrooms

  • Bedrooms: 3

Bathrooms

  • Total bathrooms: 2
  • Full baths: 2

Laundry

  • Individual Room
  • Inside

Cooling

  • Central Air

Heating

  • Central

Fireplace

  • None

Features

  • Crown Molding, Paneling/Wainscoting, All Bedrooms on Lower Level, Kitchen, Laundry Facility, Bedroom on Main Level, Main Level Primary, Walk-In Closet(s)

Levels

  • One

Size

  • 1,480 sq ft

Exterior

Private Pool

  • No

Garage

  • None

Carport

  • Carport Spaces:
  • Carport
  • Attached Carport

Year Built

  • 1972

Lot Size

  • 0.11 acres
  • 4,792 sq ft

Waterfront

  • No

Water Source

  • Public

Sewer

  • Public Sewer

Community Info

HOA Fee

  • $352
  • Frequency: Quarterly

Senior Community

  • Yes

Features

  • Park

Location

  • City: Corona
  • County/Parrish: Riverside

Listing courtesy of: Nancy Loop, 1st Premier Realty, 951-809-3923

Source: Crmls
MLS ID: IG25147892

Crmls

Based on information from California Regional Multiple Listing Service, Inc. as of Sep 27, 2025 and/or other sources. All data, including all measurements and calculations of area, is obtained from various sources and has not been, and will not be, verified by broker or MLS. All information should be independently reviewed and verified for accuracy. Properties may or may not be listed by the office/agent presenting the information.


Village Grove Real Estate Agent

Want to learn more about Village Grove?

Here is the community real estate expert who can answer your questions, take you on a tour, and help you find the perfect home.

Get started today with your personalized 55+ search experience!

Want to learn more about Village Grove?

Get in touch with a community real estate expert who can answer your questions, take you on a tour, and help you find the perfect home.

Get started today with your personalized 55+ search experience!

Homes Sold:

55+ Homes Sold:

Sold for this Community:

Avg. Response Time:

Global - Lead Form - Buyer Only
*55places does not provide or maintain community HOA information.
By requesting more information, you agree that 55places placeholder may call, text, or email you about your inquiry, which may be made with automated means (including recorded voice messages, SMS, or text messages). You understand that your consent is not a prerequisite for buying, selling or renting a property. You may revoke your consent at any time by contacting [email protected]. Message/data rates may apply. You also agree to 55places.com's Privacy Policy and Terms of Use.

Community Key Facts

Village Grove

Age Restrictions

  • 55+

Amenities & Lifestyle

  • See Village Grove amenities
  • See Village Grove clubs, activities, and classes

Homes in Community

  • Total Homes: 120
  • Home Types: Manufactured

Gated

  • Yes

Construction

  • Construction Dates: 1966 - Present
  • Builder: Allied

Similar homes in this community Village Grove

$495,000
3 Beds | 2 Baths | 1710 Sq. Ft.
MLS #IG25179398
Century 21 Garland, Ed Garland
$257,500
2 Beds | 2 Baths | 1248 Sq. Ft.
MLS #IG25189139
Century 21 Garland, Ed Garland
$269,000
2 Beds | 1 Baths | 1152 Sq. Ft.
MLS #IG25184423
1st Premier Realty, Nancy Loop

Village Grove Real Estate Agent

Want to learn more about Village Grove?

Here is the community real estate expert who can answer your questions, take you on a tour, and help you find the perfect home.

Get started today with your personalized 55+ search experience!

Want to learn more about Village Grove?

Get in touch with a community real estate expert who can answer your questions, take you on a tour, and help you find the perfect home.

Get started today with your personalized 55+ search experience!

Homes Sold:

55+ Homes Sold:

Sold for this Community:

Avg. Response Time:

Global - Lead Form - Buyer Only
*55places does not provide or maintain community HOA information.
By requesting more information, you agree that 55places placeholder may call, text, or email you about your inquiry, which may be made with automated means (including recorded voice messages, SMS, or text messages). You understand that your consent is not a prerequisite for buying, selling or renting a property. You may revoke your consent at any time by contacting [email protected]. Message/data rates may apply. You also agree to 55places.com's Privacy Policy and Terms of Use.

Agent Image
 

Community Expert

Call Us Call Us
Scroll to Top