- 2 beds
 - 2 baths
 - 1,712 sq ft
 
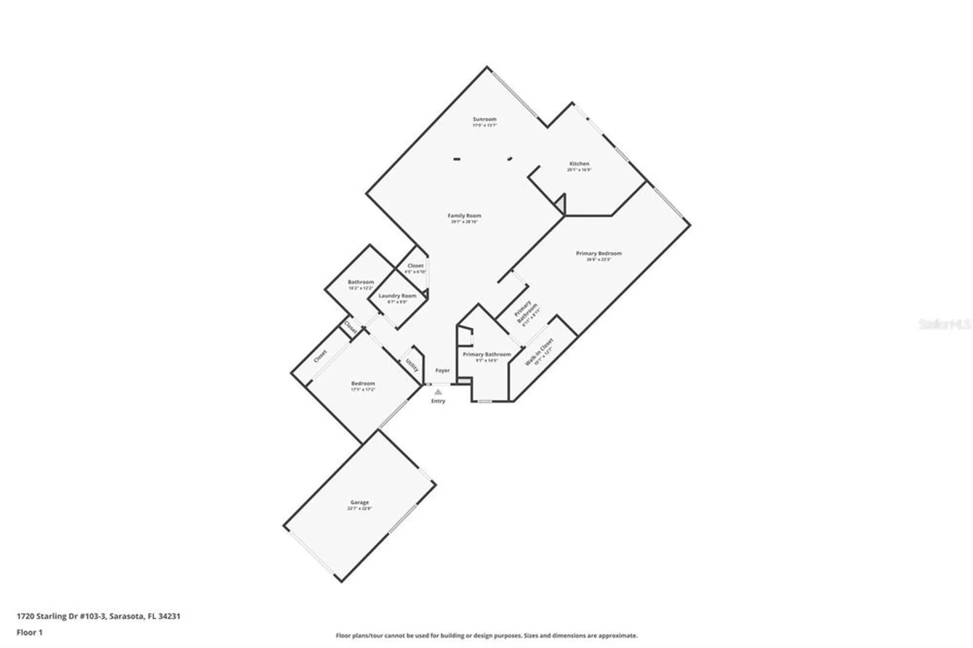
1720 Starling Dr 103, Sarasota, FL, 34231
Community: The Landings
- 
				
				Home type
Condominium
 - 
				
				Year built
1988
 - 
				
				Lot size
167,526 sq ft
 - 
				
				Price per sq ft
$232
 - 
				
				Taxes
$4096 / Yr
 - 
				
				HOA fees
$2050 /
 - 
				
				Last updated
1 day ago
 - 
				
				Views
5
 - 
				
				Saves
1
 
Questions? Call us: (941) 260-0939
Overview
Welcome to this beautifully designed single-level unit offering 1,712sqft of thoughtfully crafted space. Step inside and feel the difference—high ceilings, new luxury vinyl floors, crisp baseboards, and large sliding back doors give the whole place a bright and modern feel. The kitchen features new appliances, granite countertops, and opens seamlessly to the dining area and family room, making it perfect for entertaining guests or everyday living. Step out onto the back deck that is surrounded by lush, Florida greenery overlooking a serene lake creating a tranquil spot to enjoy morning coffee or for some evening unwinding. The generously sized master suite offers a peaceful escape, featuring plush, new Karastan carpet, a stylish headboard accent wall, and a spacious walk-in closet. Just beside the closet, a dedicated vanity area provides space to get ready for a night out or a quick trip downtown. Step into the en-suite bathroom, where modern sophistication shines through an updated gray vanity topped with quartz, complemented by new lighting and fixtures. The home’s true split floor plan ensures privacy for all, with the second bedroom tucked away on the opposite side—ideal for guests or a home office. It enjoys easy access to a second full bath, complete with a granite countertop vanity and tasteful finishes. The unit includes a centrally located laundry room with a full-size washer and dryer, plus built-in storage cabinets, making everyday chores a breeze. A one-car garage adds convenience and completes this thoughtfully designed home. Beyond the walls of this beautiful place, The Landings offers a lifestyle that is second to none. Residents enjoy 24-hour gated security, direct access to Sarasota Bay, and a vibrant natural setting that feels like a private sanctuary. Amenities include a heated swimming pool with designated lap lanes and a relaxing spa, a full-size fitness center with locker rooms and showers, two clubhouses available for social gatherings and recreation, as well as Pickleball courts and 8 Har-Tru clay tennis courts for active living. Children will also love the opportunity to take tennis lessons and explore two beautiful, local parks. Recent community upgrades include a new roof (August 2023) and freshly paved roads (2024), ensuring both beauty and peace of mind. Located just outside the gate, there are many top-tier restaurants, and with Siesta Key Beach less than 6 miles away, you are never far from the world-class sunsets. Whether you are seeking a prime investment or your forever Florida home, this property offers the perfect blend of luxury, location, and lifestyle.
Interior
Appliances
- Dishwasher, Dryer, Electric Water Heater, Kitchen Reverse Osmosis System, Microwave, Range, Refrigerator, Washer
 
Bedrooms
- Bedrooms: 2
 
Bathrooms
- Total bathrooms: 2
 - Full baths: 2
 
Laundry
- Inside
 
Cooling
- Central Air
 
Heating
- Electric
 
Fireplace
- None
 
Features
- Ceiling Fan(s), High Ceilings, Open Floorplan, Main Level Primary, Split Bedrooms, Walk-In Closet(s)
 
Levels
- One
 
Size
- 1,712 sq ft
 
Exterior
Private Pool
- No
 
Roof
- Tile
 
Garage
- Attached
 - Garage Spaces: 1
 
Carport
- None
 
Year Built
- 1988
 
Lot Size
- 3.85 acres
 - 167,526 sq ft
 
Waterfront
- No
 
Water Source
- Public
 
Sewer
- Public Sewer
 
Community Info
HOA Fee
- $2,050
 - Includes: Clubhouse, Fitness Center, Gated, Maintenance, Pickleball, Pool, Racquetball, Recreation Facilities, Spa/Hot Tub, Tennis Court(s), Trail(s)
 
Taxes
- Annual amount: $4,096.00
 - Tax year: 2024
 
Senior Community
- No
 
Features
- Buyer Approval Required, Clubhouse, Community Mailbox, Deed Restrictions, Fitness Center, Gated, Guarded Entrance, Pool, Racquetball, Sidewalks, Tennis Court(s)
 
Location
- City: Sarasota
 - County/Parrish: Sarasota
 - Township: 37
 
Listing courtesy of: Sarah Reedy, COLDWELL BANKER REALTY, 941-383-6411
MLS ID: A4664907
Listings courtesy of Stellar MLS as distributed by MLS GRID. Based on information submitted to the MLS GRID as of Nov 04, 2025, 02:46am PST. All data is obtained from various sources and may not have been verified by broker or MLS GRID. Supplied Open House Information is subject to change without notice. All information should be independently reviewed and verified for accuracy. Properties may or may not be listed by the office/agent presenting the information. Properties displayed may be listed or sold by various participants in the MLS.
The Landings Real Estate Agent
Want to learn more about The Landings?
Here is the community real estate expert who can answer your questions, take you on a tour, and help you find the perfect home.
Get started today with your personalized 55+ search experience!
Want to learn more about The Landings?
Get in touch with a community real estate expert who can answer your questions, take you on a tour, and help you find the perfect home.
Get started today with your personalized 55+ search experience!
Homes Sold:
55+ Homes Sold:
Sold for this Community:
Avg. Response Time:
Community Key Facts
Age Restrictions
- None
 
Amenities & Lifestyle
- See The Landings amenities
 - See The Landings clubs, activities, and classes
 
Homes in Community
- Total Homes: 696
 - Home Types: Single-Family, Attached, Condos
 
Gated
- Yes
 
Construction
- Construction Dates: 1995 - Present
 - Builder: Multiple Builders
 
Similar homes in this community
Popular cities in Florida
The following amenities are available to The Landings - Sarasota, FL residents:
- Clubhouse/Amenity Center
 - Fitness Center
 - Outdoor Pool
 - Library
 - Tennis Courts
 - Pickleball Courts
 - Lakes - Scenic Lakes & Ponds
 
- Parks & Natural Space
 - Outdoor Patio
 - On-site Retail
 - Multipurpose Room
 - Misc.
 - Spa
 
There are plenty of activities available in The Landings. Here is a sample of some of the clubs, activities and classes offered here.
- Barbecues
 - Bridge
 - Canasta
 - Holiday Gatherings
 - Jazzercise
 - Koffee Klatches
 - Landings Free College Lectures & Performances
 - Mahjong
 - Movie Nights
 
- Pickleball
 - Poker
 - Tennis
 - Tennis Exhibitions
 - Tennis Tournaments
 - Trivia Events
 - Yoga
 - Zumba
 

						
						
						


