• Home type

    Single family

  • Year built

    2006

  • Lot size

    22,651 sq ft

  • Price per sq ft

    $190

  • Taxes

    $959 / Yr

  • HOA fees

    $115 / Mo

  • Last updated

    Today

  • Views

    5

  • Saves

    14


Questions? Call us: (931) 340-7334


Overview

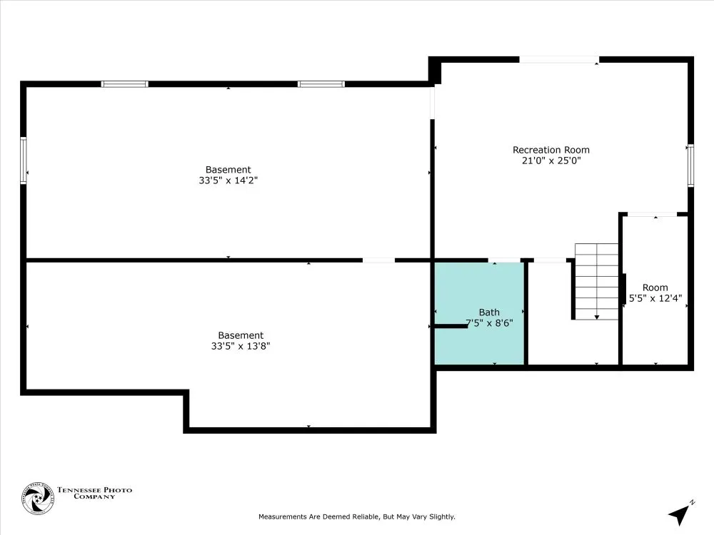
Charming Basement Ranch in Fairfield Glade North This 3-bedroom, 3-bath home blends comfort and flexibility in a beautiful wooded setting. The cozy living room with fireplace flows seamlessly into the dining area and kitchen, while the split-bedroom layout ensures privacy for family or guests. The finished walk-out basement features a spacious rec room and full bath, plus 700+ sq ft of unfinished space ready for your vision—whether it's a 4th bedroom, office, media room, or in-law suite. Step outside to enjoy your private deck with hot tub, surrounded by trees and flowering plants—a perfect retreat at the end of the day. Washer, dryer, refrigerator, and hot tub convey, and the roof is just 3 years young! All this within Fairfield Glade, a community offering championship golf, hiking trails, pools, tennis, and more. This isn't just a home—it's the lifestyle you've been waiting for!


Interior

Appliances

  • Dishwasher, Disposal, Dryer, Microwave, Range, Refrigerator, Self Cleaning Oven, Washer

Bedrooms

  • Bedrooms: 3

Bathrooms

  • Total bathrooms: 3
  • Full baths: 3

Cooling

  • Central Cooling, Ceiling Fan(s)

Heating

  • Central, Propane, Electric

Fireplace

  • 1

Features

  • Walk-In Closet(s), Eat-in Kitchen

Exterior

Private Pool

  • No

Patio & Porch

  • Deck

Garage

  • Attached
  • Garage Spaces: 2
  • Garage Door Opener
  • Attached
  • Main Level

Carport

  • None

Year Built

  • 2006

Lot Size

  • 0.52 acres
  • 22,651 sq ft

Waterfront

  • No

Water Source

  • Public

Sewer

  • Public Sewer

Community Info

HOA Fee

  • $115
  • Frequency: Monthly
  • Includes: Swimming Pool, Tennis Courts, Club House, Golf Course, Playground, Recreation Facilities

Taxes

  • Annual amount: $959.08
  • Tax year:

Senior Community

  • No

Location

  • City: Crossville
  • County/Parrish: Cumberland County - 34

Listing courtesy of: Angie Cody, LPT Realty, LLC

Source: Kaarmls
MLS ID: 1309455

Kaarmls

IDX information is provided exclusively for consumers' personal, non-commercial use, that it may not be used for any purpose other than to identify prospective properties consumers may be interested in purchasing. Data is deemed reliable but is not guaranteed accurate by the MLS.


Fairfield Glade Real Estate Agent

Want to learn more about Fairfield Glade?

Here is the community real estate expert who can answer your questions, take you on a tour, and help you find the perfect home.

Get started today with your personalized 55+ search experience!

Want to learn more about Fairfield Glade?

Get in touch with a community real estate expert who can answer your questions, take you on a tour, and help you find the perfect home.

Get started today with your personalized 55+ search experience!

Homes Sold:

55+ Homes Sold:

Sold for this Community:

Avg. Response Time:

Global - Lead Form - Buyer Only
*55places does not provide or maintain community HOA information.
By requesting more information, you agree that 55places placeholder may call, text, or email you about your inquiry, which may be made with automated means (including recorded voice messages, SMS, or text messages). You understand that your consent is not a prerequisite for buying, selling or renting a property. You may revoke your consent at any time by contacting [email protected]. Message/data rates may apply. You also agree to 55places.com's Privacy Policy and Terms of Use.

Community Key Facts

Fairfield Glade

Age Restrictions

Amenities & Lifestyle

  • See Fairfield Glade amenities
  • See Fairfield Glade clubs, activities, and classes

Homes in Community

  • Total Homes: 5,000
  • Home Types: Single-Family, Attached, Condos

Gated

  • No

Construction

  • Construction Dates: 1970 - Present
  • Builder: Fairfield Homes, Zurich Homes, Wyatt Builders

Similar homes in this community Fairfield Glade

$1,224,500
3 Beds | 5 Baths | 3113 Sq. Ft.
MLS #1319178
Zurich Homes Realty, Inc., Laurie Inda
$492,000
3 Beds | 2 Baths | 1841 Sq. Ft.
MLS #1318941
Blue Beagle Properties, Karen Bertram
$679,000
3 Beds | 2 Baths | 2164 Sq. Ft.
MLS #1318904
Exp Realty, Llc, Andy Peterson

Fairfield Glade Real Estate Agent

Want to learn more about Fairfield Glade?

Here is the community real estate expert who can answer your questions, take you on a tour, and help you find the perfect home.

Get started today with your personalized 55+ search experience!

Want to learn more about Fairfield Glade?

Get in touch with a community real estate expert who can answer your questions, take you on a tour, and help you find the perfect home.

Get started today with your personalized 55+ search experience!

Homes Sold:

55+ Homes Sold:

Sold for this Community:

Avg. Response Time:

Global - Lead Form - Buyer Only
*55places does not provide or maintain community HOA information.
By requesting more information, you agree that 55places placeholder may call, text, or email you about your inquiry, which may be made with automated means (including recorded voice messages, SMS, or text messages). You understand that your consent is not a prerequisite for buying, selling or renting a property. You may revoke your consent at any time by contacting [email protected]. Message/data rates may apply. You also agree to 55places.com's Privacy Policy and Terms of Use.

Agent Image
 

Community Expert

Call Us Call Us
Scroll to Top