• Home type

    Detached

  • Year built

    1999

  • Lot size

    6,595 sq ft

  • Price per sq ft

    $197

  • Taxes

    $6434 / Yr

  • HOA fees

    $275 / Mo

  • Last updated

    Today

  • Views

    5


Questions? Call us: (346) 488-1360


Overview

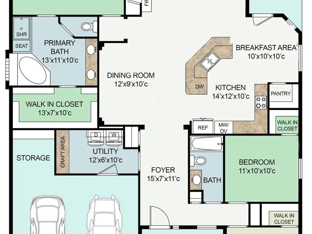
Come see this lovely home in Windsor Hills, an over 55 community that offers everything you might need! Located just across the street from the clubhouse where you will find social activities, fitness center, swimming pool, billiards, library & more! Step inside to a well maintained home, family room with 2 walls of windows offering views to the lush yard & trees, kitchen open to the family, 3 bedrooms, (one could be office/study), primary bedroom on the back, wood floors & recent carpet in the bedrooms. No rear neighbors giving you the ultimate in privacy! NEW ROOF 10/2025! Easy access to I45 for activities including the arts, dining & shopping in Houston & airport for travel. And more shopping, dining, medical & college for further education within a few minutes, and all The Woodlands amenities! Who could ask for more! HOA maintains front yard, exterior painting, fences & gutter cleaning! Low taxes & HOA fee! Come enjoy an easy lifestyle allowing you to do the fun things in life!


Interior

Appliances

  • Double Oven, Dishwasher, Electric Cooktop, Electric Oven, Disposal, Microwave

Bedrooms

  • Bedrooms: 2

Bathrooms

  • Total bathrooms: 2
  • Full baths: 2

Laundry

  • Washer Hookup
  • Electric Dryer Hookup

Cooling

  • Central Air, Electric

Heating

  • Central, Natural Gas

Fireplace

  • 1

Features

  • Breakfast Bar, Crown Molding, Double Vanity, Entrance Foyer, Handicap Access, High Ceilings, Jetted Tub, Kitchen/Family Room Combo, Pots & Pan Drawers, Pantry, Separate Shower, Tub Shower, Makeup/Vanity Space, Walk-In Pantry, Window Treatments, Ceiling Fan(s)

Levels

  • One

Size

  • 1,959 sq ft

Exterior

Private Pool

  • No

Patio & Porch

  • Covered, Deck, Patio

Roof

  • Composition

Garage

  • Attached
  • Garage Spaces: 2
  • Attached
  • Driveway
  • Garage
  • GarageDoorOpener
  • Oversized

Carport

  • None

Year Built

  • 1999

Lot Size

  • 0.15 acres
  • 6,595 sq ft

Waterfront

  • No

Water Source

  • Public

Sewer

  • Public Sewer

Community Info

HOA Fee

  • $275
  • Frequency: Monthly
  • Includes: Clubhouse, Sport Court, Dog Park, Fitness Center, Maintenance Grounds, Meeting/Banquet/Party Room, Party Room, Picnic Area, Playground, Pickleball, Park, Pool, Tennis Court(s), Trail(s)

Taxes

  • Annual amount: $6,434.00
  • Tax year: 2024

Senior Community

  • Yes

Features

  • CommunityPool, MasterPlannedCommunity, Curbs, Golf, Gutters

Location


Listing courtesy of: Michele Flory, Point Real Estate Listing Agent Contact Information: [email protected]

Source: Hart
MLS ID: 14397000

Hart

© 2025 Houston Association of Realtors. All rights reserved. Information deemed reliable but not guaranteed. The data relating to real estate for sale on this website comes in part from the IDX Program of the Houston Association of Realtors. Real estate listings held by brokerage firms other than 55places.com are marked with the Broker Reciprocity logo and detailed information about them includes the name of the listing broker.


Windsor Hills Real Estate Agent

Want to learn more about Windsor Hills?

Here is the community real estate expert who can answer your questions, take you on a tour, and help you find the perfect home.

Get started today with your personalized 55+ search experience!

Want to learn more about Windsor Hills?

Get in touch with a community real estate expert who can answer your questions, take you on a tour, and help you find the perfect home.

Get started today with your personalized 55+ search experience!

Homes Sold:

55+ Homes Sold:

Sold for this Community:

Avg. Response Time:

Global - Lead Form - Buyer Only
*55places does not provide or maintain community HOA information.
By requesting more information, you agree that 55places placeholder may call, text, or email you about your inquiry, which may be made with automated means (including recorded voice messages, SMS, or text messages). You understand that your consent is not a prerequisite for buying, selling or renting a property. You may revoke your consent at any time by contacting [email protected]. Message/data rates may apply. You also agree to 55places.com's Privacy Policy and Terms of Use.

Community Key Facts

Windsor Hills

Age Restrictions

  • 55+

Amenities & Lifestyle

  • See Windsor Hills amenities
  • See Windsor Hills clubs, activities, and classes

Homes in Community

  • Total Homes: 437
  • Home Types: Single-Family

Gated

  • No

Construction

  • Construction Dates: 1999 - 2002
  • Builder: Lennar Homes, Pulte

Similar homes in this community Windsor Hills

$375,000
3 Beds | 2 Baths | 2129 Sq. Ft.
MLS #66660492
Nan And Company Properties, Kim Palomino
$430,000
3 Beds | 3 Baths | 2388 Sq. Ft.
MLS #86622231
Ra Brokers, Roxanne Sarver
$400,000
3 Beds | 2 Baths | 2480 Sq. Ft.
MLS #10213415
Ra Brokers, Roxanne Sarver

Windsor Hills Real Estate Agent

Want to learn more about Windsor Hills?

Here is the community real estate expert who can answer your questions, take you on a tour, and help you find the perfect home.

Get started today with your personalized 55+ search experience!

Want to learn more about Windsor Hills?

Get in touch with a community real estate expert who can answer your questions, take you on a tour, and help you find the perfect home.

Get started today with your personalized 55+ search experience!

Homes Sold:

55+ Homes Sold:

Sold for this Community:

Avg. Response Time:

Global - Lead Form - Buyer Only
*55places does not provide or maintain community HOA information.
By requesting more information, you agree that 55places placeholder may call, text, or email you about your inquiry, which may be made with automated means (including recorded voice messages, SMS, or text messages). You understand that your consent is not a prerequisite for buying, selling or renting a property. You may revoke your consent at any time by contacting [email protected]. Message/data rates may apply. You also agree to 55places.com's Privacy Policy and Terms of Use.

Agent Image
 

Community Expert

Call Us Call Us
Scroll to Top