-
Home type
Single family
-
Year built
2012
-
Lot size
11,326 sq ft
-
Price per sq ft
$145
-
Taxes
$1128 / Yr
-
HOA fees
$218 / Mo
-
Last updated
Today
-
Views
11
Questions? Call us: (470) 802-2038
Overview
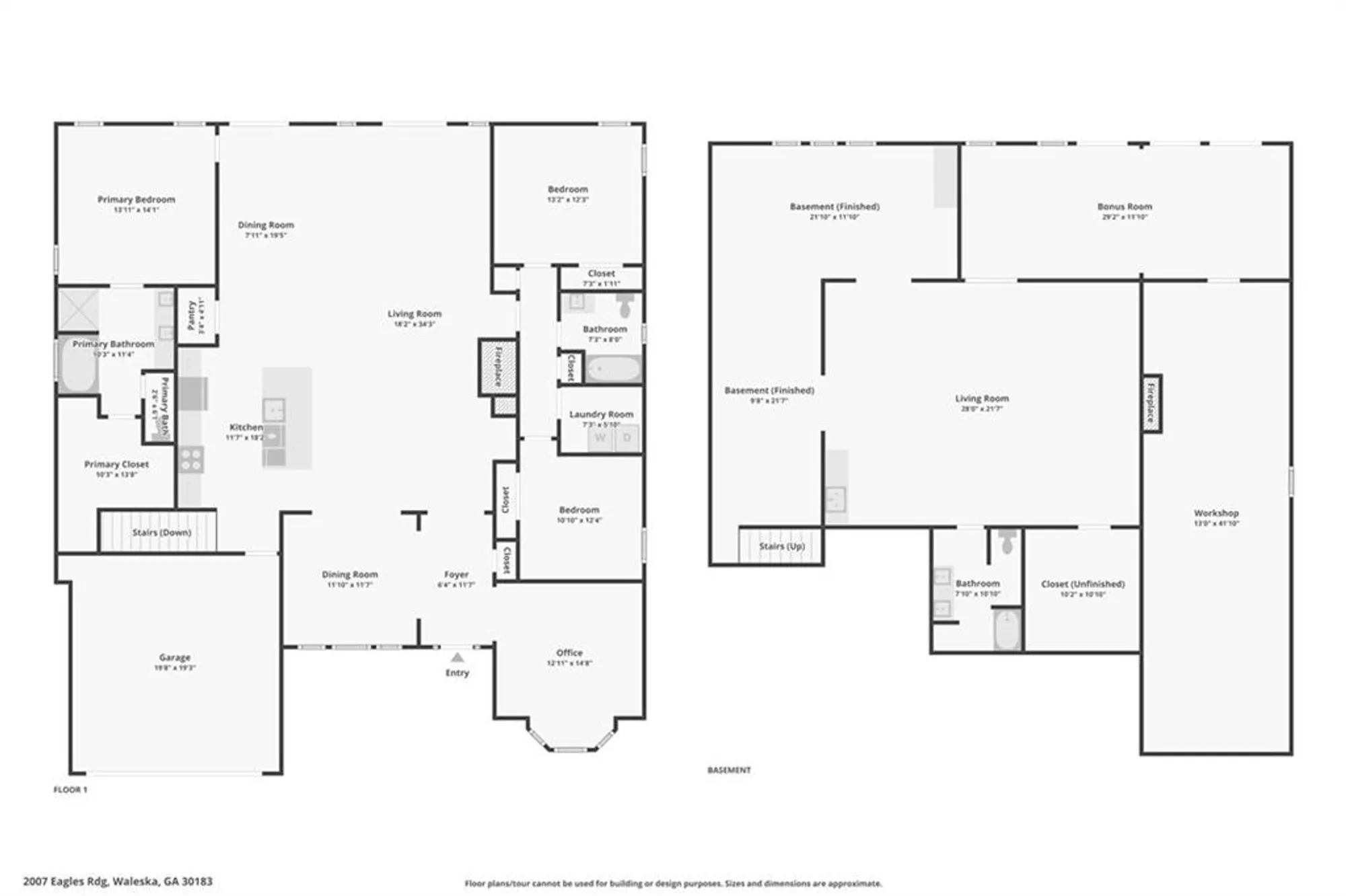
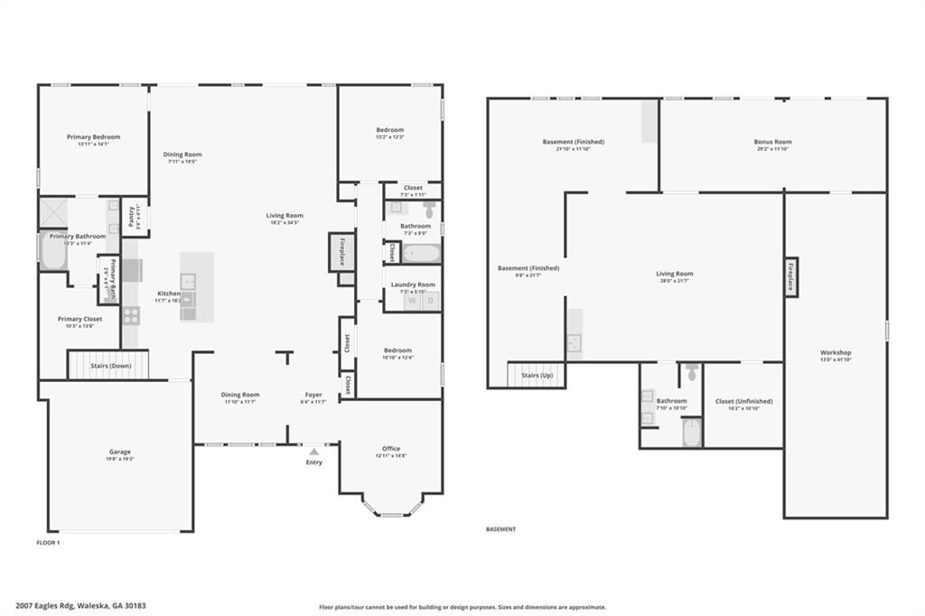
***Golf Course***Finished Basement***2 Large Decks***Gated***Beautiful ranch-style home in the highly sought-after gated Lake Arrowhead community with scenic golf course! This customized open-concept floorplan features a fully finished walkout daylight basement, a main level with a luxurious primary suite, two additional bedrooms, a kitchen with a solid black walnut island, rich hickory hardwood floors, stunning exposed beams, sun-drenched skylights, and upgraded lighting throughout, creating a warm and inviting atmosphere. Sliding glass doors lead to a spacious back deck with a fireplace and stairs to a lower deck, perfect for entertaining. The basement includes a living room with fireplace, wet bar, full bath, a large woodworking shop, and an extra room currently used as a design studio with a murphy bed (convertible to a bedroom) with a covered deck overlooking a fenced backyard. Surrounded by flowering landscaping and mature hardwoods, the home offers access to community amenities including a lake, tennis and pickleball courts, parks, sports courts, scenic hiking trails, and more! This beautiful home can serve as your vacation retreat or retirement haven, where you’re sure to create many cherished memories. Book your tour today!
Interior
Appliances
- Dishwasher, Disposal, Gas Oven, Gas Range, Microwave, Range Hood
Bedrooms
- Bedrooms: 4
Bathrooms
- Total bathrooms: 3
- Full baths: 3
Laundry
- Laundry Room
- Main Level
Cooling
- Ceiling Fan(s), Central Air, Electric
Heating
- Central, Heat Pump
Fireplace
- 3
Features
- Beamed Ceilings, Crown Molding, Tray Ceiling(s), Dual Pane Window(s), Insulated Windows, Basement, Satellite Dish
Levels
- Two
Exterior
Private Pool
- No
Patio & Porch
- Deck
Roof
- Composition
Garage
- Garage Spaces: 2
- Garage
Carport
- None
Year Built
- 2012
Lot Size
- 0.26 acres
- 11,326 sq ft
Waterfront
- No
Water Source
- Public
Sewer
- Public Sewer
Community Info
HOA Fee
- $218
- Frequency: Monthly
Taxes
- Annual amount: $1,128.00
- Tax year: 2024
Senior Community
- No
Features
- Club, Dog Park, Fishing, Gated, Golf, Lake, Trails/Paths, Pickleball, Playground, Pool, Tennis Court(s)
Location
- City: Waleska
- County/Parrish: Cherokee - GA
Listing courtesy of: Kathy Stephenson, Redfin Corporation Listing Agent Contact Information: 770-656-7546
MLS ID: 7678493
Listings identified with the FMLS IDX logo come from FMLS and are held by brokerage firms other than the owner of this website and the listing brokerage is identified in any listing details. Information is deemed reliable but is not guaranteed. If you believe any FMLS listing contains material that infringes your copyrighted work, please click here to review our DMCA policy and learn how to submit a takedown request. © 2025 First Multiple Listing Service, Inc.
Lake Arrowhead Real Estate Agent
Want to learn more about Lake Arrowhead?
Here is the community real estate expert who can answer your questions, take you on a tour, and help you find the perfect home.
Get started today with your personalized 55+ search experience!
Want to learn more about Lake Arrowhead?
Get in touch with a community real estate expert who can answer your questions, take you on a tour, and help you find the perfect home.
Get started today with your personalized 55+ search experience!
Homes Sold:
55+ Homes Sold:
Sold for this Community:
Avg. Response Time:
Community Key Facts
Age Restrictions
- None
Amenities & Lifestyle
- See Lake Arrowhead amenities
- See Lake Arrowhead clubs, activities, and classes
Homes in Community
- Total Homes: 200
- Home Types: Single-Family, Attached
Gated
- Yes
Construction
- Construction Dates: 2009 - Present
- Builder: Majestic Lifestyle Builders
Similar homes in this community
Popular cities in Georgia
The following amenities are available to Lake Arrowhead - Cherokee County, GA residents:
- Golf Course
- Fitness Center
- Outdoor Pool
- Library
- Walking & Biking Trails
- Tennis Courts
- Pickleball Courts
- Basketball Court
- Lakes - Scenic Lakes & Ponds
- R.V./Boat Parking
- Outdoor Patio
- Worship Centers
- Misc.
- Sports Courts
There are plenty of activities available in Lake Arrowhead. Here is a sample of some of the clubs, activities and classes offered here.
- Drive-In Movies
- Golf Tournaments
- Health & Wellness Classes
- Horseback Riding
- Outdoor Concerts
- Wine Tastings




