- 2 beds
- 2 baths
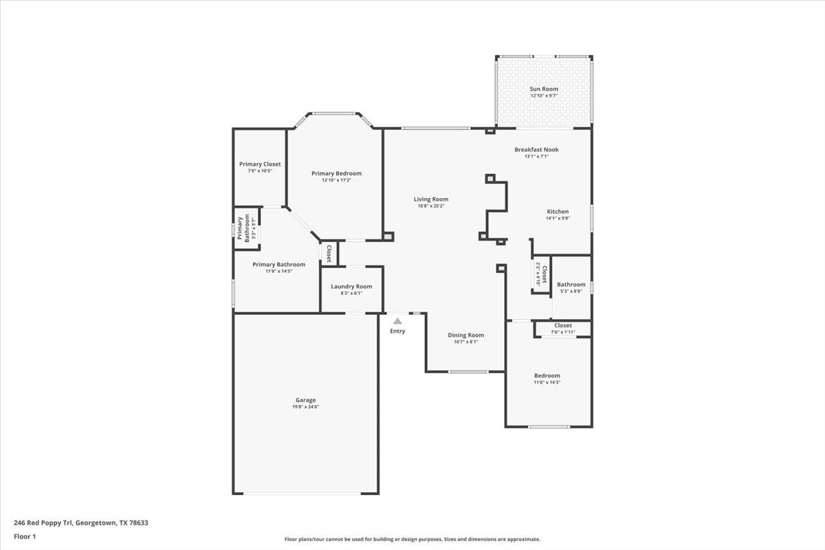
- 1,606 sq ft
246 Red Poppy Trl, Georgetown, TX, 78633
Community: Sun City Texas
-
Home type
Single family
-
Year built
1998
-
Lot size
8,925 sq ft
-
Price per sq ft
$207
-
Taxes
$2133 / Yr
-
HOA fees
$1960 / Annually
-
Last updated
1 weeks ago
-
Views
10
-
Saves
4
Questions? Call us: (737) 252-1669
Overview
Sun City Texas! This Hays floor plan designed for comfortable and easy living. This 2-bedroom, 2-bath residence features wood flooring throughout the main living areas and fresh interior paint completed in 2025, creating a light and inviting atmosphere. The kitchen is designed for both everyday comfort and entertaining, with granite countertops, and updated appliances including a dishwasher (2022) and microwave and oven (2023). A large living space with open views of the backyard, also includes a wine refrigerator and bar area. The primary suite serves as a peaceful retreat with a remodeled walk-in tiled shower and a spacious walk-in closet. Enjoy indoor-outdoor living with a charming tiled front porch, a screened back porch ideal for morning coffee, and a flagstone patio with seat wall—perfect for relaxing or hosting friends. Practical updates include a roof and exterior paint in 2020, water heater in 2023, and garbage disposal in 2025. Set on a landscaped yard and surrounded by all that Sun City has to offer, this home blends comfort, style, and an easygoing lifestyle.
Interior
Appliances
- Built-In Electric Oven, Cooktop, Dishwasher, Electric Cooktop, Disposal, Gas Water Heater, Microwave, Plumbed For Ice Maker, Range Hood, Vented Exhaust Fan
Bedrooms
- Bedrooms: 2
Bathrooms
- Total bathrooms: 2
- Full baths: 2
Laundry
- Laundry Room
- Electric Dryer Hookup
Heating
- Central, Natural Gas
Features
- Ceiling Fan(s), Separate/Formal Dining Room, Double Vanity, Eat-in Kitchen, Granite Counters, Multiple Dining Areas, Walk-In Closet(s)
Levels
- One
Size
- 1,606 sq ft
Exterior
Private Pool
- No
Roof
- Composition,Shingle
Garage
- Garage Spaces: 2
- Attached
- DoorSingle
- Driveway
- GarageFacesFront
- Garage
- GarageDoorOpener
Carport
- None
Year Built
- 1998
Lot Size
- 0.2 acres
- 8,925 sq ft
Waterfront
- No
Water Source
- Public
Sewer
- Public Sewer
Community Info
HOA Information
- Association Fee: $1,960
- Association Fee Frequency: Annually
- Association Fee Includes: Maintenance Common Areas
Taxes
- Annual amount: $2,132.97
- Tax year: 2025
Senior Community
- Yes
Features
- CommonGroundsArea, Clubhouse, ConferenceMeetingRoom, DogPark, FitnessCenter, Fishing, Golf, GameRoom, Library, PackageService, Park, Pool, PlannedSocialActivities, PuttingGreen, Restaurant, Sidewalks, TennisCourts, TrailsPaths, Curbs
Location
- City: Georgetown
- County/Parrish: Williamson
Listing courtesy of: Kara Bell, ERA Brokers Consolidated Listing Agent Contact Information: (512) 868-0403
MLS ID: 2765928
Listings courtesy of Unlock MLS as distributed by MLS GRID. Based on information submitted to the MLS GRID as of Apr 10, 2026, 09:39am PDT. All data is obtained from various sources and may not have been verified by broker or MLS GRID. Supplied Open House Information is subject to change without notice. All information should be independently reviewed and verified for accuracy. Properties may or may not be listed by the office/agent presenting the information. Properties displayed may be listed or sold by various participants in the MLS.
Sun City Texas Real Estate Agent
Want to learn more about Sun City Texas?
Here is the community real estate expert who can answer your questions, take you on a tour, and help you find the perfect home.
Get started today with your personalized 55+ search experience!
Want to learn more about Sun City Texas?
Get in touch with a community real estate expert who can answer your questions, take you on a tour, and help you find the perfect home.
Get started today with your personalized 55+ search experience!
Homes Sold:
55+ Homes Sold:
Sold for this Community:
Avg. Response Time:
Community Key Facts
Age Restrictions
- 55+
Amenities & Lifestyle
- See Sun City Texas amenities
- See Sun City Texas clubs, activities, and classes
Homes in Community
- Total Homes: 9,900
- Home Types: Single-Family, Attached
Gated
- No
Construction
- Construction Dates: 1995 - Present
- Builder: Del Webb
Similar homes in this community
Popular cities in Texas
The following amenities are available to Sun City Texas - Georgetown, TX residents:
- Clubhouse/Amenity Center
- Golf Course
- Restaurant
- Fitness Center
- Indoor Pool
- Outdoor Pool
- Aerobics & Dance Studio
- Indoor Walking Track
- Card Room
- Ceramics Studio
- Arts & Crafts Studio
- Sewing Studio
- Stained Glass Studio
- Woodworking Shop
- Ballroom
- Computers
- Library
- Billiards
- Walking & Biking Trails
- Tennis Courts
- Pickleball Courts
- Bocce Ball Courts
- Shuffleboard Courts
- Horseshoe Pits
- Softball/Baseball Field
- Lakes - Fishing Lakes
- Outdoor Amphitheater
- Gardening Plots
- Parks & Natural Space
- Playground for Grandkids
- Demonstration Kitchen
- Outdoor Patio
- Pet Park
- Picnic Area
- Multipurpose Room
- Misc.
- Golf Shop/Golf Services/Golf Cart Rentals
There are plenty of activities available in Sun City Texas. Here is a sample of some of the clubs, activities and classes offered here.
- Aggies Boosters
- Amateur Radio
- Aviation Club
- Bible Study Group
- Book Club
- Bridge
- California Group
- Catholics Group
- Computer Club
- Cribbage
- Democrats Club
- Dulcimers SIG
- Foreign Language
- Farmers Market
- Follies
- Garden Club
- Gentle Yoga
- German Club
- Hand and Foot
- Hiking Club
- Holiday Parties
- Horticulture Club
- Indiana Club
- Iowa Club
- Kansas Club
- Keep It Off Challenge
- Kiwanis Club
- Language Club
- Line Dance
- Low Impact Workout
- Mountain Dulcimers
- Movie Night
- Nature Club
- Nebraska Club
- Overeaters Anonymous
- Pets Club
- Photography Club
- Pilates
- Pickleball Club
- Poker Club
- Republicans Club
- Rotary Club
- RV Club
- Seminars
- Singers Club
- Slim Down Workout
- Softball Club
- Solos Group
- Sundancers
- Table Tennis Club
- Tennis Club
- Theatre Club
- Twinges N' Hinges
- Visual Arts Club
- Volunteer Work
- Wisconsin Club
- Zumba




