• Home type

    Single family

  • Year built

    1982

  • Lot size

    7,039 sq ft

  • Price per sq ft

    $256

  • Taxes

    $1835 / Yr

  • HOA fees

    $1754 / Annually

  • Last updated

    2 days ago

  • Views

    8

  • Saves

    4


Questions? Call us: (520) 666-6949


Overview

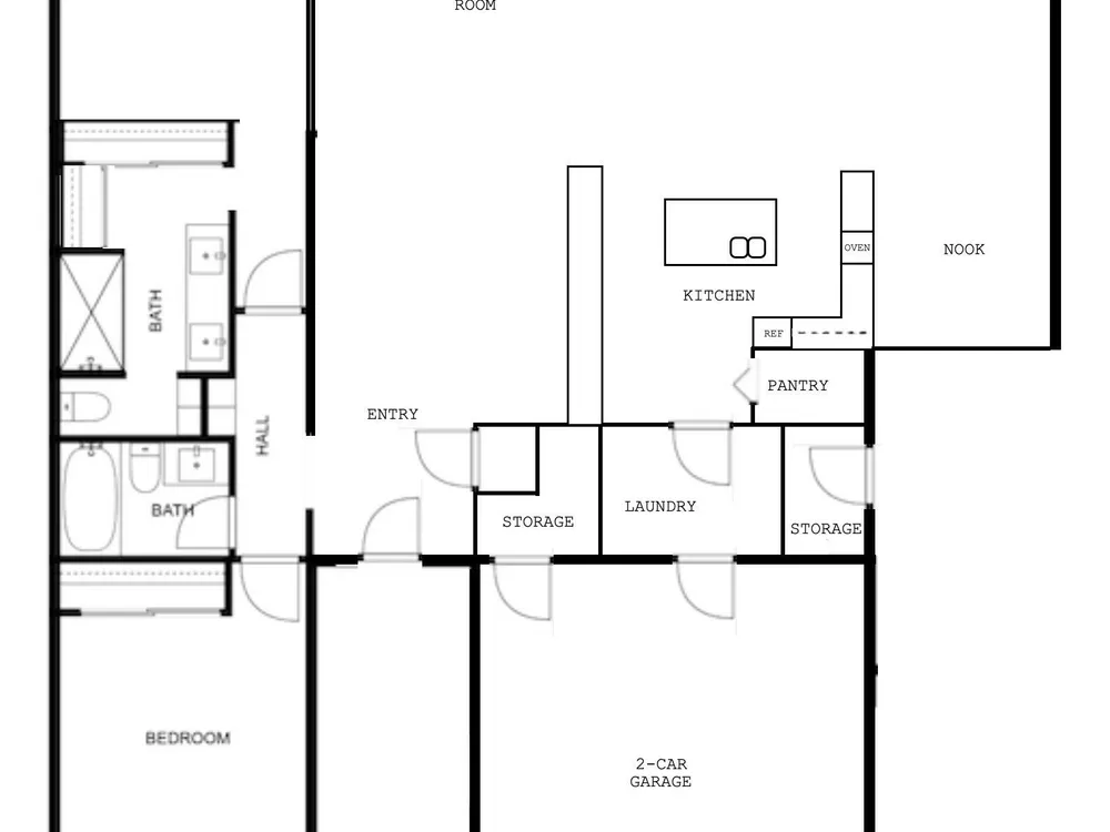
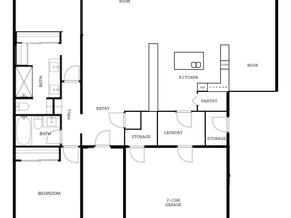
BEAUTIFULLY REMODELED HOME in the Adult Community of Cottonwood featuring OPEN FLOOR PLAN, 2020 ROOF, 2022 AC, LG DIAGONAL TILE FLOORING (EVEN UNDER CARPET) & WOOD LOOK VINYL in Bedrooms! GORGEOUS KITCHEN REMODEL in 2023 w/ QUARTZ COUNTERS, NEW CABINETS, NEWER STAINLESS APPLIANCES & PANTRY. Family Room, Dining Room & OFFICE NOOK wrap around Kitchen & have SAME TILE UNDER CARPET. UPDATED PRIMARY BATH has 2 CLOSETS. 2nd Bedroom by Full Guest Bath. TONS OF STORAGE SPACE in Laundry Room, 2-CAR GARAGE & 2 EXTRA STORAGE CLOSETS. Enjoy the NORTH-FACING, EXTENDED PATIO & NO MAINTENANCE TURF backyard. GOLF CART INCLUDED w/ the right offer! ALL OF THIS PLUS SUN LAKES AMENITIES like: golf, tennis, pickleball, pools/spas, FREE fitness center, fishing lakes, clubs, social activities & restaurants!


Interior

Bedrooms

  • Bedrooms: 2

Bathrooms

  • Total bathrooms: 2

Cooling

  • Central Air, Ceiling Fan(s)

Heating

  • Electric

Fireplace

  • None

Features

  • High Speed Internet, Double Vanity, Breakfast Bar, No Interior Steps, Kitchen Island, Pantry, 3/4 Bath Master Bdrm

Size

  • 1,677 sq ft

Exterior

Private Pool

  • No

Patio & Porch

  • Covered Patio(s), Patio

Roof

  • Composition

Garage

  • Garage Spaces: 2
  • Garage Door Opener
  • Direct Access
  • Attch'd Gar Cabinets
  • Separate Strge Area

Carport

  • None

Year Built

  • 1982

Lot Size

  • 0.16 acres
  • 7,039 sq ft

Waterfront

  • No

Water Source

  • Pvt Water Company

Sewer

  • Private Sewer

Community Info

HOA Fee

  • $1,754
  • Frequency: Annually

Taxes

  • Annual amount: $1,835.00
  • Tax year: 2024

Senior Community

  • No

Features

  • Golf, Pickleball, Lake, Community Spa, Community Spa Htd, Tennis Court(s), Biking/Walking Path, Fitness Center

Location

  • City: Sun Lakes
  • County/Parrish: Maricopa
  • Township: 2S

Listing courtesy of: Charlotte Young, Realty ONE Group Listing Agent Contact Information: 480-802-3857

Source: Armls
MLS ID: 6906502

Armls

Copyright 2025 Arizona Regional Multiple Listing Service, Inc. All rights reserved. The ARMLS logo indicates a property listed by a real estate brokerage other than 55places.com. All information should be verified by the recipient and none is guaranteed as accurate by ARMLS.


Sun Lakes Real Estate Agent

Want to learn more about Sun Lakes?

Here is the community real estate expert who can answer your questions, take you on a tour, and help you find the perfect home.

Get started today with your personalized 55+ search experience!

Want to learn more about Sun Lakes?

Get in touch with a community real estate expert who can answer your questions, take you on a tour, and help you find the perfect home.

Get started today with your personalized 55+ search experience!

Homes Sold:

55+ Homes Sold:

Sold for this Community:

Avg. Response Time:

Global - Lead Form - Buyer Only
*55places does not provide or maintain community HOA information.
By requesting more information, you agree that 55places placeholder may call, text, or email you about your inquiry, which may be made with automated means (including recorded voice messages, SMS, or text messages). You understand that your consent is not a prerequisite for buying, selling or renting a property. You may revoke your consent at any time by contacting [email protected]. Message/data rates may apply. You also agree to 55places.com's Privacy Policy and Terms of Use.

Community Key Facts

Sun Lakes

Age Restrictions

  • 55+

Amenities & Lifestyle

  • See Sun Lakes amenities
  • See Sun Lakes clubs, activities, and classes

Homes in Community

  • Total Homes: 6,683
  • Home Types: Single-Family, Attached, Manufactured

Gated

  • No

Construction

  • Construction Dates: 1972 - 2006
  • Builder: Cavco, Robson Communities, Custom, Palm Harbor, Robson

Similar homes in this community Sun Lakes

$360,000
2 Beds | 2 Baths | 1327 Sq. Ft.
MLS #6933011
Dpr Realty Llc, Melody Oaks
$429,000
2 Beds | 2 Baths | 1781 Sq. Ft.
MLS #6932812
Keller Williams Integrity First, Carey Kolb
$414,000
2 Beds | 2 Baths | 1621 Sq. Ft.
MLS #6932803
Keller Williams Integrity First, Carey Kolb

Sun Lakes Real Estate Agent

Want to learn more about Sun Lakes?

Here is the community real estate expert who can answer your questions, take you on a tour, and help you find the perfect home.

Get started today with your personalized 55+ search experience!

Want to learn more about Sun Lakes?

Get in touch with a community real estate expert who can answer your questions, take you on a tour, and help you find the perfect home.

Get started today with your personalized 55+ search experience!

Homes Sold:

55+ Homes Sold:

Sold for this Community:

Avg. Response Time:

Global - Lead Form - Buyer Only
*55places does not provide or maintain community HOA information.
By requesting more information, you agree that 55places placeholder may call, text, or email you about your inquiry, which may be made with automated means (including recorded voice messages, SMS, or text messages). You understand that your consent is not a prerequisite for buying, selling or renting a property. You may revoke your consent at any time by contacting [email protected]. Message/data rates may apply. You also agree to 55places.com's Privacy Policy and Terms of Use.

Agent Image
 

Community Expert

Call Us Call Us
Scroll to Top