-
Home type
Single family
-
Year built
1964
-
Lot size
3,920 sq ft
-
Price per sq ft
$497
-
HOA fees
$338 / Mo
-
Last updated
3 days ago
-
Views
9
-
Saves
4
Questions? Call us: (805) 902-4244
Overview
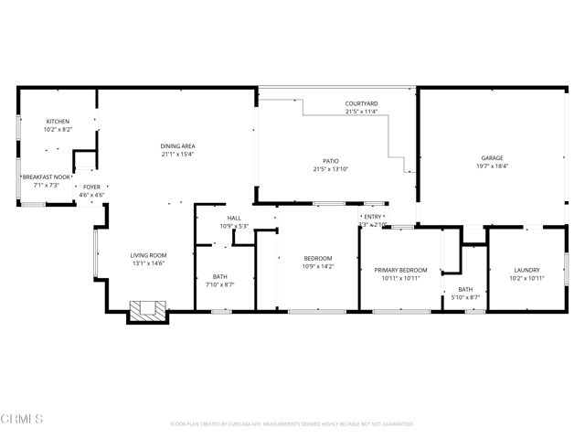
Discover serene 55+ living at Hueneme Bay--where comfort, beauty, and community come together. This picturesque, updated corner abode is highlighted by a stunning coral tree that gracefully spans the front lawn, creating exceptional curb appeal and a tranquil first impression.Inside, the home features thoughtful updates throughout, including newer cabinetry and quartz countertops in both the kitchen and bathrooms. Wide-plank luxury vinyl flooring flows seamlessly through the living spaces, complemented by classic plantation shutters, a new dining room chandelier, and freshly painted front rooms that enhance the home's light and airy feel.Step outside from the main living area to a private patio surrounded by mature landscaping, where a thriving lemon tree and vibrant florals create the perfect setting for relaxing or entertaining. The attached two-car garage has been recently upgraded with a new garage door opener, and the adjacent laundry room offers additional storage space for added convenience.Hueneme Bay is ideally located just five minutes from Hollywood Beach, Hueneme Beach, and Channel Islands Harbor. Residents enjoy an active lifestyle with access to a community clubhouse, swimming pool, and a private 9-hole par-3 golf course. With a strong sense of community and an unbeatable coastal location, Hueneme Bay is truly a hidden gem in Ventura County.
Interior
Appliances
- Dishwasher, Electric Cooktop, Water Heater, Microwave, Electric Oven, Refrigerator
Bedrooms
- Bedrooms: 2
Bathrooms
- Total bathrooms: 2
- Three-quarter baths: 1
- Full baths: 1
Laundry
- Individual Room
- Electric Dryer Hookup
Cooling
- None
Heating
- Electric, Radiant
Fireplace
- 1, Living Room
Features
- Block Walls, Quartz Countertops, Ceiling Fan(s), Living Room, Laundry Facility, Kitchen
Levels
- One
Size
- 1,257 sq ft
Exterior
Private Pool
- Yes
Patio & Porch
- Enclosed, Front Porch
Garage
- Attached
- Garage Spaces: 2
- Garage - Single Door
Carport
- None
Year Built
- 1964
Lot Size
- 0.09 acres
- 3,920 sq ft
Waterfront
- No
Water Source
- Public
Sewer
- Private Sewer,Public Sewer
Community Info
HOA Information
- Association Fee: $338
- Association Fee Frequency: Monthly
- Association Fee Includes: Barbecue, Cable TV, Spa/Hot Tub, Pool, Maintenance Grounds, Earthquake Insurance, Recreation Facilities, Golf Course, Billiard Room
Senior Community
- Yes
Features
- Curbs, Gutters, Street Lights, Storm Drains, Sidewalks, Golf
Location
- City: Port Hueneme
- County/Parrish: Ventura
Listing courtesy of: Eric Swartz, LIV Sotheby's International
MLS ID: V1-33781
Based on information from California Regional Multiple Listing Service, Inc. as of Feb 18, 2026 and/or other sources. All data, including all measurements and calculations of area, is obtained from various sources and has not been, and will not be, verified by broker or MLS. All information should be independently reviewed and verified for accuracy. Properties may or may not be listed by the office/agent presenting the information.
Hueneme Bay Real Estate Agent
Want to learn more about Hueneme Bay?
Here is the community real estate expert who can answer your questions, take you on a tour, and help you find the perfect home.
Get started today with your personalized 55+ search experience!
Want to learn more about Hueneme Bay?
Get in touch with a community real estate expert who can answer your questions, take you on a tour, and help you find the perfect home.
Get started today with your personalized 55+ search experience!
Homes Sold:
55+ Homes Sold:
Sold for this Community:
Avg. Response Time:
Community Key Facts
Age Restrictions
- 55+
Amenities & Lifestyle
- See Hueneme Bay amenities
- See Hueneme Bay clubs, activities, and classes
Homes in Community
- Total Homes: 773
- Home Types: Attached
Gated
- No
Construction
- Construction Dates: 1963 - 1971
Similar homes in this community
Popular cities in California
The following amenities are available to Hueneme Bay - Port Hueneme, CA residents:
- Clubhouse/Amenity Center
- Golf Course
- Outdoor Pool
- Card Room
- Computers
- Library
- Billiards
- Walking & Biking Trails
- Shuffleboard Courts
- Parks & Natural Space
- Demonstration Kitchen
- Outdoor Patio
- Steam Room/Sauna
- Multipurpose Room
- Lounge
- BBQ
There are plenty of activities available in Hueneme Bay. Here is a sample of some of the clubs, activities and classes offered here.
- BBQs
- Billiards
- Card Games
- Golf
- Swimming




