-
Home type
Detached
-
Year built
2004
-
Lot size
7,366 sq ft
-
Price per sq ft
$188
-
Taxes
$5926 / Yr
-
HOA fees
$287 / Mo
-
Last updated
Today
-
Views
13
-
Saves
1
Questions? Call us: (346) 488-1475
Overview
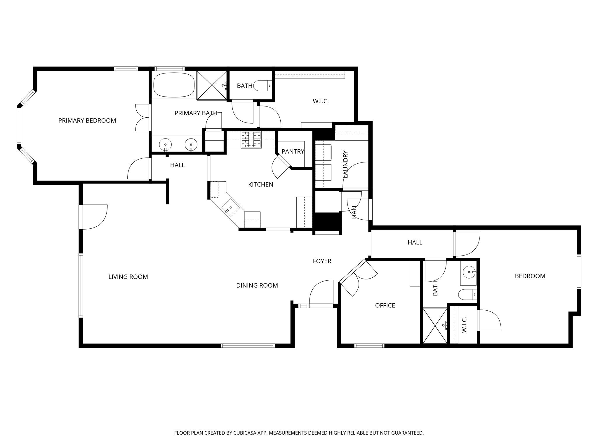
Windsor Lakes is a gated, active adult community with a clubhouse setting where there are a huge variety and abundance of activities to suit the tastes of just about anyone! This is your opportunity to become part of the fun of this bustling aged 55+ neighborhood. The generator-equipped house sits on a small bulb off the main street on an oversized lot with privacy from neighbors. This free-standing home features a large open living/dining area, two bedrooms plus an office. The kitchen provides counter, cabinet and pantry space to satisfy any cooking needs. A covered back patio provides an excellent spot for relaxation and entertaining. This oversized lot is perfect to add a pool or a large garden. The HOA fee covers clubhouse activities, maintenance of all common areas as well as your front yard, periodic mulching and staining of the front door. Sprinklers. Generator newer and Roof (2021). Enjoy Bocce Ball, pool, fitness center and many activities in the club house at Windsor Hills.
Interior
Appliances
- Dishwasher, Electric Oven, Disposal, Microwave
Bedrooms
- Bedrooms: 2
Bathrooms
- Total bathrooms: 2
- Full baths: 2
Cooling
- Central Air, Electric
Heating
- Central, Natural Gas
Features
- Breakfast Bar, Double Vanity, Kitchen/Family Room Combo, Pantry, Window Treatments, Ceiling Fan(s)
Levels
- One
Size
- 1,732 sq ft
Exterior
Private Pool
- No
Patio & Porch
- Covered, Deck, Patio
Roof
- Composition
Garage
- Attached
- Garage Spaces: 2
- Attached
- Garage
- GarageDoorOpener
Carport
- None
Year Built
- 2004
Lot Size
- 0.17 acres
- 7,366 sq ft
Waterfront
- No
Water Source
- Public
Sewer
- Public Sewer
Community Info
HOA Information
- Association Fee: $287
- Association Fee Frequency: Monthly
- Association Fee Includes: Clubhouse, Controlled Access, Picnic Area, Park, Trail(s), Gated, Clubhouse, Common Areas, Recreation Facilities
Taxes
- Annual amount: $5,926.00
- Tax year: 2025
Senior Community
- No
Listing courtesy of: Lara Forssell, Keller Williams Realty The Woodlands Listing Agent Contact Information: [email protected]
MLS ID: 90623758
© 2026 Houston Association of Realtors. All rights reserved. Information deemed reliable but not guaranteed. The data relating to real estate for sale on this website comes in part from the IDX Program of the Houston Association of Realtors. Real estate listings held by brokerage firms other than 55places.com are marked with the Broker Reciprocity logo and detailed information about them includes the name of the listing broker.
Windsor Lakes Real Estate Agent
Want to learn more about Windsor Lakes?
Here is the community real estate expert who can answer your questions, take you on a tour, and help you find the perfect home.
Get started today with your personalized 55+ search experience!
Want to learn more about Windsor Lakes?
Get in touch with a community real estate expert who can answer your questions, take you on a tour, and help you find the perfect home.
Get started today with your personalized 55+ search experience!
Homes Sold:
55+ Homes Sold:
Sold for this Community:
Avg. Response Time:
Community Key Facts
Age Restrictions
- 55+
Amenities & Lifestyle
- See Windsor Lakes amenities
- See Windsor Lakes clubs, activities, and classes
Homes in Community
- Total Homes: 572
- Home Types: Attached, Single-Family
Gated
- Yes
Construction
- Construction Dates: 2003 - 2006
- Builder: Lennar Homes
Similar homes in this community
Popular cities in Texas
The following amenities are available to Windsor Lakes - The Woodlands, TX residents:
- Clubhouse/Amenity Center
- Fitness Center
- Outdoor Pool
- Card Room
- Arts & Crafts Studio
- Ballroom
- Computers
- Library
- Billiards
- Walking & Biking Trails
- Shuffleboard Courts
- Horseshoe Pits
- Parks & Natural Space
- Demonstration Kitchen
- Outdoor Patio
- Multipurpose Room
There are plenty of activities available in Windsor Lakes. Here is a sample of some of the clubs, activities and classes offered here.
- Arts & Crafts
- Body Toning
- Bridge
- Bunko
- Game Day
- Holiday Parties
- Line Dancing
- Mexican Train
- Pinochle
- Poker
- Seniorcise
- Taiji
- Texas Hold 'Em




