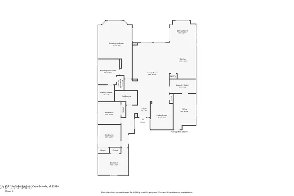
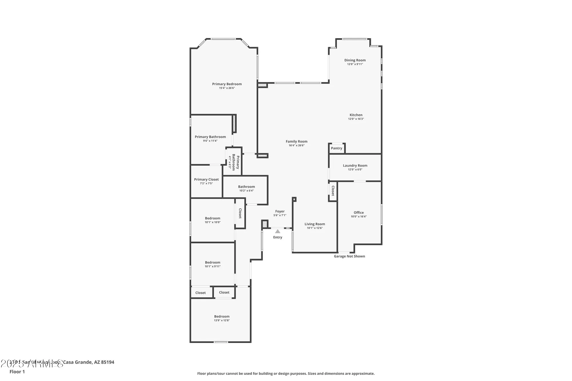
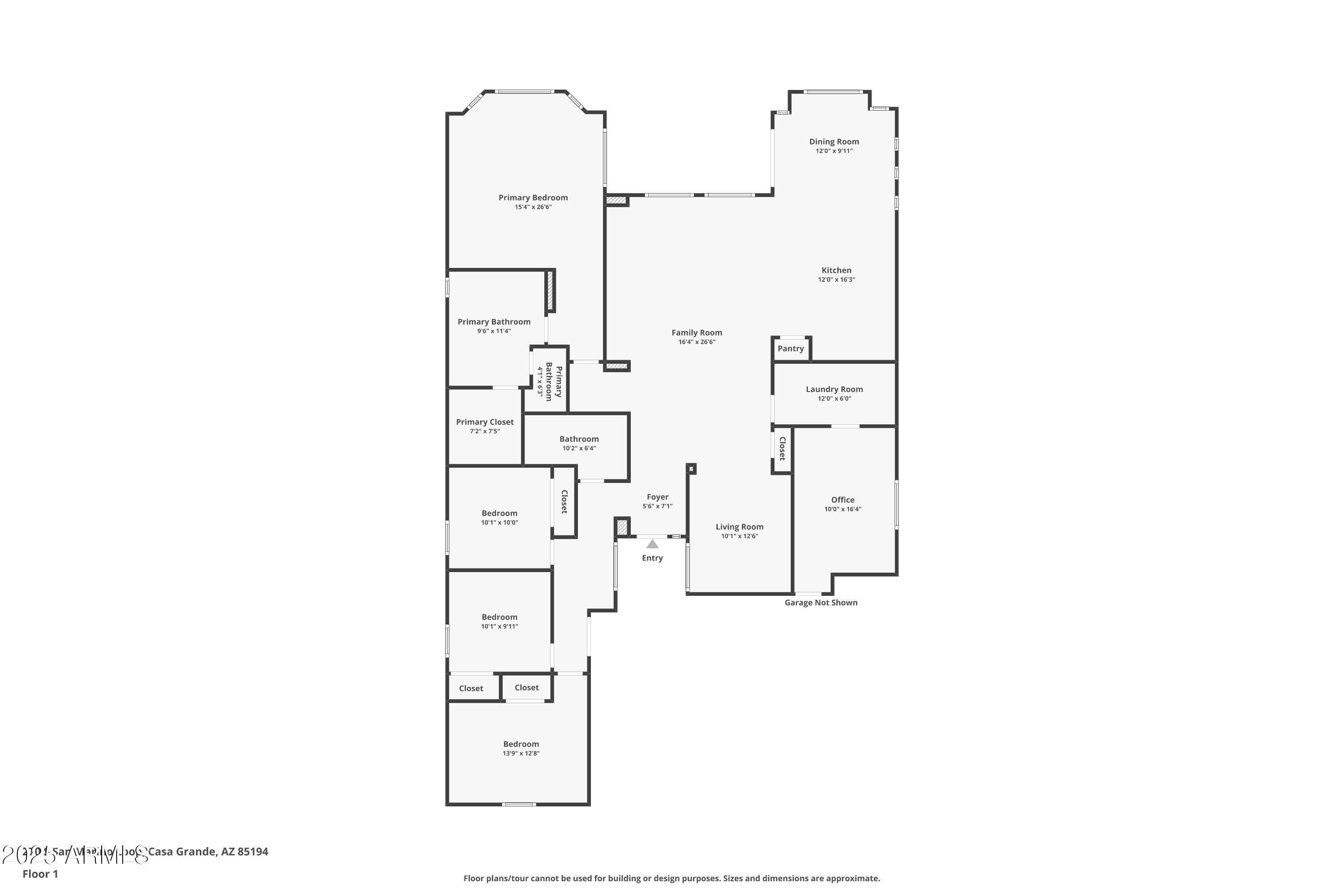
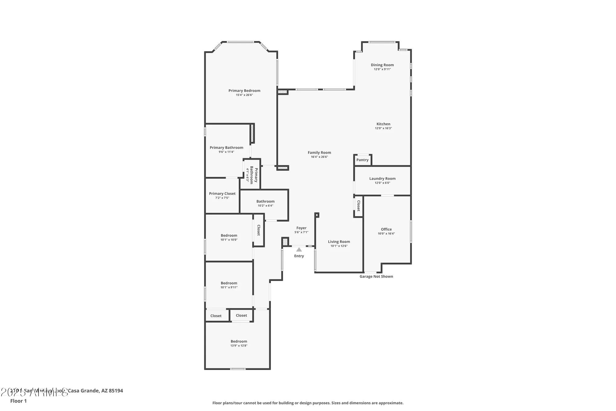
- 4 beds
- 2 baths
- 2,356 sq ft
270 S San Marino Loop, Casa Grande, AZ, 85194
Community: Mission Royale
-
Home type
Single family
-
Year built
2010
-
Lot size
8,537 sq ft
-
Price per sq ft
$189
-
Taxes
$2434 / Yr
-
HOA fees
$142 / Mo
-
Last updated
2 days ago
-
Views
5
-
Saves
7
Questions? Call us: (520) 510-0921
Overview
Resort living in Casa Grande! This 4-bed dream home features a heated pool, water softener and new luxury vinyl plank flooring! Located directly across from a park and a water park for instant fun and relaxation. Inside, enjoy an open-concept living area, a cozy family room, and a chef's kitchen. OWNED SOLAR keeps energy bills low! The backyard is perfect for entertaining with a covered patio, metal pergola, spa/hot tub, gazebo, fire pit and sparkling HEATED pool. Enjoy a like-new pool experience—recently drained, acid-washed, and finished with freshly cleaned tile for a pristine look. This home blends comfort, style, and outdoor living in one beautiful package!
Interior
Appliances
- Dryer, Washer, Water Softener Owned, Refrigerator, Built-in Microwave, Dishwasher, Disposal, Gas Range, Gas Oven
Bedrooms
- Bedrooms: 4
Bathrooms
- Total bathrooms: 2
- Full baths: 2
Laundry
- Inside
Cooling
- Central Air
Heating
- Natural Gas
Features
- Granite Counters, Eat-in Kitchen, Breakfast Bar, 9+ Flat Ceilings, No Interior Steps, Kitchen Island, Pantry, Full Bth Master Bdrm, Separate Shwr & Tub
Size
- 2,356 sq ft
Exterior
Private Pool
- Yes
Patio & Porch
- Covered Patio(s)
Roof
- Tile
Garage
- Garage Spaces: 2
- Attached Garage
Carport
- None
Year Built
- 2010
Lot Size
- 0.2 acres
- 8,537 sq ft
Waterfront
- No
Water Source
- Pvt Water Company
Sewer
- Public Sewer
Community Info
HOA Information
- Association Fee: $142
- Association Fee Frequency: Monthly
- Association Fee Includes: Maintenance Grounds
Taxes
- Annual amount: $2,434.00
- Tax year: 2024
Senior Community
- No
Features
- Pool, Community Spa, Community Spa Htd, Playground, Biking/Walking Path
Location
- City: Casa Grande
- County/Parrish: Pinal
- Township: 06S
Listing courtesy of: Dalton Davis, Real Broker Listing Agent Contact Information: 480-788-8285
MLS ID: 6949190
Copyright 2026 Arizona Regional Multiple Listing Service, Inc. All rights reserved. The ARMLS logo indicates a property listed by a real estate brokerage other than 55places.com. All information should be verified by the recipient and none is guaranteed as accurate by ARMLS.
Mission Royale Real Estate Agent
Want to learn more about Mission Royale?
Here is the community real estate expert who can answer your questions, take you on a tour, and help you find the perfect home.
Get started today with your personalized 55+ search experience!
Want to learn more about Mission Royale?
Get in touch with a community real estate expert who can answer your questions, take you on a tour, and help you find the perfect home.
Get started today with your personalized 55+ search experience!
Homes Sold:
55+ Homes Sold:
Sold for this Community:
Avg. Response Time:
Community Key Facts
Age Restrictions
- 55+
Amenities & Lifestyle
- See Mission Royale amenities
- See Mission Royale clubs, activities, and classes
Homes in Community
- Total Homes: 1,292
- Home Types: Single-Family
Gated
- No
Construction
- Construction Dates: 2003 - Present
- Builder: Meritage Homes, , Starlight Homes, Harrison Brecht, D.R. Horton
Similar homes in this community
Popular cities in Arizona
The following amenities are available to Mission Royale - Casa Grande, AZ residents:
- Clubhouse/Amenity Center
- Golf Course
- Restaurant
- Fitness Center
- Outdoor Pool
- Aerobics & Dance Studio
- Hobby & Game Room
- Ballroom
- Computers
- Library
- Billiards
- Walking & Biking Trails
- Tennis Courts
- Pickleball Courts
- Multipurpose Room
There are plenty of activities available in Mission Royale. Here is a sample of some of the clubs, activities and classes offered here.
- Ballroom Dancing
- Billiard League
- Book Club
- Bunko
- Euchre
- Fishing Group
- Fun & Fit
- Hiking Group
- Java Time
- Ladies PoKeNo
- Line Dancing
- Mahjong
- Movie Night
- Pegs and Jokers
- Pickleball
- Pinochle
- Quilting 101
- RV Club
- Rough Writers
- Silverware Beading Class
- Social Bridge
- Social Tennis
- Table Tennis
- Water Volleyball
- Wisconsin Social Group
- Yoga




