• Home type

    Single family

  • Year built

    2007

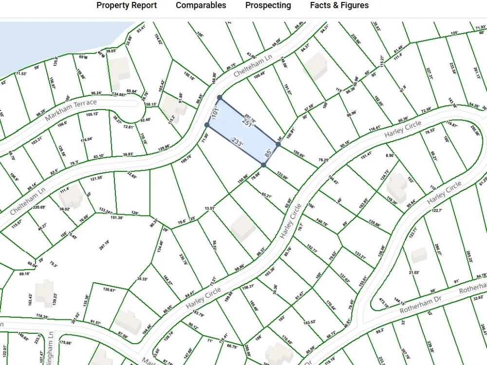
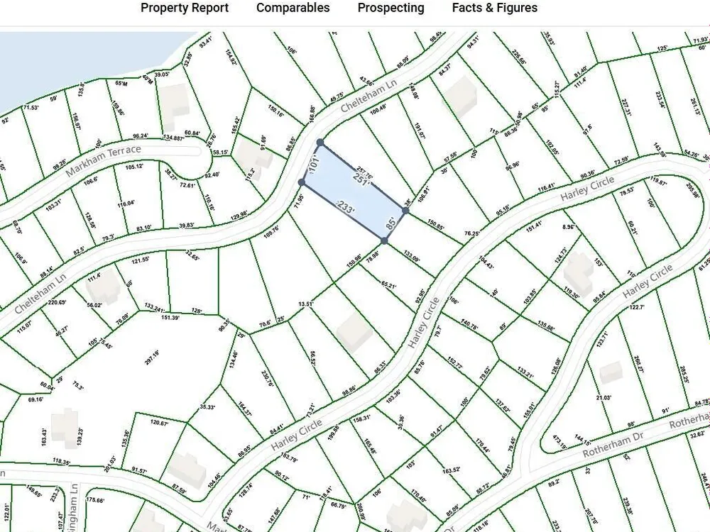
  • Lot size

    25,700 sq ft

  • Price per sq ft

    $207

  • Taxes

    $1065 / Yr

  • HOA fees

    $360 / Qtr

  • Last updated

    1 day ago

  • Views

    41

  • Saves

    1


Questions? Call us: (931) 340-7334


Overview

Jeff Woods Constructed Home in North Hampton Fairfield Glade. 3 bedroom, 2 and a half bath, split bedroom floor plan with bonus room above garage and a 482 sq.ft basement workshop area with a half bath and a utility sink. Custome features throughout. This one is price competitively , shop and compare. Seller requests all buyers to have letter of prequalification or proof of funds before viewing. Offers written on Fridays or weekends to allow a response time of Monday by 5:00pm.


Interior

Appliances

  • Tankless Water Heater, Dishwasher, Disposal, Dryer, Microwave, Range, Refrigerator, Self Cleaning Oven, Washer

Bedrooms

  • Bedrooms: 3

Bathrooms

  • Total bathrooms: 3
  • Half baths: 1
  • Full baths: 2

Cooling

  • Central Cooling

Heating

  • Central, Propane, Electric

Fireplace

  • 1

Features

  • Walk-In Closet(s), Cathedral Ceiling(s), Kitchen Island, Dry Bar, Pantry

Exterior

Private Pool

  • No

Patio & Porch

  • Porch - Covered

Garage

  • Attached
  • Garage Spaces: 2
  • Attached

Carport

  • None

Year Built

  • 2007

Lot Size

  • 0.59 acres
  • 25,700 sq ft

Waterfront

  • No

Water Source

  • Public

Sewer

  • Public Sewer

Community Info

HOA Fee

  • $360
  • Frequency: Quarterly
  • Includes: Golf Course

Taxes

  • Annual amount: $1,064.91
  • Tax year:

Senior Community

  • No

Location

  • City: Crossville
  • County/Parrish: Cumberland County - 34

Listing courtesy of: Wade W. Stover, CENTURY 21 Realty Group, LLC

Source: Kaarmls
MLS ID: 1317487

Kaarmls

IDX information is provided exclusively for consumers' personal, non-commercial use, that it may not be used for any purpose other than to identify prospective properties consumers may be interested in purchasing. Data is deemed reliable but is not guaranteed accurate by the MLS.


Fairfield Glade Real Estate Agent

Want to learn more about Fairfield Glade?

Here is the community real estate expert who can answer your questions, take you on a tour, and help you find the perfect home.

Get started today with your personalized 55+ search experience!

Want to learn more about Fairfield Glade?

Get in touch with a community real estate expert who can answer your questions, take you on a tour, and help you find the perfect home.

Get started today with your personalized 55+ search experience!

Homes Sold:

55+ Homes Sold:

Sold for this Community:

Avg. Response Time:

Global - Lead Form - Buyer Only
*55places does not provide or maintain community HOA information.
By requesting more information, you agree that 55places placeholder may call, text, or email you about your inquiry, which may be made with automated means (including recorded voice messages, SMS, or text messages). You understand that your consent is not a prerequisite for buying, selling or renting a property. You may revoke your consent at any time by contacting [email protected]. Message/data rates may apply. You also agree to 55places.com's Privacy Policy and Terms of Use.

Community Key Facts

Fairfield Glade

Age Restrictions

Amenities & Lifestyle

  • See Fairfield Glade amenities
  • See Fairfield Glade clubs, activities, and classes

Homes in Community

  • Total Homes: 5,000
  • Home Types: Single-Family, Attached, Condos

Gated

  • No

Construction

  • Construction Dates: 1970 - Present
  • Builder: Fairfield Homes, Zurich Homes, Wyatt Builders

Similar homes in this community Fairfield Glade

$411,000
3 Beds | 2 Baths | 1896 Sq. Ft.
MLS #1317594
Highlands Elite Real Estate, Kim Smith
$349,500
2 Beds | 2 Baths | 1621 Sq. Ft.
MLS #1317548
Glade Realty, Sarah Doran
$657,400
2 Beds | 3 Baths | 2044 Sq. Ft.
MLS #1317538
Zurich Homes Realty, Inc., Laurie Inda

Fairfield Glade Real Estate Agent

Want to learn more about Fairfield Glade?

Here is the community real estate expert who can answer your questions, take you on a tour, and help you find the perfect home.

Get started today with your personalized 55+ search experience!

Want to learn more about Fairfield Glade?

Get in touch with a community real estate expert who can answer your questions, take you on a tour, and help you find the perfect home.

Get started today with your personalized 55+ search experience!

Homes Sold:

55+ Homes Sold:

Sold for this Community:

Avg. Response Time:

Global - Lead Form - Buyer Only
*55places does not provide or maintain community HOA information.
By requesting more information, you agree that 55places placeholder may call, text, or email you about your inquiry, which may be made with automated means (including recorded voice messages, SMS, or text messages). You understand that your consent is not a prerequisite for buying, selling or renting a property. You may revoke your consent at any time by contacting [email protected]. Message/data rates may apply. You also agree to 55places.com's Privacy Policy and Terms of Use.

Agent Image
 

Community Expert

Call Us Call Us
Scroll to Top