- 1 bed
- 1 bath
- 530 sq ft
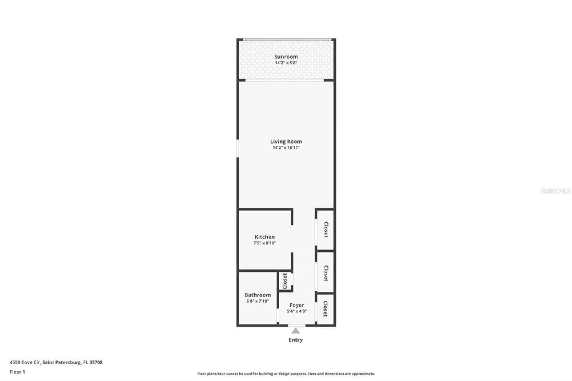
4550 Cove Cir Apt 305, St Petersburg, FL, 33708
Community: Sea Towers
-
Home type
Condominium
-
Year built
1973
-
Lot size
121,200 sq ft
-
Price per sq ft
$311
-
Taxes
$2117 / Yr
-
Last updated
1 day ago
-
Views
5
Questions? Call us: (727) 592-5250
Overview
Waterfront Living at Its Best! Welcome to your slice of paradise at Washington Towers—a vibrant, 55+ waterfront community in St. Petersburg. This beautifully maintained 1-bedroom, 1-bath condo offers stunning Intracoastal and sunset views from your private balcony. Inside, you’ll find an open, light-filled floor plan, updated flooring, and a spacious living area perfect for relaxing or entertaining. The kitchen features ample cabinet space and modern touches throughout. Enjoy resort-style amenities including two heated pools, tennis courts, a fitness center, walking trails, a fishing pier, shuffleboard, and a full social calendar. With 24-hour security and a convenient location just minutes from Madeira Beach, shopping, dining, and entertainment, this is the ultimate Florida lifestyle. Whether you’re looking for a seasonal retreat or year-round residence, this condo is move-in ready and waiting for you!
Interior
Appliances
- Microwave, Range, Refrigerator
Bedrooms
- Bedrooms: 1
Bathrooms
- Total bathrooms: 1
- Full baths: 1
Laundry
- Other
Cooling
- Central Air
Heating
- Central, Electric
Fireplace
- None
Features
- Ceiling Fan(s), Other
Levels
- One
Size
- 530 sq ft
Exterior
Private Pool
- No
Roof
- Shingle
Garage
- None
Carport
- None
Year Built
- 1973
Lot Size
- 2.78 acres
- 121,200 sq ft
Waterfront
- No
Water Source
- Public
Sewer
- Public Sewer
Community Info
Taxes
- Annual amount: $2,117.43
- Tax year: 2024
Senior Community
- No
Features
- Association Recreation - Owned, Buyer Approval Required, Clubhouse, Community Mailbox, Deed Restrictions, Fitness Center, Gated, Guarded Entrance, No Truck/RV/Motorcycle Parking, Pool, Sidewalks, Tennis Court(s)
Location
- City: St Petersburg
- County/Parrish: Pinellas
- Township: 31
Listing courtesy of: Hector Contreras, WEICHERT REALTORS EXCLUSIVE PROPERTIES, 813-426-2669
MLS ID: TB8443715
Listings courtesy of Stellar MLS as distributed by MLS GRID. Based on information submitted to the MLS GRID as of Dec 19, 2025, 10:08pm PST. All data is obtained from various sources and may not have been verified by broker or MLS GRID. Supplied Open House Information is subject to change without notice. All information should be independently reviewed and verified for accuracy. Properties may or may not be listed by the office/agent presenting the information. Properties displayed may be listed or sold by various participants in the MLS.
Sea Towers Real Estate Agent
Want to learn more about Sea Towers?
Here is the community real estate expert who can answer your questions, take you on a tour, and help you find the perfect home.
Get started today with your personalized 55+ search experience!
Want to learn more about Sea Towers?
Get in touch with a community real estate expert who can answer your questions, take you on a tour, and help you find the perfect home.
Get started today with your personalized 55+ search experience!
Homes Sold:
55+ Homes Sold:
Sold for this Community:
Avg. Response Time:
Community Key Facts
Age Restrictions
- 55+
Amenities & Lifestyle
- See Sea Towers amenities
- See Sea Towers clubs, activities, and classes
Homes in Community
- Total Homes: 800
- Home Types: Condos
Gated
- Yes
Construction
- Construction Dates: 1969 - 1973
- Builder: Cheezem Development Corporation
Similar homes in this community
Popular cities in Florida
The following amenities are available to Sea Towers - St. Petersburg, FL residents:
- Clubhouse/Amenity Center
- Fitness Center
- Outdoor Pool
- Hobby & Game Room
- Card Room
- Ballroom
- Library
- Billiards
- Walking & Biking Trails
- Tennis Courts
- Shuffleboard Courts
- Lawn Bowling
- Lakes - Scenic Lakes & Ponds
- R.V./Boat Parking
- Demonstration Kitchen
- Outdoor Patio
- Steam Room/Sauna
- Golf Practice Facilities/Putting Green
- Picnic Area
- Multipurpose Room
- Boat Launch
There are plenty of activities available in Sea Towers. Here is a sample of some of the clubs, activities and classes offered here.
- Aerobics
- Billiards
- Bingo
- Bridge
- Boating
- Book Club
- Cards
- Cruises
- Dances
- Darts
- Day Trips
- Dinner Shows
- Exercise Groups
- Fishing
- Game Night
- Hand & Foot
- Lawn Bowling
- Mah Jongg
- Meditation
- Mexican Train
- Picnics
- Pinochle
- Poker
- Potlucks
- Putting
- Shuffleboard
- Stage Shows
- Swimming
- Tennis
- Walking Group
- Water Aerobics
- Yoga


