• Home type

    Single family

  • Year built

    1979

  • Lot size

    13,312 sq ft

  • Price per sq ft

    $240

  • Taxes

    $7896 / Yr

  • HOA fees

    $110 / Annually

  • Last updated

    1 day ago

  • Views

    6

  • Saves

    1


Questions? Call us: (941) 271-0503


Overview

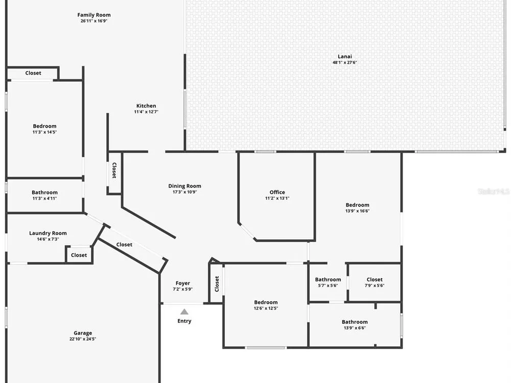
One or more photo(s) has been virtually staged. 3 bedroom, 2 bath, spacious pool home (with cage) in the Palm Aire community. This 2,226 square foot home also has a separate dining room and an office/ den. Large 2 car garage. Covered area adjacent to pool provides a pleasant area to relax and entertain. Extra large lot with a fenced-in backyard is ideal for family and games. New roofing membrane and reroofed in 2022. The interior was painted in 2025.The pool and cage were installed in 2018. Halfway between I-75 and Sarasota/Bradenton airport. Close to the Town Center Mall and Lakewood Ranch. There are several golf courses nearby. Downtown Sarasota, with many cultural venues, is about 8 miles away. Siesta Key Beach and Lido Key beach are within easy driving distance.


Interior

Appliances

  • Dishwasher, Dryer, Electric Water Heater, Microwave, Range, Range Hood, Refrigerator, Washer

Bedrooms

  • Bedrooms: 3

Bathrooms

  • Total bathrooms: 2
  • Full baths: 2

Laundry

  • Inside
  • Laundry Room

Cooling

  • Central Air, Attic Fan

Heating

  • Central, Electric

Fireplace

  • None

Features

  • Ceiling Fan(s), Crown Molding, High Ceilings, Open Floorplan, Thermostat, Walk-In Closet(s)

Levels

  • One

Size

  • 2,226 sq ft

Exterior

Private Pool

  • Yes

Patio & Porch

  • Covered, Enclosed, Screened

Roof

  • Membrane,Shingle

Garage

  • Attached
  • Garage Spaces: 2

Carport

  • None

Year Built

  • 1979

Lot Size

  • 0.31 acres
  • 13,312 sq ft

Waterfront

  • No

Water Source

  • Public

Sewer

  • Public Sewer

Community Info

HOA Fee

  • $110
  • Frequency: Annually

Taxes

  • Annual amount: $7,896.34
  • Tax year: 2024

Senior Community

  • No

Features

  • Street Lights

Location

  • City: Sarasota
  • County/Parrish: Manatee
  • Township: 35S

Listing courtesy of: Bill Taft, Jr, GALLERY PROPERTIES INTERNATION, 941-957-0833

Source: Stellar
MLS ID: A4656473

Stellar

Listings courtesy of Stellar MLS as distributed by MLS GRID. Based on information submitted to the MLS GRID as of Oct 10, 2025, 07:33am PDT. All data is obtained from various sources and may not have been verified by broker or MLS GRID. Supplied Open House Information is subject to change without notice. All information should be independently reviewed and verified for accuracy. Properties may or may not be listed by the office/agent presenting the information. Properties displayed may be listed or sold by various participants in the MLS.


Palm Aire Real Estate Agent

Want to learn more about Palm Aire?

Here is the community real estate expert who can answer your questions, take you on a tour, and help you find the perfect home.

Get started today with your personalized 55+ search experience!

Want to learn more about Palm Aire?

Get in touch with a community real estate expert who can answer your questions, take you on a tour, and help you find the perfect home.

Get started today with your personalized 55+ search experience!

Homes Sold:

55+ Homes Sold:

Sold for this Community:

Avg. Response Time:

Global - Lead Form - Buyer Only
*55places does not provide or maintain community HOA information.
By requesting more information, you agree that 55places placeholder may call, text, or email you about your inquiry, which may be made with automated means (including recorded voice messages, SMS, or text messages). You understand that your consent is not a prerequisite for buying, selling or renting a property. You may revoke your consent at any time by contacting [email protected]. Message/data rates may apply. You also agree to 55places.com's Privacy Policy and Terms of Use.

Community Key Facts

Palm Aire

Age Restrictions

  • None

Amenities & Lifestyle

  • See Palm Aire amenities
  • See Palm Aire clubs, activities, and classes

Homes in Community

  • Total Homes: 3,752
  • Home Types: Single-Family, Attached, Condos

Gated

  • No

Construction

  • Construction Dates: 1963 - 2003

Similar homes in this community Palm Aire

$429,900
2 Beds | 2 Baths | 2012 Sq. Ft.
MLS #A4666779
Premier Sotheby's International Realty, Marci Carter
$569,000
3 Beds | 2 Baths | 2023 Sq. Ft.
MLS #TB8433939
Epique Realty, Inc., Karolina Taylor
$418,900
3 Beds | 2 Baths | 1813 Sq. Ft.
MLS #A4666761
Berkshire Hathaway Homeservice, Kirby Wood

Palm Aire Real Estate Agent

Want to learn more about Palm Aire?

Here is the community real estate expert who can answer your questions, take you on a tour, and help you find the perfect home.

Get started today with your personalized 55+ search experience!

Want to learn more about Palm Aire?

Get in touch with a community real estate expert who can answer your questions, take you on a tour, and help you find the perfect home.

Get started today with your personalized 55+ search experience!

Homes Sold:

55+ Homes Sold:

Sold for this Community:

Avg. Response Time:

Global - Lead Form - Buyer Only
*55places does not provide or maintain community HOA information.
By requesting more information, you agree that 55places placeholder may call, text, or email you about your inquiry, which may be made with automated means (including recorded voice messages, SMS, or text messages). You understand that your consent is not a prerequisite for buying, selling or renting a property. You may revoke your consent at any time by contacting [email protected]. Message/data rates may apply. You also agree to 55places.com's Privacy Policy and Terms of Use.

Agent Image
 

Community Expert

Call Us Call Us
Scroll to Top