- 4 beds
- 3 baths
- 2,897 sq ft
5412 Royal Poinciana Way, North Port, FL, 34291
Community: Heron Creek
-
Home type
Single family
-
Year built
2007
-
Lot size
11,227 sq ft
-
Price per sq ft
$231
-
Taxes
$5000 / Yr
-
HOA fees
$1249 / Qtr
-
Last updated
3 days ago
-
Views
3
Questions? Call us: (941) 732-1985
Overview
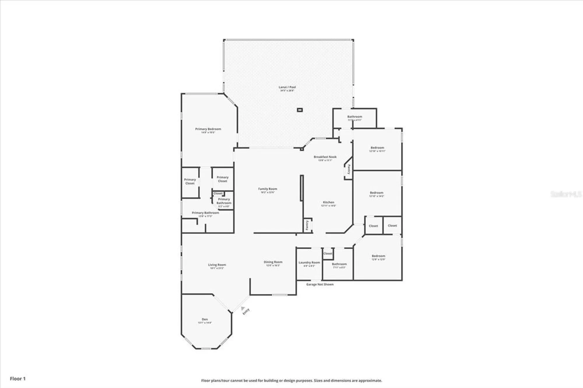
Under contract-accepting backup offers. HERON CREEK GOLF & CC Extremely **MOTIVATED SELLER** ready to downsize! Welcome to “Creekside Haven,” a casually elegant 4-BED, 3-BATH /POOL home with a 3-CAR GARAGE, perfectly situated on a peaceful quarter-acre preserve homesite with Peek-A-boo views of Creek #5 . Surrounded by lush tropical foliage framed in decorative terracotta curbing, this home invites you in with a pavered drive and walkway that lead to grand double etched-glass doors. Every detail whispers serenity and sophistication—a true sanctuary in paradise. Inside, graceful tray ceilings, curved architectural arches, & abundant natural light highlight the home’s open, airy design. Easy-care ceramic tile flooring flows throughout the main living areas, complemented by rich engineered hardwood in the bedrooms and office. Lovely custom window treatments and classic plantation shutters adorn the windows, adding timeless charm. The updated kitchen is a chef’s delight, featuring stunning granite countertops, solid wood cabinetry, SS appliances inc NATURAL GAS cooktop, & a generous center island that offers both workspace & gathering space. A cozy dinette overlooks the pool, while a formal dining room at the front of the home is perfect for hosting special occasions. The home flows seamlessly from room to room, beginning with a bright & inviting gathering space that opens to the great room, where cascading sliders lead to the lanai and your private pool oasis framed by tranquil preserve views. A private office or den just off the gathering room provides a peaceful place to work, read, or relax. The primary suite enjoys direct access to the pool and a spa-inspired ensuite bath with a garden tub, walk-in shower, and dual vanities. Guests will appreciate a two-bedroom suite with adjacent full bath, while the fourth bedroom and convenient pool bath offer flexible options for additional guests, hobbies, or crafts. The home’s soothing neutral palette, crown molding, and many unique architectural features lend a sense of casual refinement, while thoughtful updates enhance both comfort and peace of mind. Recent improvements include a NEW TILE ROOF (2023), LANAI RESCREEN (2023), NEW garbage disposal, microwave & dishwasher, updated walk-in shower in the guest bath, enhanced landscape lighting and curbing, and a NEW GAS POOL HEATER (coming soon). A WHOLE-HOUSE GAS GENERATOR that powers both the home & the pool, while REMOTE HURRICANE SCREEN at the front door and rear lanai and ACCORDION on remaining windows ensure the home is storm-ready. Creekside Haven is truly a casually elegant retreat—beautifully maintained, thoughtfully updated, and perfectly positioned within one of Southwest Florida’s most desirable gated golf and country club communities—Heron Creek Golf & Country Club, where nothing compares. Heron Creek offers exceptional amenities including a 21,000 sq ft clubhouse, 27 holes of Championship golf Arthur Hills design, resort style pool & spa, a robust social activity calendar, fitness center, Tennis courts & formal & casual dining options! Club Membership is required with 3 membership levels offered beginning at $276/month *NO CDD FEES * LOW HOA FEES include lawn care, trimmings, mulching, irrigation, FIBER OPTIC/ TV/ HIGH-SPEED INTERNET & Gated entry, conveniently located w/easy access to I-75 & US-41, Cocoa Plum Shopping, Myakkahatchee Creek trails, WELLEN PARK, Braves Stadium, COSTCO & will be just 3 miles to the new 557 Million SMH Hospital Coming to I-75 and Sumter Blvd!
Interior
Appliances
- Dishwasher, Disposal, Dryer, Electric Water Heater, Microwave, Range, Refrigerator, Washer
Bedrooms
- Bedrooms: 4
Bathrooms
- Total bathrooms: 3
- Full baths: 3
Laundry
- Gas Dryer Hookup
- Inside
- Laundry Room
- Washer Hookup
Cooling
- Central Air
Heating
- Central, Electric
Fireplace
- None
Features
- Ceiling Fan(s), Eat-in Kitchen, High Ceilings, Kitchen/Family Room Combo, Open Floorplan, Main Level Primary, Solid-Wood Cabinets, Split Bedrooms, Stone Counters, Tray Ceiling(s), Walk-In Closet(s), Window Treatments
Levels
- One
Size
- 2,897 sq ft
Exterior
Private Pool
- Yes
Patio & Porch
- Covered, Patio, Screened
Roof
- Concrete,Tile
Garage
- Attached
- Garage Spaces: 3
Carport
- None
Year Built
- 2007
Lot Size
- 0.26 acres
- 11,227 sq ft
Waterfront
- No
Water Source
- Public
Sewer
- Public Sewer
Community Info
HOA Fee
- $1,249
- Frequency: Quarterly
Taxes
- Annual amount: $5,000.00
- Tax year: 2024
Senior Community
- No
Features
- Clubhouse, Deed Restrictions, Fitness Center, Gated, Guarded Entrance, Golf Carts Permitted, Irrigation-Reclaimed Water, Pool, Restaurant, Sidewalks, Tennis Court(s)
Location
- City: North Port
- County/Parrish: Sarasota
- Township: 39
Listing courtesy of: Louise Clapp, POINTE OF PALMS REAL ESTATE, 941-716-2339
MLS ID: N6140995
Listings courtesy of Stellar MLS as distributed by MLS GRID. Based on information submitted to the MLS GRID as of Nov 15, 2025, 05:36pm PST. All data is obtained from various sources and may not have been verified by broker or MLS GRID. Supplied Open House Information is subject to change without notice. All information should be independently reviewed and verified for accuracy. Properties may or may not be listed by the office/agent presenting the information. Properties displayed may be listed or sold by various participants in the MLS.
Heron Creek Real Estate Agent
Want to learn more about Heron Creek?
Here is the community real estate expert who can answer your questions, take you on a tour, and help you find the perfect home.
Get started today with your personalized 55+ search experience!
Want to learn more about Heron Creek?
Get in touch with a community real estate expert who can answer your questions, take you on a tour, and help you find the perfect home.
Get started today with your personalized 55+ search experience!
Homes Sold:
55+ Homes Sold:
Sold for this Community:
Avg. Response Time:
Community Key Facts
Age Restrictions
- None
Amenities & Lifestyle
- See Heron Creek amenities
- See Heron Creek clubs, activities, and classes
Homes in Community
- Total Homes: 830
- Home Types: Attached, Single-Family
Gated
- Yes
Construction
- Construction Dates: 2000 - 2011
- Builder: Multiple Builders, Ryland
Similar homes in this community
Popular cities in Florida
The following amenities are available to Heron Creek - North Port, FL residents:
- Clubhouse/Amenity Center
- Golf Course
- Restaurant
- Fitness Center
- Outdoor Pool
- Ballroom
- Walking & Biking Trails
- Tennis Courts
- Demonstration Kitchen
- Outdoor Patio
- Steam Room/Sauna
- Golf Practice Facilities/Putting Green
- On-site Retail
- Multipurpose Room
- Locker Rooms
There are plenty of activities available in Heron Creek. Here is a sample of some of the clubs, activities and classes offered here.
- Arts & Crafts
- Bingo
- Book Club
- Bridge
- Bunco
- Dancing
- Dinner Shows
- Dominos
- Euchre
- Golf
- Karaoke
- Live Music
- Mah Jongg
- Men's Tennis
- Needle Workers
- Poker
- Sew What
- Tennis
- Trivia Night
- Water Aerobics
- Women's tennis
- Yoga
- Zumba




