- 3 beds
- 2 baths
- 1,945 sq ft
5529 Cantucci St, Nokomis, FL, 34275
Community: Bellacina by Casey Key
- 
				
				Home typeSingle family 
- 
				
				Year built2018 
- 
				
				Lot size6,314 sq ft 
- 
				
				Price per sq ft$360 
- 
				
				Taxes$4256 / Yr 
- 
				
				HOA fees$1184 / Qtr 
- 
				
				Last updatedToday 
- 
				
				Views11 
Questions? Call us: (941) 263-0325
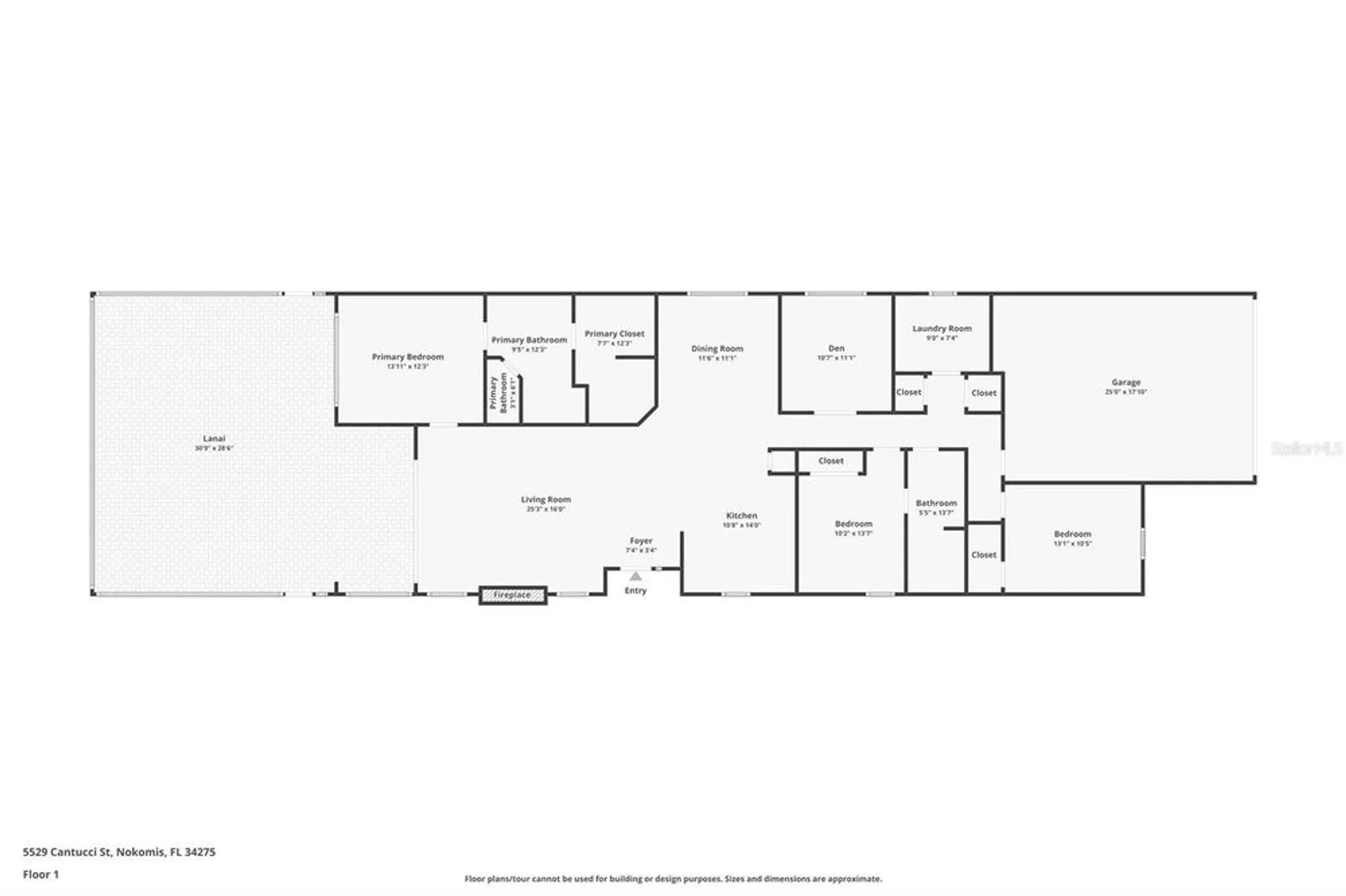
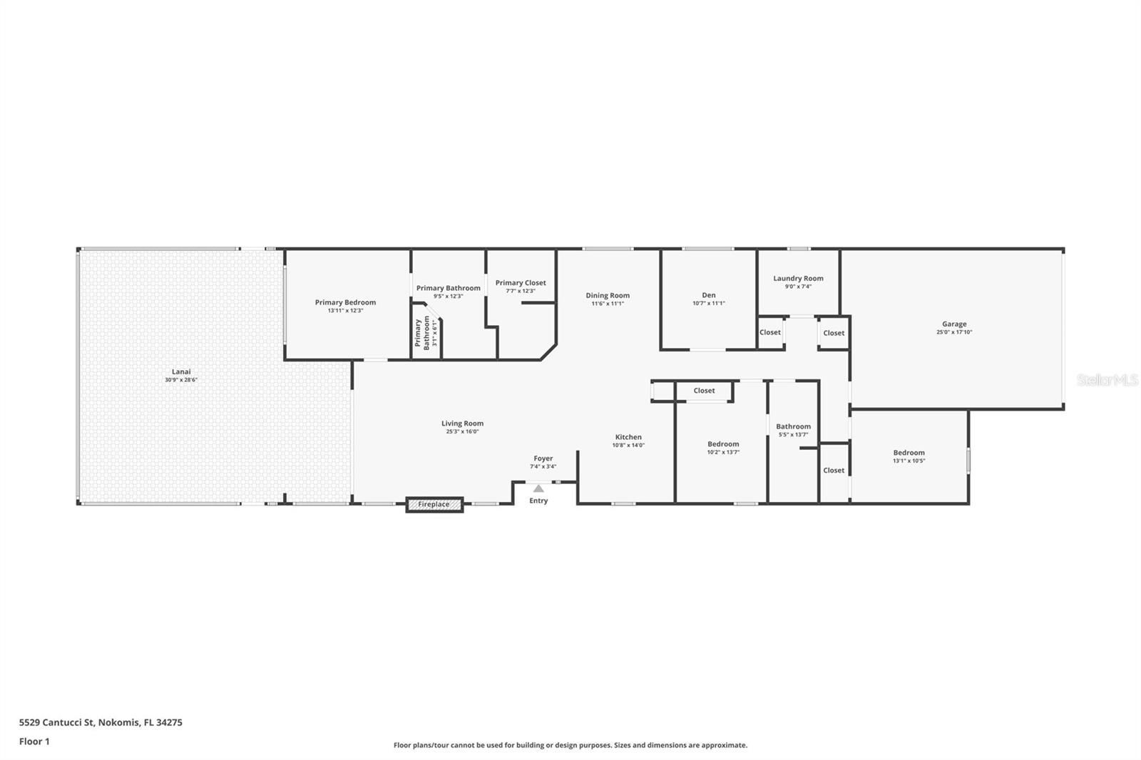
Overview
Under contract-accepting backup offers. Take a look at this fantastic opportunity to own a spacious, nearly new, 3BR plus den pool home with an outdoor kitchen, nestled on a lovely waterfront lot in the friendly Bellacina at Casey Key community. You'll love the popular Arezzo floor plan, which features a bright great room with a cozy built-in electric fireplace and a charming decorative tile wall. The open kitchen is a chef’s dream, showcasing beautiful quartzite countertops, a stylish backsplash, modern stainless steel appliances, and a natural gas range, perfect for cooking up your favorite meals. You'll find the primary suite at the back of the home, offering lake views and a peaceful retreat complete with a lovely en suite bath featuring dual sinks, a shower, and a spacious walk-in closet. The secondary bedrooms are located in the front of the home, providing great privacy for your family and guests. Plus, the dining room right next to the kitchen makes entertaining a breeze! Step outside to your gorgeous outdoor space, where you can enjoy a well-designed pool with a soothing water feature, a large deck, and an outdoor kitchen equipped with a grill and beverage refrigerator, Âideal for those perfect Florida days spent dining al fresco. Life in Bellacina at Casey Key is truly delightful! This charming gated community features a resort-style clubhouse with a catering kitchen, a fitness center, a pool with cabanas, an outdoor spa, and a cozy firepit. You’ll also find plenty of opportunities for fun with pickleball, tennis and bocce courts, cornhole, a playground, and direct access to the Legacy Trail for biking and walking. Dog lovers will appreciate the two dog parks, and there’s even a full-time activities director who organizes a wonderful social calendar to keep everyone engaged. Conveniently located just 3 miles from beautiful Nokomis Beach and Casey Key, Bellacina makes it easy to access shopping, restaurants, and medical facilities, ensuring you have everything you need just a stone's throw away. Don't hesitate, call today for your private showing and come see all that this amazing home and community have to offer!
Interior
Appliances
- Dishwasher, Dryer, Gas Water Heater, Microwave, Range, Refrigerator, Tankless Water Heater, Washer
Bedrooms
- Bedrooms: 3
Bathrooms
- Total bathrooms: 2
- Full baths: 2
Laundry
- Laundry Room
Cooling
- Central Air
Heating
- Natural Gas
Fireplace
- None
Features
- Ceiling Fan(s), Crown Molding, High Ceilings, Open Floorplan, Solid Surface Counters, Stone Counters, Walk-In Closet(s), Window Treatments
Levels
- One
Size
- 1,945 sq ft
Exterior
Private Pool
- Yes
Patio & Porch
- Rear Porch, Screened
Roof
- Tile
Garage
- Attached
- Garage Spaces: 2
- Garage Door Opener
- Oversized
Carport
- None
Year Built
- 2018
Lot Size
- 0.14 acres
- 6,314 sq ft
Waterfront
- Yes
Water Source
- Public
Sewer
- Public Sewer
Community Info
HOA Fee
- $1,184
- Frequency: Quarterly
- Includes: Basketball Court, Clubhouse, Fence Restrictions, Fitness Center, Gated, Maintenance, Park, Pool, Recreation Facilities, Tennis Court(s), Trail(s), Vehicle Restrictions
Taxes
- Annual amount: $4,256.00
- Tax year: 2024
Senior Community
- No
Features
- Association Recreation - Owned, Buyer Approval Required, Clubhouse, Community Mailbox, Deed Restrictions, Dog Park, Fitness Center, Gated, Park, Pool, Sidewalks, Tennis Court(s), Street Lights
Location
- City: Nokomis
- County/Parrish: Sarasota
- Township: 38
Listing courtesy of: Ron Suponcic, JR, COLDWELL BANKER REALTY, 941-383-6411
MLS ID: A4669707
Listings courtesy of Stellar MLS as distributed by MLS GRID. Based on information submitted to the MLS GRID as of Oct 30, 2025, 05:50am PDT. All data is obtained from various sources and may not have been verified by broker or MLS GRID. Supplied Open House Information is subject to change without notice. All information should be independently reviewed and verified for accuracy. Properties may or may not be listed by the office/agent presenting the information. Properties displayed may be listed or sold by various participants in the MLS.
Bellacina by Casey Key Real Estate Agent
Want to learn more about Bellacina by Casey Key?
Here is the community real estate expert who can answer your questions, take you on a tour, and help you find the perfect home.
Get started today with your personalized 55+ search experience!
Want to learn more about Bellacina by Casey Key?
Get in touch with a community real estate expert who can answer your questions, take you on a tour, and help you find the perfect home.
Get started today with your personalized 55+ search experience!
Homes Sold:
55+ Homes Sold:
Sold for this Community:
Avg. Response Time:
Community Key Facts
Age Restrictions
- None
Amenities & Lifestyle
- See Bellacina by Casey Key amenities
- See Bellacina by Casey Key clubs, activities, and classes
Homes in Community
- Total Homes: 306
- Home Types: Single-Family, Attached
Gated
- Yes
Construction
- Construction Dates: 2016 - 2021
- Builder: Taylor Morrison
Similar homes in this community
Popular cities in Florida
The following amenities are available to Bellacina by Casey Key - Nokomis, FL residents:
- Clubhouse/Amenity Center
- Fitness Center
- Outdoor Pool
- Library
- Walking & Biking Trails
- Tennis Courts
- Pickleball Courts
- Bocce Ball Courts
- Lakes - Scenic Lakes & Ponds
- Parks & Natural Space
- Demonstration Kitchen
- Outdoor Patio
- Pet Park
- Multipurpose Room
- Boat Launch
- Fire Pit
There are plenty of activities available in Bellacina by Casey Key. Here is a sample of some of the clubs, activities and classes offered here.
- Biking
- Bocce
- Holiday Parties
- Kayaking
- Pickleball
- Social Events
- Swimming
- Tennis

 
						 
						 
						



