-
Home type
Single family
-
Year built
2000
-
Lot size
11,761 sq ft
-
Price per sq ft
$198
-
Taxes
$4138 / Yr
-
HOA fees
$294 / Mo
-
Last updated
3 days ago
-
Views
13
-
Saves
12
Questions? Call us: (352) 780-7209
Overview
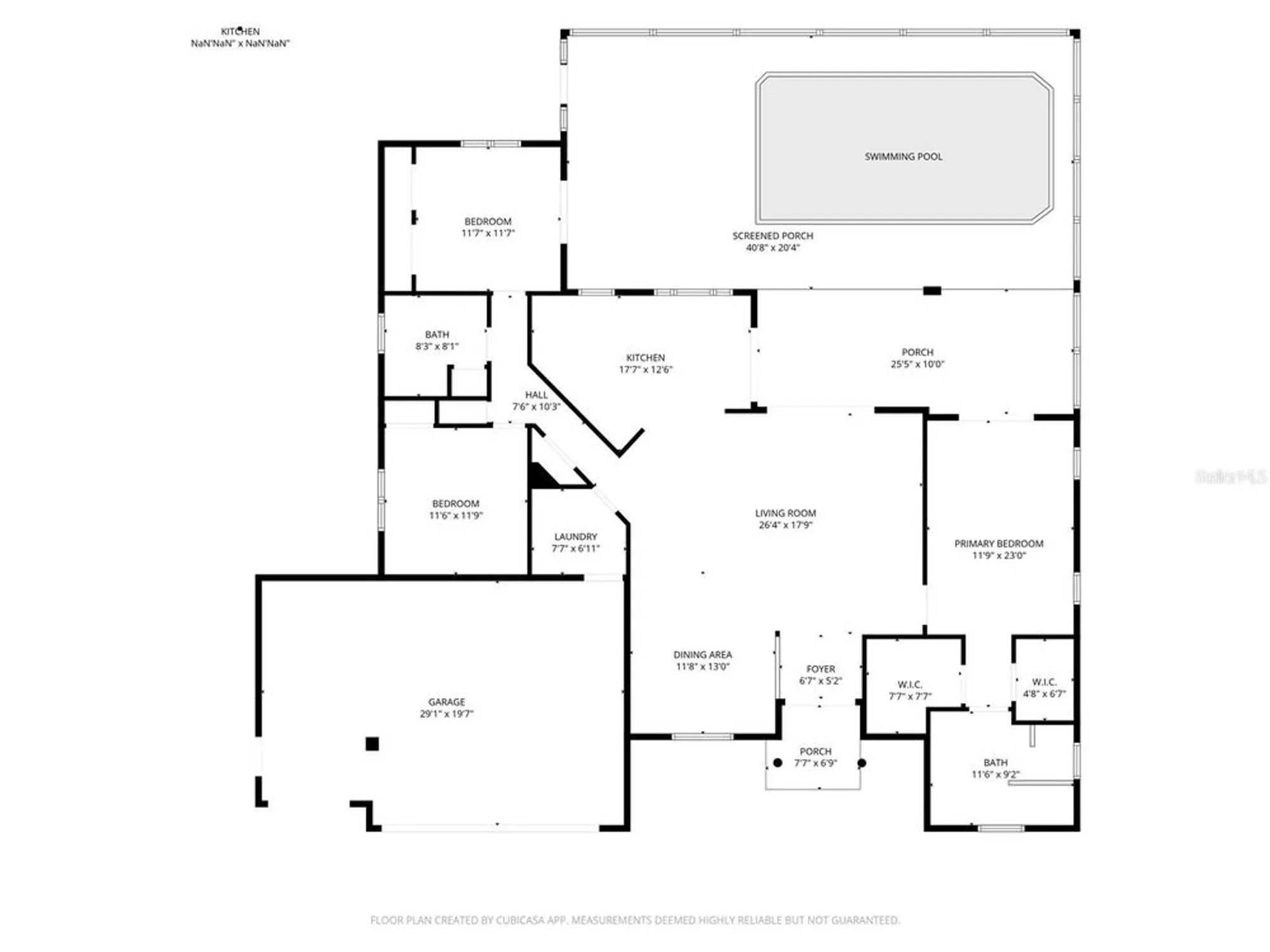
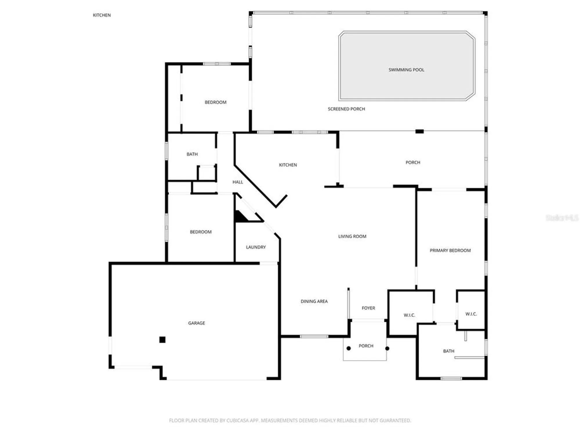
Welcome to this beautifully maintained 3-bedroom, 2-bathroom SAGO pool home overlooking the 11th fairway in the very popular community Ocala Palms. With recent updates and thoughtful details throughout, this home is move-in ready and perfect for relaxed Florida living. Step into the bright, open kitchen featuring leather granite countertops, stainless steel appliances, upgraded cabinets with pull-out drawers and crown molding, and a convenient island perfect for quick meals or weekend baking sessions. The eat-in kitchen is finished with porcelain tile flooring and solar tubes for an amazing amount of natural light. The spacious living room boasts vaulted ceilings and upgraded fans and light fixtures, offering both style and comfort. Plantation shutters line the windows for privacy and charm. The inviting floor plan leads to a generous primary bedroom featuring two walk-in closets with stylish barn doors, while the ensuite bath includes a walk-in French shower and a dual sink vanity. Enjoy your morning coffee or entertain friends in the fully screened pool area and lanai. The recently installed 24-foot SunSetter awnings add just the right amount of shade for warm afternoons and beautiful sunset views. Speaking of updates—the roof is just over a couple of years old, and the newer 4-ton air conditioning unit helps keep things cool and efficient. You'll also find a large garage with very convenient dual electric screen doors and a dedicated golf cart space, because convenience matters. The home is professionally landscaped, freshly painted inside and out, and includes a front patio where you can wave to your friendly neighbors passing by. Located close to shopping, parks, and public transportation, this home offers easy access to daily essentials with the added perk of golf course views. It’s the place where everyday comfort meets practical elegance.
Interior
Appliances
- Dishwasher, Disposal, Dryer, Electric Water Heater, Exhaust Fan, Microwave, Range, Refrigerator, Washer
Bedrooms
- Bedrooms: 3
Bathrooms
- Total bathrooms: 2
- Full baths: 2
Laundry
- Laundry Room
Cooling
- Central Air
Heating
- Heat Pump
Features
- Ceiling Fan(s), Eat-in Kitchen, Open Floorplan, Split Bedrooms, Vaulted Ceiling(s), Walk-In Closet(s), Window Treatments
Levels
- One
Size
- 1,808 sq ft
Exterior
Private Pool
- Yes
Roof
- Shingle
Garage
- Attached
- Garage Spaces: 2
- Garage Door Opener
- Golf Cart Garage
Carport
- None
Year Built
- 2000
Lot Size
- 0.27 acres
- 11,761 sq ft
Waterfront
- No
Water Source
- Public
Sewer
- Public Sewer
Community Info
HOA Information
- Association Fee: $294
- Association Fee Frequency: Monthly
- Association Fee Includes: Clubhouse, Fitness Center, Gated, Pickleball, Pool, Shuffleboard Court, Spa/Hot Tub, Tennis Court(s), 24 Hour Guard, Common Area Taxes, Pool(s), Recreation Facilities, Trash
Taxes
- Annual amount: $4,138.00
- Tax year: 2024
Senior Community
- Yes
Features
- Buyer Approval Required, Deed Restrictions, Fitness Center, Golf Carts Permitted, Golf, Tennis Court(s)
Location
- City: Ocala
- County/Parrish: Marion
- Township: 15S
Listing courtesy of: Gigi Ansell, PEGASUS REALTY & ASSOC INC, 352-629-4505
MLS ID: OM713246
Listings courtesy of Stellar MLS as distributed by MLS GRID. Based on information submitted to the MLS GRID as of Apr 11, 2026, 11:43am PDT. All data is obtained from various sources and may not have been verified by broker or MLS GRID. Supplied Open House Information is subject to change without notice. All information should be independently reviewed and verified for accuracy. Properties may or may not be listed by the office/agent presenting the information. Properties displayed may be listed or sold by various participants in the MLS.
Ocala Palms Real Estate Agent
Want to learn more about Ocala Palms?
Here is the community real estate expert who can answer your questions, take you on a tour, and help you find the perfect home.
Get started today with your personalized 55+ search experience!
Want to learn more about Ocala Palms?
Get in touch with a community real estate expert who can answer your questions, take you on a tour, and help you find the perfect home.
Get started today with your personalized 55+ search experience!
Homes Sold:
55+ Homes Sold:
Sold for this Community:
Avg. Response Time:
Community Key Facts
Age Restrictions
- 55+
Amenities & Lifestyle
- See Ocala Palms amenities
- See Ocala Palms clubs, activities, and classes
Homes in Community
- Total Homes: 1,076
- Home Types: Single-Family
Gated
- Yes
Construction
- Construction Dates: 1994 - 1997
- Builder: Venture & Associates
Similar homes in this community
Popular cities in Florida
The following amenities are available to Ocala Palms - Ocala, FL residents:
- Clubhouse/Amenity Center
- Golf Course
- Restaurant
- Fitness Center
- Indoor Pool
- Outdoor Pool
- Card Room
- Arts & Crafts Studio
- Sewing Studio
- Ballroom
- Library
- Billiards
- Walking & Biking Trails
- Tennis Courts
- Bocce Ball Courts
- Shuffleboard Courts
- Horseshoe Pits
- Volleyball Court
- Lakes - Scenic Lakes & Ponds
- R.V./Boat Parking
- Demonstration Kitchen
- Table Tennis
- Outdoor Patio
- Golf Practice Facilities/Putting Green
- On-site Retail
- Multipurpose Room
- Croquet Court/Lawn
- BBQ
There are plenty of activities available in Ocala Palms. Here is a sample of some of the clubs, activities and classes offered here.
- Aerobics
- Aquacise
- Artist Classes
- Ballroom Dancing
- Basket Weavingn Club
- Billards
- Bingo
- Bocce Ball
- Bowling League
- Bridge
- Bunco
- Ceramics Group
- Choral Group
- Computer Club
- Croquet
- Dances
- Educational Seminars
- Fashion Shows
- Garden Club
- Genealogy Club
- Holiday Parties
- Horseshoes
- Line Dancing
- Lunch Bunch
- Mah Jongg
- Modern Dance
- Pancake Breakfasts
- Ping Pong
- Pinochle
- Poker
- Quilting
- Regional Clubs
- Singles Club
- Square Dancing
- Tap Dancing
- Tennis
- Variety Shows
- Volleyball




