-
Home type
Single family
-
Year built
1990
-
Lot size
7,259 sq ft
-
Price per sq ft
$435
-
HOA fees
$1025 / Mo
-
Last updated
Today
-
Views
5
Questions? Call us: (442) 256-9064
Overview
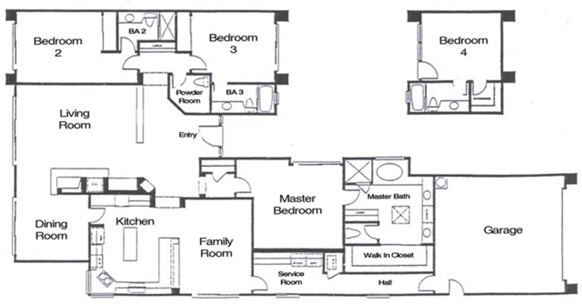
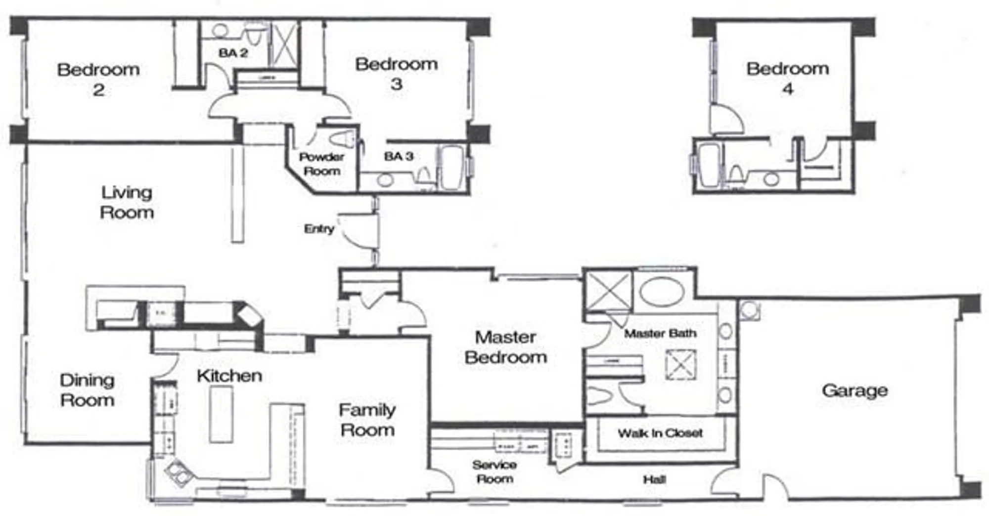
Breathtaking Mountain and Golf Course Views!! An Exceptional Opportunity on the Nicklaus Private Course at PGA West. Located on the 17th Hole (Par 3) of the Jack Nicklaus Private Course, this highly sought-after Highlands Plan 3 offers stunning, unobstructed views of the Santa Rosa Mountains and Golf Course. Featuring 4 bedrooms, 4.5 baths, and approx. 2,968 sq. ft. of living space including a detached casita with Golf Cart Garage, this property combines a premium location with incredible potential.The spacious floor plan features high ceilings, a formal living room with fireplace, and a large kitchen with abundant counter and cabinet space, ideal for entertaining. A wet bar enhances the home's entertaining appeal. The expansive primary suite offers privacy, the en-suite bathroom includes double vanities, a soaking tub, tiled walk-in shower, and generous walk-in closet. Each guest room features its own en-suite bath for comfort, convenience and privacy. The detached casita provides the perfect retreat for family or guests.The backyard patio showcases panoramic mountain and golf course views with plenty of room to create your dream outdoor living area. The community pool and spa are conveniently located nearby. This home's fundamentals are exceptional premium golf course frontage, dramatic views, and great floor plan all ready for a fresh vision and personal touch.Enjoy the lifestyle and amenities that make PGA West one of La Quinta's premier communities, including 24-hour guard-gated security, resort-style pools and spas, PGA West offers championship golf, its home to six world-class golf courses including three public and three private courses, a state of the art sports club, racquet sports, casual to fine dining options, and social events & gatherings.Located just minutes from Old Town La Quinta, SilverRock Resort, hiking trails, restaurants, and seasonal festivals. Don't miss this opportunity to create your own desert retreat with some of the best views in PGA West!
Interior
Appliances
- Electric Cooktop, Microwave, Electric Oven, Refrigerator, Disposal, Dishwasher, Gas Water Heater
Bedrooms
- Bedrooms: 4
Bathrooms
- Total bathrooms: 5
- Half baths: 1
- Full baths: 4
Laundry
- Individual Room
Cooling
- Central Air
Heating
- Central, Fireplace(s), Natural Gas
Fireplace
- 1, See Through,Gas,Living Room
Features
- Crown Molding, Wet Bar, Recessed Lighting, High Ceilings, Utility Room, Living Room, Guest Suite, Great Room, Family Room, Primary Suite, Walk-In Closet(s)
Levels
- One
Size
- 2,986 sq ft
Exterior
Private Pool
- Yes
Patio & Porch
- Covered
Roof
- Tile
Garage
- Attached
- Garage Spaces: 3
- Golf Cart Garage
- Driveway
- Side by Side
- Street
Carport
- None
Year Built
- 1990
Lot Size
- 0.17 acres
- 7,259 sq ft
Waterfront
- No
Community Info
HOA Fee
- $1,025
- Frequency: Monthly
- Includes: Maintenance Grounds, Management, Trash, Security, Cable TV
Senior Community
- No
Listing courtesy of: Anne-Vija Nelson, Windermere Real Estate
MLS ID: 219138586DA
Based on information from California Regional Multiple Listing Service, Inc. as of Jan 11, 2026 and/or other sources. All data, including all measurements and calculations of area, is obtained from various sources and has not been, and will not be, verified by broker or MLS. All information should be independently reviewed and verified for accuracy. Properties may or may not be listed by the office/agent presenting the information.
PGA West Real Estate Agent
Want to learn more about PGA West?
Here is the community real estate expert who can answer your questions, take you on a tour, and help you find the perfect home.
Get started today with your personalized 55+ search experience!
Want to learn more about PGA West?
Get in touch with a community real estate expert who can answer your questions, take you on a tour, and help you find the perfect home.
Get started today with your personalized 55+ search experience!
Homes Sold:
55+ Homes Sold:
Sold for this Community:
Avg. Response Time:
Community Key Facts
Age Restrictions
- None
Amenities & Lifestyle
- See PGA West amenities
- See PGA West clubs, activities, and classes
Homes in Community
- Total Homes: 6,000
- Home Types: Single-Family, Attached
Gated
- Yes
Construction
- Construction Dates: 1985 - Present
- Builder: Multiple Builders, Sunrise, Woodbridge Pacific Group, Woodbridge Pacific
Similar homes in this community
Popular cities in California
The following amenities are available to PGA West - La Quinta, CA residents:
- Clubhouse/Amenity Center
- Golf Course
- Restaurant
- Fitness Center
- Outdoor Pool
- Billiards
- Tennis Courts
- Pickleball Courts
- Bocce Ball Courts
- Lakes - Scenic Lakes & Ponds
- Parks & Natural Space
- Table Tennis
- Outdoor Patio
- Pet Park
- Golf Practice Facilities/Putting Green
- On-site Retail
- Day Spa/Salon/Barber Shop
- Multipurpose Room
- Misc.
- Spa
- Golf Shop/Golf Services/Golf Cart Rentals
- Bar
There are plenty of activities available in PGA West. Here is a sample of some of the clubs, activities and classes offered here.
- Billards
- Bocce Ball
- Golf
- Pickleball
- Table Tennis
- Tennis




