• Home type

    Villa

  • Year built

    1984

  • Lot size

    4,966 sq ft

  • Price per sq ft

    $127

  • Taxes

    $2904 / Yr

  • HOA fees

    $774 / Qtr

  • Last updated

    Today

  • Views

    5


Questions? Call us: (941) 271-0503


Overview

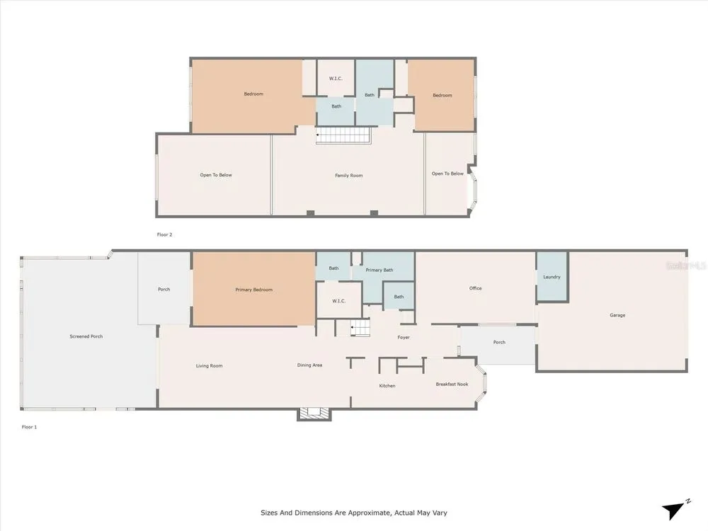
PRICE REDUCED **MOTIVATED SELLER** READY FOR YOU TO MAKE IT YOUR OWN!!! – Rare, Maintenance-Free Living in Fairway Six at Palm Aire – LOW HOA $774/Quarter & NO CDD Fees! Welcome to your dream home in the exclusive Fairway Six community, part of the renowned Palm Aire Golf & Country Club. This exceptional 3,150 sq ft townhome lives like a single-family residence, offering the space, privacy, and comfort you desire—without the maintenance! One of only two homes in the 53-unit neighborhood with this expansive floor plan, this residence features 3 bedrooms, including a main-floor primary suite, 2.5 bathrooms, a flexible den, a large loft, and an oversized 2-car garage. Soaring vaulted ceilings, abundant natural light, and generous living spaces make this home feel grand and inviting. The updated kitchen includes solid wood cabinets with pull-out shelves, Corian countertops, under-cabinet lighting, a cozy breakfast area, and a convenient pass-through to the dining room—perfect for hosting and entertaining. Enjoy the Florida lifestyle with seamless indoor-outdoor living. A sliding glass door and French door lead to the expansive screened lanai, where you’ll enjoy peaceful views of the lush golf course and vibrant sunsets. The primary suite is a luxurious retreat with direct lanai access, a large walk-in closet, dual sinks, soaking tub, and separate shower. Upstairs, a spacious loft connects to two comfortable bedrooms and a full bath—ideal for guests or a second living area. This maintenance-free community takes care of your exterior upkeep, including the recently painted building exterior, so you can enjoy a worry-free lifestyle. Plus, this home has a BRAND NEW ROOF (2023), NEW GARAGE DOOR (2020), Newer Hot Water Heater, Washer, and Upright Freezer. Fairway Six amenities include a community pool, clubhouse, and tennis/pickleball court—right across the street. Optional membership at Palm Aire Country Club unlocks even more: two championship golf courses, tennis, pickleball, a junior Olympic saltwater pool, and 24/7 fitness center. Close to UTC Mall, I-75, and the gorgeous Gulf Coast beaches, this rare gem offers the best of single-family living with maintenance-free convenience.


Interior

Appliances

  • Dishwasher, Dryer, Freezer, Microwave, Range, Refrigerator, Washer

Bedrooms

  • Bedrooms: 3

Bathrooms

  • Total bathrooms: 3
  • Half baths: 1
  • Full baths: 2

Laundry

  • Inside
  • Laundry Room

Cooling

  • Central Air

Heating

  • Central, Electric

Fireplace

  • None

Features

  • Cathedral Ceiling(s), Ceiling Fan(s), Eat-in Kitchen, High Ceilings, Living/Dining Room, Open Floorplan, Main Level Primary, Solid Surface Counters, Solid-Wood Cabinets, Split Bedrooms, Vaulted Ceiling(s), Walk-In Closet(s)

Levels

  • Two

Size

  • 3,150 sq ft

Exterior

Private Pool

  • No

Patio & Porch

  • Covered, Patio, Rear Porch, Screened

Roof

  • Shingle

Garage

  • Attached
  • Garage Spaces: 2
  • Driveway
  • Garage Door Opener
  • Guest
  • Oversized

Carport

  • None

Year Built

  • 1984

Lot Size

  • 0.11 acres
  • 4,966 sq ft

Waterfront

  • No

Water Source

  • Public

Sewer

  • Public Sewer

Community Info

HOA Fee

  • $774
  • Frequency: Quarterly

Taxes

  • Annual amount: $2,903.60
  • Tax year: 2024

Senior Community

  • No

Features

  • Buyer Approval Required, Clubhouse, Golf Carts Permitted, Golf, Pool, Sidewalks, Tennis Court(s), Street Lights

Location

  • City: Sarasota
  • County/Parrish: Manatee
  • Township: 35S

Listing courtesy of: Wendy Lynn, EXP REALTY LLC, 888-883-8509

Source: Stellar
MLS ID: A4637653

Stellar

Listings courtesy of Stellar MLS as distributed by MLS GRID. Based on information submitted to the MLS GRID as of Oct 13, 2025, 09:32am PDT. All data is obtained from various sources and may not have been verified by broker or MLS GRID. Supplied Open House Information is subject to change without notice. All information should be independently reviewed and verified for accuracy. Properties may or may not be listed by the office/agent presenting the information. Properties displayed may be listed or sold by various participants in the MLS.


Palm Aire Real Estate Agent

Want to learn more about Palm Aire?

Here is the community real estate expert who can answer your questions, take you on a tour, and help you find the perfect home.

Get started today with your personalized 55+ search experience!

Want to learn more about Palm Aire?

Get in touch with a community real estate expert who can answer your questions, take you on a tour, and help you find the perfect home.

Get started today with your personalized 55+ search experience!

Homes Sold:

55+ Homes Sold:

Sold for this Community:

Avg. Response Time:

Global - Lead Form - Buyer Only
*55places does not provide or maintain community HOA information.
By requesting more information, you agree that 55places placeholder may call, text, or email you about your inquiry, which may be made with automated means (including recorded voice messages, SMS, or text messages). You understand that your consent is not a prerequisite for buying, selling or renting a property. You may revoke your consent at any time by contacting [email protected]. Message/data rates may apply. You also agree to 55places.com's Privacy Policy and Terms of Use.

Community Key Facts

Palm Aire

Age Restrictions

  • None

Amenities & Lifestyle

  • See Palm Aire amenities
  • See Palm Aire clubs, activities, and classes

Homes in Community

  • Total Homes: 3,752
  • Home Types: Single-Family, Attached, Condos

Gated

  • No

Construction

  • Construction Dates: 1963 - 2003

Similar homes in this community Palm Aire

$449,000
3 Beds | 3 Baths | 1485 Sq. Ft.
MLS #TB8437237
Jack Keller Inc, John Keller
$429,900
2 Beds | 2 Baths | 2012 Sq. Ft.
MLS #A4666779
Premier Sotheby's International Realty, Marci Carter
$569,000
3 Beds | 2 Baths | 2023 Sq. Ft.
MLS #TB8433939
Epique Realty, Inc., Karolina Taylor

Palm Aire Real Estate Agent

Want to learn more about Palm Aire?

Here is the community real estate expert who can answer your questions, take you on a tour, and help you find the perfect home.

Get started today with your personalized 55+ search experience!

Want to learn more about Palm Aire?

Get in touch with a community real estate expert who can answer your questions, take you on a tour, and help you find the perfect home.

Get started today with your personalized 55+ search experience!

Homes Sold:

55+ Homes Sold:

Sold for this Community:

Avg. Response Time:

Global - Lead Form - Buyer Only
*55places does not provide or maintain community HOA information.
By requesting more information, you agree that 55places placeholder may call, text, or email you about your inquiry, which may be made with automated means (including recorded voice messages, SMS, or text messages). You understand that your consent is not a prerequisite for buying, selling or renting a property. You may revoke your consent at any time by contacting [email protected]. Message/data rates may apply. You also agree to 55places.com's Privacy Policy and Terms of Use.

Agent Image
 

Community Expert

Call Us Call Us
Scroll to Top