- 2 beds
- 2 baths
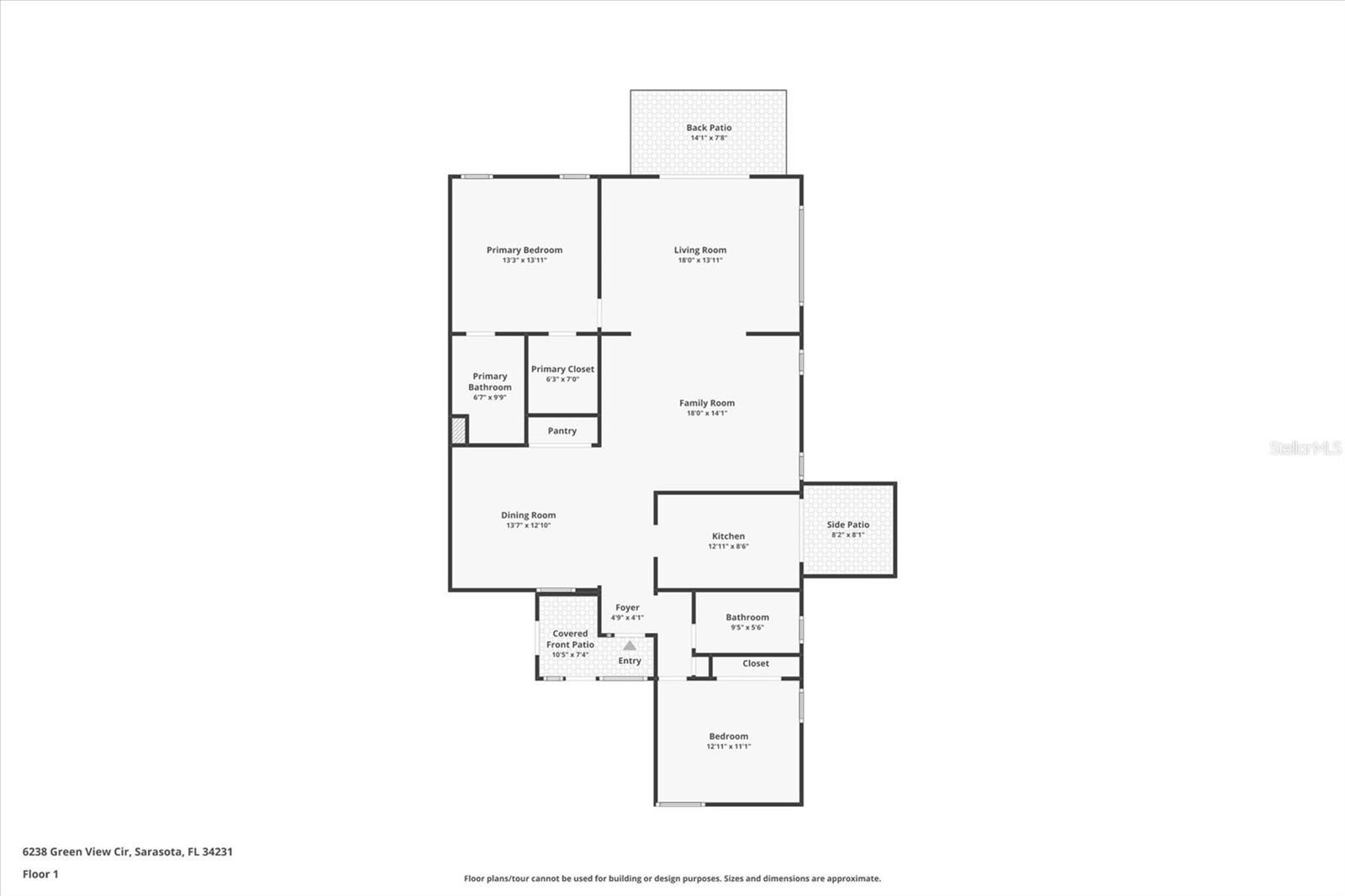
- 1,545 sq ft
6238 Green View Cir 69, Sarasota, FL, 34231
Community: Village In The Pines
-
Home type
Villa
-
Year built
1973
-
Lot size
807,121 sq ft
-
Price per sq ft
$103
-
Taxes
$1075 / Yr
-
HOA fees
$656 / Mo
-
Last updated
Today
-
Views
4
Questions? Call us: (941) 203-1267
Overview
This home needs your renovation skills and TLC. Located in a very active & engaging community in the heart of Sarasota, (close to all amenities), this home affords our buyer a unique opportunity to create a one-of-a-kind experience. The property is located in a very quiet area within the community and backs onto woods and a small creek, ensuring ultimate privacy. This is a blank canvas, waiting for a buyer with great imagination. UPGRADES INCLUDE: NEW ROOF-FRONT & BACK-2014, NEW WASHING MACHINE-2024, NEW A/C-2024, NEW REFRIGERATOR-2018, NEW PATIO FENCE (OFF KITCHEN)-2019 and HOME REPLUMBED 2012. The community features, a pool, clubhouse, exercise facility, reasonable fees and much, much more. Do not miss this great opportunity. Call today for a private tour. PLEASE VIEW VIRTUAL TOUR.
Interior
Appliances
- Dryer, Electric Water Heater, Range, Range Hood, Refrigerator, Washer
Bedrooms
- Bedrooms: 2
Bathrooms
- Total bathrooms: 2
- Full baths: 2
Laundry
- Laundry Room
- Outside
Cooling
- Central Air
Heating
- Central, Electric
Features
- Ceiling Fan(s), Living/Dining Room
Levels
- One
Size
- 1,545 sq ft
Exterior
Private Pool
- No
Patio & Porch
- Covered, Rear Porch, Screened
Roof
- Shingle
Garage
- None
Carport
- Carport Spaces:
- Covered
Year Built
- 1973
Lot Size
- 18.53 acres
- 807,121 sq ft
Waterfront
- No
Water Source
- Public
Sewer
- Public Sewer
Community Info
HOA Fee
- $656
- Frequency: Monthly
- Includes: Clubhouse, Fitness Center, Pool
Taxes
- Annual amount: $1,075.00
- Tax year: 2024
Senior Community
- Yes
Features
- Clubhouse, Deed Restrictions, Fitness Center, Pool
Location
- City: Sarasota
- County/Parrish: Sarasota
- Township: 37
Listing courtesy of: Rick Treharne, MARATHON REALTY GROUP, 941-371-4454
MLS ID: A4671474
Listings courtesy of Stellar MLS as distributed by MLS GRID. Based on information submitted to the MLS GRID as of Feb 11, 2026, 03:00pm PST. All data is obtained from various sources and may not have been verified by broker or MLS GRID. Supplied Open House Information is subject to change without notice. All information should be independently reviewed and verified for accuracy. Properties may or may not be listed by the office/agent presenting the information. Properties displayed may be listed or sold by various participants in the MLS.
Village In The Pines Real Estate Agent
Want to learn more about Village In The Pines?
Here is the community real estate expert who can answer your questions, take you on a tour, and help you find the perfect home.
Get started today with your personalized 55+ search experience!
Want to learn more about Village In The Pines?
Get in touch with a community real estate expert who can answer your questions, take you on a tour, and help you find the perfect home.
Get started today with your personalized 55+ search experience!
Homes Sold:
55+ Homes Sold:
Sold for this Community:
Avg. Response Time:
Community Key Facts
Age Restrictions
- 55+
Amenities & Lifestyle
- See Village In The Pines amenities
- See Village In The Pines clubs, activities, and classes
Homes in Community
- Total Homes: 192
- Home Types: Attached
Gated
- Yes
Construction
- Construction Dates: 1972 - 1978
Similar homes in this community
Popular cities in Florida
The following amenities are available to Village In The Pines - Sarasota, FL residents:
- Clubhouse/Amenity Center
- Fitness Center
- Outdoor Pool
- Outdoor Patio
- Multipurpose Room
There are plenty of activities available in Village In The Pines. Here is a sample of some of the clubs, activities and classes offered here.
- Clubs and Groups
- Holiday Parties
- Swimming




