- 2 beds
- 2 baths
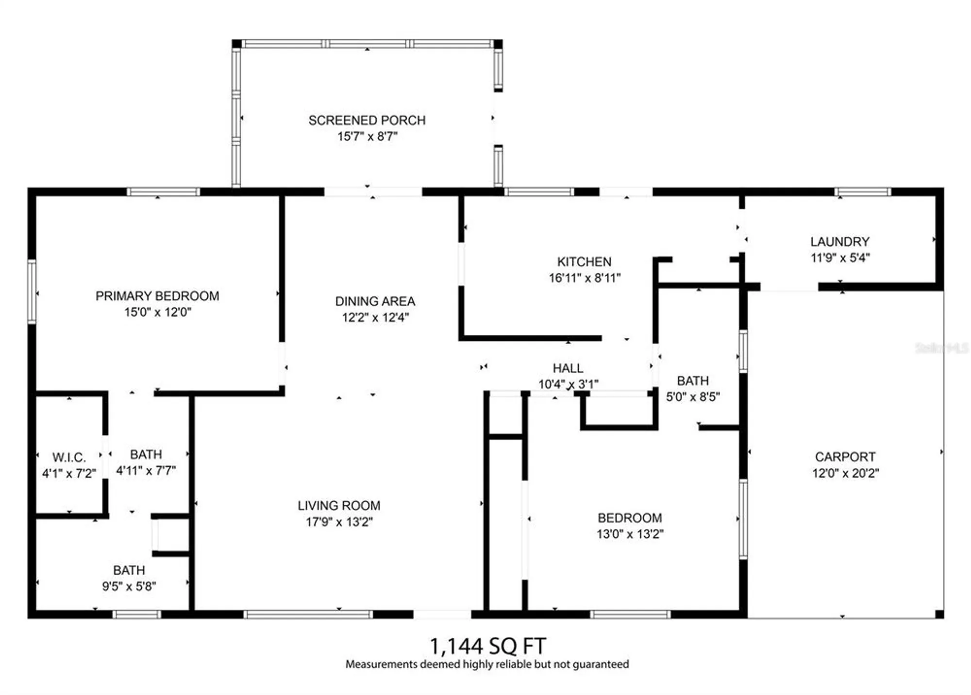
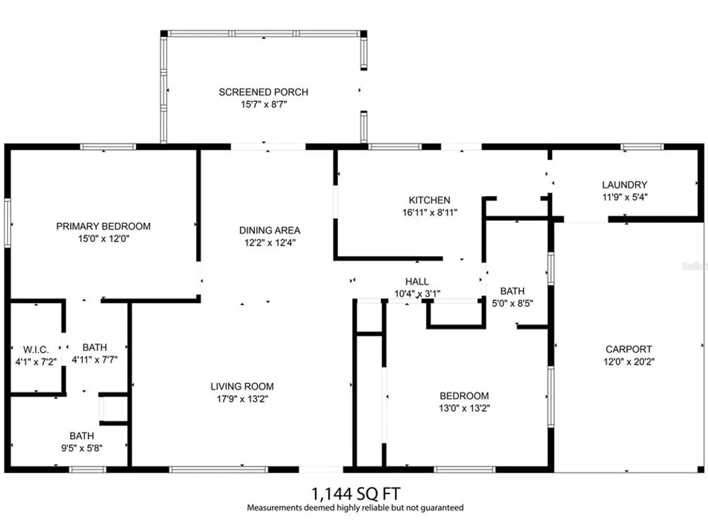
- 1,144 sq ft
6473 Sw 108th St, Ocala, FL, 34476
Community: Spruce Creek North
-
Home type
Single family
-
Year built
1987
-
Lot size
10,890 sq ft
-
Price per sq ft
$140
-
Taxes
$2382 / Yr
-
HOA fees
$118 / Mo
-
Last updated
3 days ago
-
Views
21
-
Saves
12
Questions? Call us: (352) 706-7675
Overview
One or more photo(s) has been virtually staged. Welcome to low-maintenance living in the highly desirable 55+ community of Spruce Creek North, ideally located in SW Ocala! This charming 2-bedroom, 2-bath home offers a bright and spacious Florida Room, a 1-car carport, and sits on a beautifully landscaped, easy-to-maintain ¼-acre lot. Recent upgrades include a new roof (2022), A/C (2021), and a newer hot water heater, giving peace of mind to the next owner. The interior features a functional split-bedroom floor plan, with the owners suite offering an en-suite bath and walk-in closet, while the guest bedroom provides dual access to a full bath for added convenience. You'll also love the large inside laundry room, washer and dryer included! Enjoy resort-style amenities for just $118/month, including a clubhouse, pool, fitness center, social clubs, night security patrols, pet-friendly policies, basic cable, and trash pickup all part of the HOA. Conveniently located near the main entrance on 103rd St Rd, you're just minutes from SW Ocala's best shopping, dining, and medical centers. Financing options include Cash, Conventional, FHA, and VA. Home is move-in ready, professionally cleaned, and perfect for someone who values comfort, community, and convenience.
Interior
Appliances
- Dryer, Range, Range Hood, Refrigerator, Washer
Bedrooms
- Bedrooms: 2
Bathrooms
- Total bathrooms: 2
- Full baths: 2
Laundry
- Inside
- Laundry Room
Cooling
- Central Air
Heating
- Electric
Fireplace
- None
Features
- Ceiling Fan(s), Main Level Primary, Split Bedrooms, Thermostat, Walk-In Closet(s), Window Treatments
Levels
- One
Size
- 1,144 sq ft
Exterior
Private Pool
- No
Patio & Porch
- Enclosed
Roof
- Shingle
Garage
- None
Carport
- Carport Spaces:
Year Built
- 1987
Lot Size
- 0.25 acres
- 10,890 sq ft
Waterfront
- No
Water Source
- Public
Sewer
- Septic Tank
Community Info
HOA Fee
- $118
- Frequency: Monthly
- Includes: Cable TV, Clubhouse, Fence Restrictions, Fitness Center, Pool, Recreation Facilities, Shuffleboard Court
Taxes
- Annual amount: $2,381.86
- Tax year: 2025
Senior Community
- Yes
Features
- Clubhouse, Deed Restrictions, Fitness Center, Pool
Location
- City: Ocala
- County/Parrish: Marion
- Township: 16
Listing courtesy of: Victoria Watley, ROBB HARRISON REALTY INC, 352-877-2790
MLS ID: OM707926
Listings courtesy of Stellar MLS as distributed by MLS GRID. Based on information submitted to the MLS GRID as of Nov 30, 2025, 07:53am PST. All data is obtained from various sources and may not have been verified by broker or MLS GRID. Supplied Open House Information is subject to change without notice. All information should be independently reviewed and verified for accuracy. Properties may or may not be listed by the office/agent presenting the information. Properties displayed may be listed or sold by various participants in the MLS.
Spruce Creek North Real Estate Agent
Want to learn more about Spruce Creek North?
Here is the community real estate expert who can answer your questions, take you on a tour, and help you find the perfect home.
Get started today with your personalized 55+ search experience!
Want to learn more about Spruce Creek North?
Get in touch with a community real estate expert who can answer your questions, take you on a tour, and help you find the perfect home.
Get started today with your personalized 55+ search experience!
Homes Sold:
55+ Homes Sold:
Sold for this Community:
Avg. Response Time:
Community Key Facts
Age Restrictions
- 55+
Amenities & Lifestyle
- See Spruce Creek North amenities
- See Spruce Creek North clubs, activities, and classes
Homes in Community
- Total Homes: 400
- Home Types: Single-Family
Gated
- No
Construction
- Construction Dates: 1987 - 1998
- Builder: Del Webb
Similar homes in this community
Popular cities in Florida
The following amenities are available to Spruce Creek North - Ocala, FL residents:
- Clubhouse/Amenity Center
- Fitness Center
- Outdoor Pool
- Library
- Billiards
- Walking & Biking Trails
- Bocce Ball Courts
- Shuffleboard Courts
- Horseshoe Pits
- Lakes - Scenic Lakes & Ponds
- Demonstration Kitchen
- Table Tennis
- Outdoor Patio
- Multipurpose Room
- Gazebo
There are plenty of activities available in Spruce Creek North. Here is a sample of some of the clubs, activities and classes offered here.
- Aquacise
- Ball Club
- Bingo
- Bowling
- Bridge
- Bunco
- Citizen News Reporter
- Craft Club
- Crazy Quilters
- Crime Watch
- Euchre
- Friday Mixers
- Holiday Events
- Horseshoes
- Human Touch
- Librarian
- Line Dancing
- Low Impact Aerobics
- Mah Jongg
- New Resident Greeter
- Newsletter
- Pancake Breakfast
- Ping Pong
- Pinochle
- Poker
- Puzzle Librarian
- Search Team
- Skip-BO
- Social
- Water Walking
- Weight Training




