- 3 beds
- 2 baths
- 2,130 sq ft
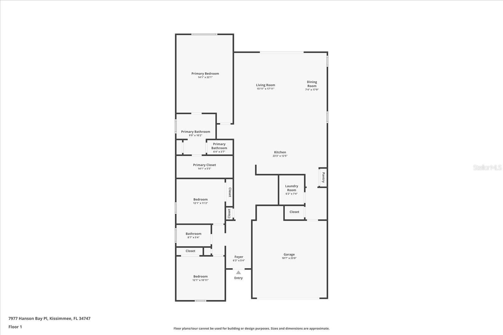
7977 Hanson Bay Pl, Kissimmee, FL, 34747
Community: Four Seasons at Orlando
-
Home type
Single family
-
Year built
2019
-
Lot size
6,534 sq ft
-
Price per sq ft
$223
-
Taxes
$7381 / Yr
-
HOA fees
$407 / Mo
-
Last updated
1 day ago
-
Views
3
-
Saves
7
Questions? Call us: (689) 202-4218
Overview
Welcome to the Four Seasons at Orlando – Where Resort Living Meets Everyday Luxury! FULLY FURNISHED AND MOVE IN READY! Nestled within Orlando’s premier 55+ guard-gated community, this stunning home is situated on the famed Mystic Dunes Golf Club. Built in 2019 and offering just over 2,000 square feet, this exceptional 3-bedroom, 2-bath residence is perfectly positioned on a quiet cul-de-sac with sweeping golf course views. From the moment you arrive, the paved driveway and manicured setting set the tone. Inside, luxury vinyl plank flooring flows through the main living areas, complemented by plush carpeting in the bedrooms. Crown molding, tray ceilings, and designer finishes elevate every space. The wide-open floor plan centers around a stunning bright white kitchen featuring Shaker-style cabinetry, stone countertops, a built-in oven and cooktop, walk-in pantry, and an enormous island designed for gathering. A built-in office/workspace greets you at the entry — ideal for remote work or organization. An extra-wide sliding glass door frames the golf course beyond, filling the home with natural light and seamlessly connecting to the covered, paved back porch. The primary suite is a true retreat, overlooking the course and offering a spa-inspired bath with glass-enclosed shower, double vanity, private water closet, and an oversized walk-in closet. Secondary bedrooms are generously sized, and both bathrooms showcase beautiful tile detail and stone countertops. The laundry/utility room includes, shelving, and a utility tub for added functionality. The backyard features a covered lanai and extended paver patios overlooking serene mature landscaping and a breathtaking golf course view and is also pre-wired for a custom pool. The home is equipped with a whole home water filtration system and EV car charger in Garage. Home can be sold furnished with a few minor exceptions see attachments for exclusions. Located minutes from Walt Disney World, major highways, shopping, and dining — and just a couple hours from Florida’s pristine east and west coast beaches — this home delivers luxury, convenience, and lifestyle in one extraordinary package. This is not just move-in ready. This is a showpiece.
Interior
Appliances
- Cooktop, Dishwasher, Disposal, Dryer, Microwave, Refrigerator, Tankless Water Heater, Washer, Water Softener
Bedrooms
- Bedrooms: 3
Bathrooms
- Total bathrooms: 2
- Full baths: 2
Laundry
- Laundry Room
Cooling
- Central Air
Heating
- Central
Features
- Ceiling Fan(s), Coffered Ceiling(s), Crown Molding, Eat-in Kitchen, High Ceilings, Kitchen/Family Room Combo, Living/Dining Room, Open Floorplan, Main Level Primary, Solid Surface Counters, Split Bedrooms, Stone Counters, Tray Ceiling(s), Walk-In Closet(s)
Levels
- One
Size
- 2,130 sq ft
Exterior
Private Pool
- No
Patio & Porch
- Covered, Rear Porch
Roof
- Shingle
Garage
- Attached
- Garage Spaces: 2
- Driveway
Carport
- None
Year Built
- 2019
Lot Size
- 0.15 acres
- 6,534 sq ft
Waterfront
- No
Water Source
- Public
Sewer
- Public Sewer
Community Info
HOA Information
- Association Fee: $407
- Association Fee Frequency: Monthly
- Association Fee Includes: Clubhouse, Fitness Center, Gated, Modified for Accessibility, Pickleball, Pool, Spa/Hot Tub, Wheelchair Accessible, 24 Hour Guard, Maintenance Grounds, Pool(s), Sewer, Trash
Taxes
- Annual amount: $7,381.00
- Tax year: 2025
Senior Community
- Yes
Features
- Clubhouse, Community Mailbox, Dog Park, Fitness Center, Gated, Guarded Entrance, Golf, Irrigation-Reclaimed Water, No Truck/RV/Motorcycle Parking, Pool, Tennis Court(s), Wheelchair Accessible
Location
- City: Kissimmee
- County/Parrish: Osceola
- Township: 25S
Listing courtesy of: Tyler Labod, REAL BROKER, LLC, 855-450-0442
MLS ID: O6382804
Listings courtesy of Stellar MLS as distributed by MLS GRID. Based on information submitted to the MLS GRID as of May 25, 2026, 05:18pm PDT. All data is obtained from various sources and may not have been verified by broker or MLS GRID. Supplied Open House Information is subject to change without notice. All information should be independently reviewed and verified for accuracy. Properties may or may not be listed by the office/agent presenting the information. Properties displayed may be listed or sold by various participants in the MLS.
Four Seasons at Orlando Real Estate Agent
Want to learn more about Four Seasons at Orlando?
Here is the community real estate expert who can answer your questions, take you on a tour, and help you find the perfect home.
Get started today with your personalized 55+ search experience!
Want to learn more about Four Seasons at Orlando?
Get in touch with a community real estate expert who can answer your questions, take you on a tour, and help you find the perfect home.
Get started today with your personalized 55+ search experience!
Homes Sold:
55+ Homes Sold:
Sold for this Community:
Avg. Response Time:
Community Key Facts
Age Restrictions
- 55+
Amenities & Lifestyle
- See Four Seasons at Orlando amenities
- See Four Seasons at Orlando clubs, activities, and classes
Homes in Community
- Total Homes: 557
- Home Types: Single-Family
Gated
- Yes
Construction
- Construction Dates: 2017 - Present
- Builder: K. Hovnanian,
Similar homes in this community
Popular cities in Florida
The following amenities are available to Four Seasons at Orlando - Kissimmee, FL residents:
- Clubhouse/Amenity Center
- Golf Course
- Restaurant
- Fitness Center
- Outdoor Pool
- Aerobics & Dance Studio
- Card Room
- Arts & Crafts Studio
- Billiards
- Tennis Courts
- Pickleball Courts
- Bocce Ball Courts
- Outdoor Patio
- Pet Park
- Golf Practice Facilities/Putting Green
- Multipurpose Room
- Gazebo
There are plenty of activities available in Four Seasons at Orlando. Here is a sample of some of the clubs, activities and classes offered here.
- Arts & Crafts Clubs
- Biking
- Billiards
- Bocce
- Card Games
- Fitness Classes
- Golf
- Holiday Parties
- Pickleball
- Swimming
- Tennis




