- 2 beds
- 2 baths
- 1,418 sq ft
8492 Sw 61st Terrace Rd, Ocala, FL, 34476
Community: Marion Landing
-
Home type
Single family
-
Year built
1996
-
Lot size
7,841 sq ft
-
Price per sq ft
$148
-
Taxes
$1119 / Yr
-
HOA fees
$200 / Mo
-
Last updated
Today
-
Views
17
-
Saves
1
Questions? Call us: (352) 414-4965
Overview
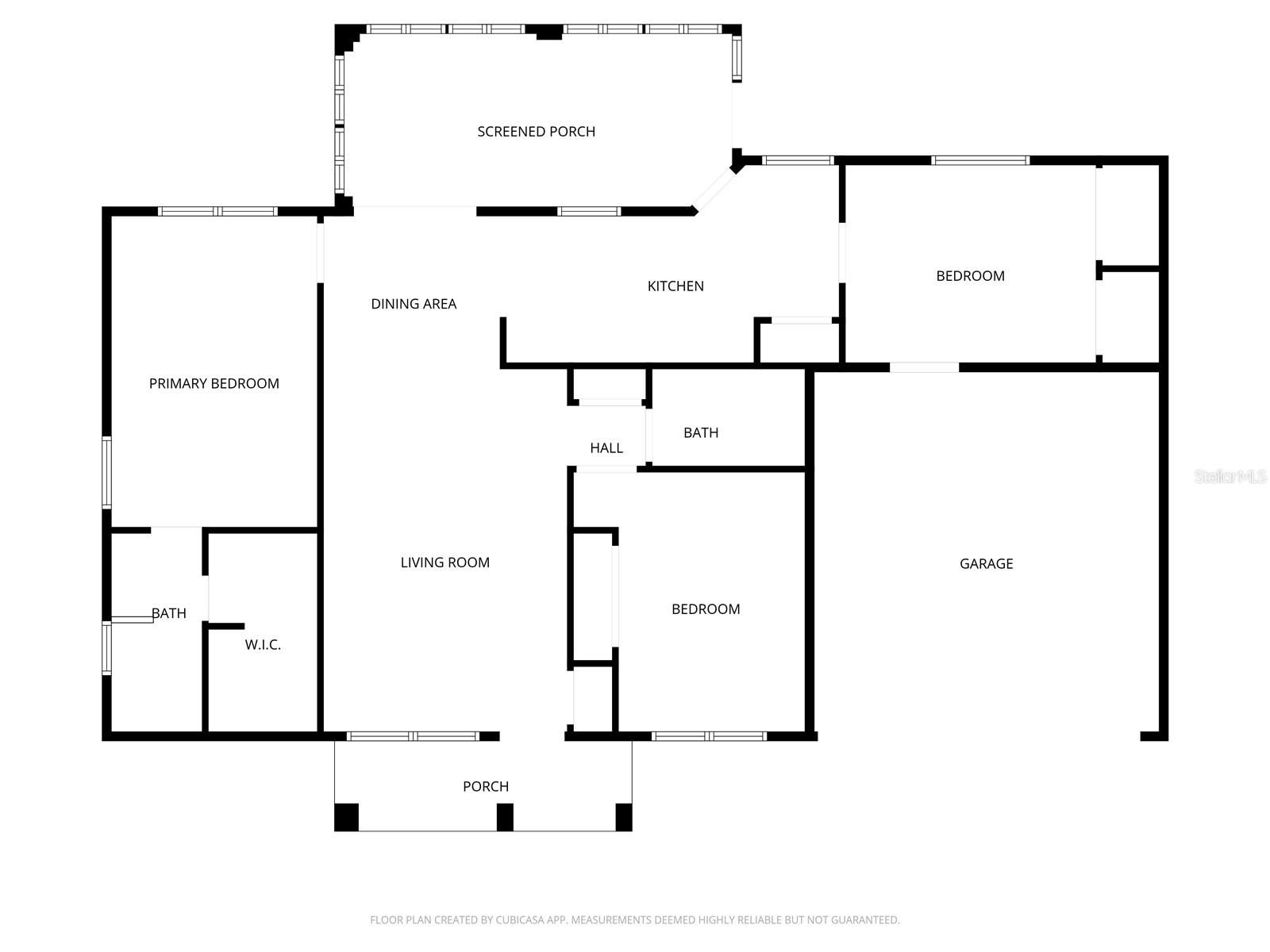
Welcome to Marion Landing. This block and stucco home has been thoughtfully designed with 2 bedrooms and 2 bathrooms with over 1400 square feet of living space. Enjoy the high ceilings, split floorplan, and 20x9 Florida room off the back. Between the kitchen and garage there is an additional 13x10 bonus room for your hobbies and storage needs - also where you can find the inside laundry. The kitchen offers a large pantry, quaint breakfast nook, and solar tube for added natural light. The well-appointed primary suite measures 16x11 and is equipped with a 3-piece bath as well as walk in closet. Opposite of the primary you will find bed 2 (measures 13x10) and bath 2. Marion Landing is an amenity rich community featuring a clubhouse, pool, pickleball, fitness center, and its own BOWLING ALLEY. This property is located less than 2 miles to the Publix and Freedom Library. You are within 5 miles to two hospitals as well as many restaurants, retail stores, and more. Roof was done in 2012 and HVAC in 2018.
Interior
Appliances
- Dishwasher, Disposal, Dryer, Microwave, Range, Refrigerator, Washer
Bedrooms
- Bedrooms: 2
Bathrooms
- Total bathrooms: 2
- Full baths: 2
Laundry
- Inside
Cooling
- Central Air
Heating
- Heat Pump
Features
- Ceiling Fan(s), Eat-in Kitchen, Split Bedrooms, Walk-In Closet(s)
Levels
- One
Size
- 1,418 sq ft
Exterior
Private Pool
- No
Roof
- Shingle
Garage
- Attached
- Garage Spaces: 2
Carport
- None
Year Built
- 1996
Lot Size
- 0.18 acres
- 7,841 sq ft
Waterfront
- No
Water Source
- Public
Sewer
- Public Sewer
Community Info
HOA Information
- Association Fee: $200
- Association Fee Frequency: Monthly
- Association Fee Includes: Clubhouse, Fitness Center, Pickleball, Pool, Recreation Facilities, Shuffleboard Court, Pool(s), Recreation Facilities, Sewer, Trash, Water
Taxes
- Annual amount: $1,119.00
- Tax year: 2025
Senior Community
- Yes
Location
- City: Ocala
- County/Parrish: Marion
- Township: 16S
Listing courtesy of: Courtney Forrest, RE/MAX PREMIER REALTY, 352-732-3222
MLS ID: OM720676
Listings courtesy of Stellar MLS as distributed by MLS GRID. Based on information submitted to the MLS GRID as of Mar 14, 2026, 02:49am PDT. All data is obtained from various sources and may not have been verified by broker or MLS GRID. Supplied Open House Information is subject to change without notice. All information should be independently reviewed and verified for accuracy. Properties may or may not be listed by the office/agent presenting the information. Properties displayed may be listed or sold by various participants in the MLS.
Marion Landing Real Estate Agent
Want to learn more about Marion Landing?
Here is the community real estate expert who can answer your questions, take you on a tour, and help you find the perfect home.
Get started today with your personalized 55+ search experience!
Want to learn more about Marion Landing?
Get in touch with a community real estate expert who can answer your questions, take you on a tour, and help you find the perfect home.
Get started today with your personalized 55+ search experience!
Homes Sold:
55+ Homes Sold:
Sold for this Community:
Avg. Response Time:
Community Key Facts
Age Restrictions
- 55+
Amenities & Lifestyle
- See Marion Landing amenities
- See Marion Landing clubs, activities, and classes
Homes in Community
- Total Homes: 600
- Home Types: Single-Family
Gated
- No
Construction
- Construction Dates: 1980 - 2004
- Builder: D.R. Horton
Similar homes in this community
Popular cities in Florida
The following amenities are available to Marion Landing - Ocala, FL residents:
- Clubhouse/Amenity Center
- Fitness Center
- Outdoor Pool
- Arts & Crafts Studio
- Ballroom
- Billiards
- Bowling
- Tennis Courts
- Bocce Ball Courts
- Shuffleboard Courts
- Lakes - Fishing Lakes
- R.V./Boat Parking
- Outdoor Patio
There are plenty of activities available in Marion Landing. Here is a sample of some of the clubs, activities and classes offered here.
- Bocce Ball
- Bowling
- Cards
- Dancing
- Fishing
- Fitness Classes
- Shuffleboard
- Swimming
- Tennis
- Weekly Social Events
- Zumba




