-
Home type
Ranch
-
Year built
1996
-
Lot size
5,227 sq ft
-
Price per sq ft
$233
-
Taxes
$4894 / Yr
-
HOA fees
$252 / Mo
-
Last updated
Today
-
Views
14
-
Saves
2
Questions? Call us: (848) 301-2215
Overview
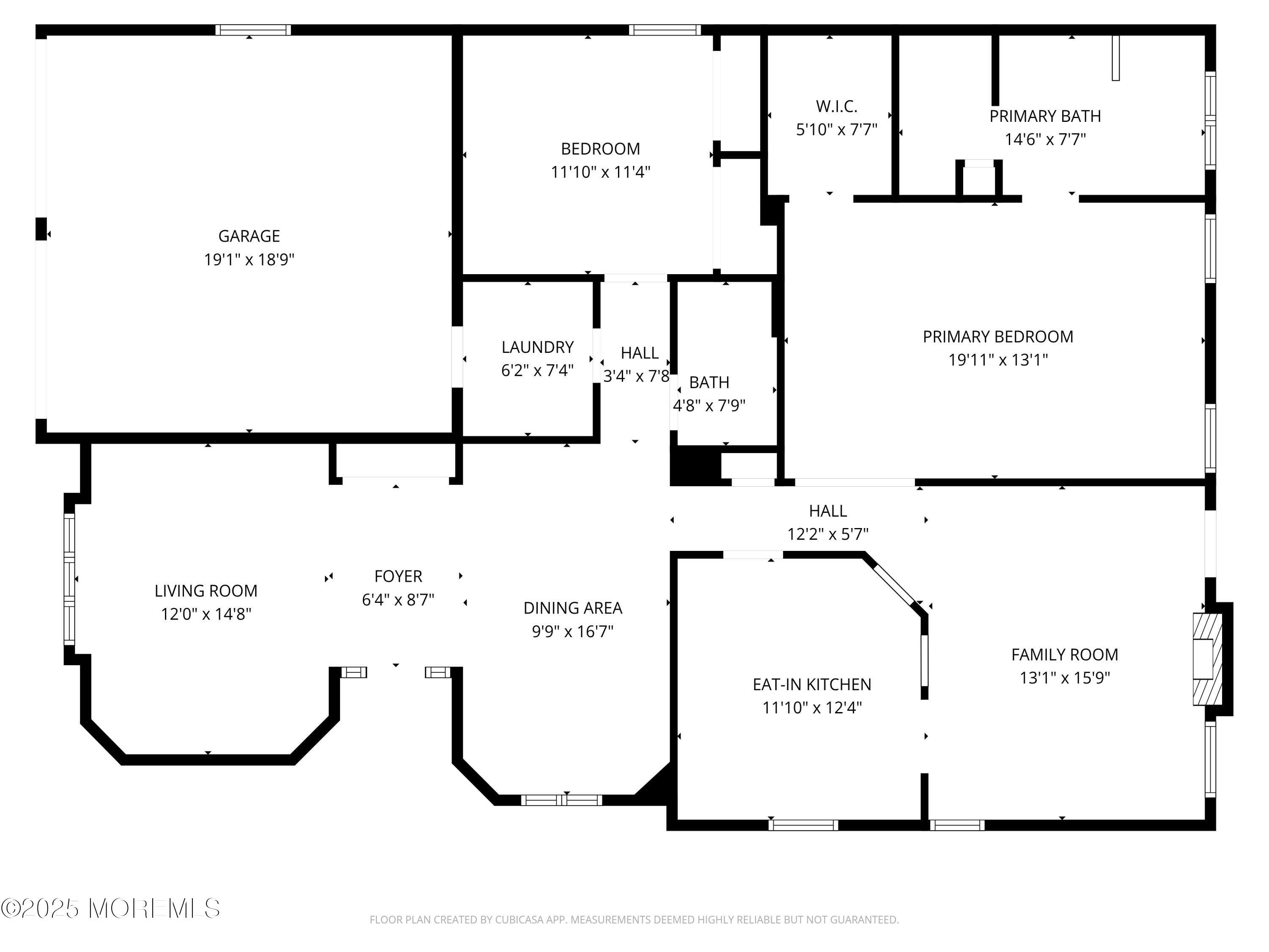
Welcome to the desirable Westwood model, featuring a new roof and brand-new heating and air-conditioning system, both installed in 2024! As you enter, you'll immediately notice the inviting formal living room and formal dining room, perfect for entertaining or quiet gatherings. Step into your spacious eat-in kitchen, offering plenty of cabinetry and natural light. Adjacent to the kitchen is a comfortable family room featuring a cozy gas fireplace and a french door leading to your private balcony—the perfect spot to unwind while enjoying peaceful views of the trees and ultimate privacy. This home offers two generous bedrooms and two full bathrooms, including a well-appointed primary suite. You'll also appreciate the large laundry room with direct access to your two-car garage for added convenience. With its ideal layout and tranquil setting, this Westwood model is ready to welcome you home.
Interior
Bedrooms
- Bedrooms: 2
Bathrooms
- Total bathrooms: 2
- Full baths: 2
Cooling
- Central Air
Heating
- Natural Gas, Forced Air
Features
- Attic - Pull Down Stairs
Size
- 1,612 sq ft
Exterior
Private Pool
- No
Patio & Porch
- Patio
Roof
- Shingle
Garage
- Garage Spaces: 2
- Direct Access
- Double Wide Drive
- Oversized
Carport
- None
Year Built
- 1996
Lot Size
- 0.12 acres
- 5,227 sq ft
Waterfront
- No
Water Source
- Public
Sewer
- Public Sewer
Community Info
HOA Fee
- $252
- Frequency: Monthly
- Includes: Tennis Court(s), Shuffleboard Court, Controlled Access, Association, Swimming, Clubhouse, Bocci
Taxes
- Annual amount: $4,894.00
- Tax year: 2025
Senior Community
- Yes
Location
- City: Jackson
- County/Parrish: Ocean
Listing courtesy of: Meghan Anderson, RE/MAX Realty 9 Listing Agent Contact Information: [email protected]
MLS ID: 22532898
© 2026 Monmouth Ocean Regional REALTORS (MORMLS). All rights reserved. The data relating to real estate for sale on this website comes in part from the IDX Program of the Monmouth Ocean Regional REALTORS (MORMLS). The data is deemed reliable but not guranteed accurate by Monmouth Ocean Regional REALTORS (MORMLS). Listing information is intended only for personal, non-commercial use and may not be used for any purpose other than to identify prospective properties consumers may be interested in purchasing.
Winding Ways Real Estate Agent
Want to learn more about Winding Ways?
Here is the community real estate expert who can answer your questions, take you on a tour, and help you find the perfect home.
Get started today with your personalized 55+ search experience!
Want to learn more about Winding Ways?
Get in touch with a community real estate expert who can answer your questions, take you on a tour, and help you find the perfect home.
Get started today with your personalized 55+ search experience!
Homes Sold:
55+ Homes Sold:
Sold for this Community:
Avg. Response Time:
Community Key Facts
Age Restrictions
- 55+
Amenities & Lifestyle
- See Winding Ways amenities
- See Winding Ways clubs, activities, and classes
Homes in Community
- Total Homes: 554
- Home Types: Single-Family
Gated
- Yes
Construction
- Construction Dates: 1988 - 1997
- Builder: U.S. Homes
Similar homes in this community
Popular cities in New Jersey
The following amenities are available to Winding Ways - Jackson, NJ residents:
- Clubhouse/Amenity Center
- Fitness Center
- Outdoor Pool
- Hobby & Game Room
- Card Room
- Arts & Crafts Studio
- Ballroom
- Library
- Billiards
- Walking & Biking Trails
- Tennis Courts
- Bocce Ball Courts
- Shuffleboard Courts
- Horseshoe Pits
- Outdoor Patio
- Multipurpose Room
There are plenty of activities available in Winding Ways. Here is a sample of some of the clubs, activities and classes offered here.
- Billiards
- Bingo
- Bocce
- Bowling
- Bridge
- Canasta
- Cards
- Cultural Club
- Fitness
- Golf
- Holiday Parties
- Horseshoes
- Italian American Club
- Mah Jongg
- Music Club
- Needlework Group
- Pinochle
- Planned Trips
- Poker
- Red Hats
- Rummy
- Shuffleboard
- Single's Club
- Table Tennis
- Travel Club
- Yiddish Heritage Club




