-
Home type
Mobile home
-
Year built
1983
-
Lot size
7,048 sq ft
-
Price per sq ft
$177
-
Taxes
$1131 / Yr
-
HOA fees
$154 / Mo
-
Last updated
Today
-
Views
16
-
Saves
1
Questions? Call us: (520) 666-6949
Overview
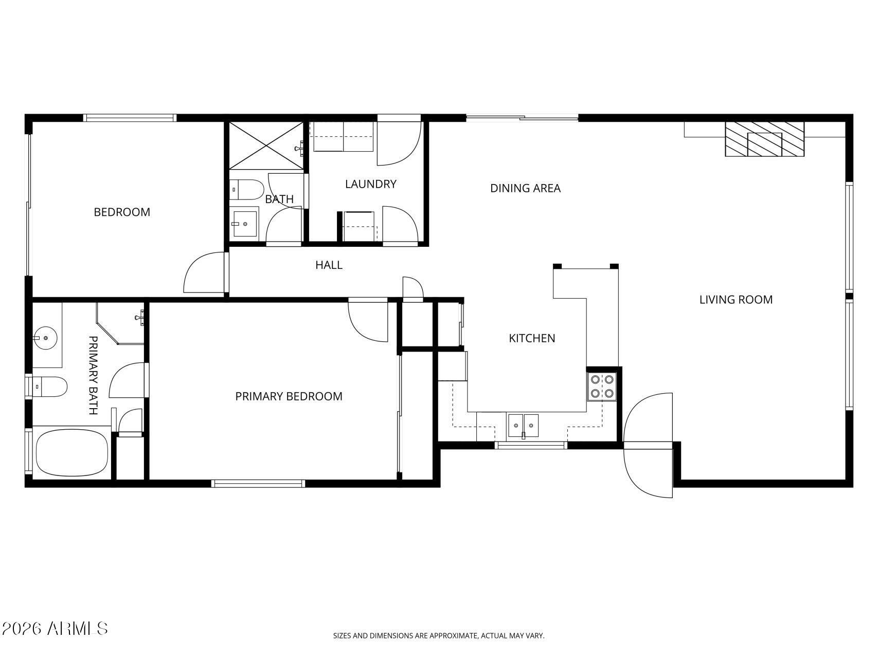
Welcome to your warm weather retreat in Sun Lakes, Arizona, one of the most sought after active adult resort communities in the Southeast Valley. This manufactured move in ready home offers high ceilings, open & airy layout, & a clean warm feel that is bright & welcoming from the moment you enter. The spacious living areas flow easily into the kitchen and dining space, creating an ideal setting for relaxed everyday living or hosting friends. Two well sized bedrooms and two baths provide comfort and privacy, while the home's condition makes it easy to arrive, unpack, & enjoy. Offered fully furnished, this is an ideal winter getaway, seasonal residence, or low maintenance Arizona home designed for comfort, lifestyle, and ease. Outdoor living offers full length covered patio, huge storage... large covered carport and easy walk to Sun Lakes clubhouse, pools, golf courses, tennis and pickleball courts, pitch and put course, lakes, and walking paths, the home offers easy access to everything Sun Lakes is known for. Enjoy multiple clubhouses, restaurants and bars, fitness centers, craft rooms, social clubs, stocked fishing lakes, and miles of scenic paths. Sun Lakes is a gated 55 plus resort style community with several country club neighborhoods, championship and executive golf courses, and a vibrant social calendar. Conveniently located near Chandler Fashion Center, Intel, shopping, dining, healthcare, and major freeways including I 10, Loop 101, and Loop 202, with Phoenix Sky Harbor approximately 20 minutes away. Whether you are seeking a winter escape, second home, or full time residence, this home offers comfort, community, and the best of Arizona living.
Interior
Bedrooms
- Bedrooms: 2
Bathrooms
- Total bathrooms: 2
- Full baths: 2
Cooling
- Central Air
Heating
- Other
Fireplace
- 1
Features
- Breakfast Bar, No Interior Steps, Vaulted Ceiling(s), Full Bth Master Bdrm, Separate Shwr & Tub, Laminate Counters
Size
- 1,354 sq ft
Exterior
Private Pool
- No
Patio & Porch
- Covered Patio(s)
Roof
- Other
Garage
- None
Carport
- Carport Spaces: 2
Year Built
- 1983
Lot Size
- 0.16 acres
- 7,048 sq ft
Waterfront
- No
Water Source
- Pvt Water Company
Sewer
- Private Sewer
Community Info
HOA Fee
- $154
- Frequency: Monthly
Taxes
- Annual amount: $1,131.00
- Tax year: 2025
Senior Community
- No
Features
- Pool, Golf, Lake, Community Spa Htd, Community Media Room, Concierge, Tennis Court(s), Fitness Center
Location
- City: Sun Lakes
- County/Parrish: Maricopa
- Township: 2S
Listing courtesy of: Laura Myers, Keller Williams Arizona Realty Listing Agent Contact Information: 480-600-6213
MLS ID: 6971926
Copyright 2026 Arizona Regional Multiple Listing Service, Inc. All rights reserved. The ARMLS logo indicates a property listed by a real estate brokerage other than 55places.com. All information should be verified by the recipient and none is guaranteed as accurate by ARMLS.
Sun Lakes Real Estate Agent
Want to learn more about Sun Lakes?
Here is the community real estate expert who can answer your questions, take you on a tour, and help you find the perfect home.
Get started today with your personalized 55+ search experience!
Want to learn more about Sun Lakes?
Get in touch with a community real estate expert who can answer your questions, take you on a tour, and help you find the perfect home.
Get started today with your personalized 55+ search experience!
Homes Sold:
55+ Homes Sold:
Sold for this Community:
Avg. Response Time:
Community Key Facts
Age Restrictions
- 55+
Amenities & Lifestyle
- See Sun Lakes amenities
- See Sun Lakes clubs, activities, and classes
Homes in Community
- Total Homes: 6,683
- Home Types: Single-Family, Attached, Manufactured
Gated
- No
Construction
- Construction Dates: 1972 - 2006
- Builder: Cavco, Robson Communities, Custom, Palm Harbor, Robson
Similar homes in this community
Popular cities in Arizona
The following amenities are available to Sun Lakes - Sun Lakes, AZ residents:
- Clubhouse/Amenity Center
- Golf Course
- Restaurant
- Fitness Center
- Outdoor Pool
- Aerobics & Dance Studio
- Hobby & Game Room
- Ballroom
- Computers
- Walking & Biking Trails
- Tennis Courts
- Bocce Ball Courts
- Lakes - Fishing Lakes
- Parks & Natural Space
- Outdoor Patio
- Racquetball Courts
- Handball Courts
- Multipurpose Room
There are plenty of activities available in Sun Lakes. Here is a sample of some of the clubs, activities and classes offered here.
- Art League
- Ballroom Dance
- Barbershop Harmony
- Berevement/Hospice
- Bible Study
- Big Band Dance
- Bingo
- Bowling League
- Breast Cancer Support
- Bunco
- Canasta
- Chorale
- Country Western Dance
- Friendship Club
- Genealogical Society
- International Culture
- Knitters
- Ladies Golf
- Men's Golf
- Parkinson's Support
- Pinochle
- Quilters
- Rummikub
- Sew What?




