- 2 beds
- 2 baths
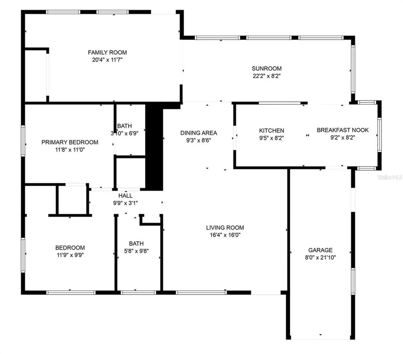
- 1,578 sq ft
9082 141st St, Seminole, FL, 33776
Community: Tamarac By The Gulf
-
Home type
Single family
-
Year built
1968
-
Lot size
6,003 sq ft
-
Price per sq ft
$253
-
Taxes
$1652 / Yr
-
HOA fees
$263 / Mo
-
Last updated
3 days ago
Questions? Call us: (727) 353-6948
Overview
MOTIVATED SELLER, BRING US YOUR OFFER and Discover EASY, LOW-MAINTENANCE LIVING in this 2-bedroom, 2-bath home with a VERSATILE BONUS ROOM that could serve as a THIRD BEDROOM, office, or hobby space - this is a modified SKIPPER MODEL. LOCATION! Located DIRECTLY ACROSS FROM THE CLUBHOUSE, you'll have convenient access to the community activities, social events, shuffleboard, and the HEATED POOL. LOCATION, LOCATION - Enjoy PEACEFUL GREEN SPACE WITH NO REAR NEIGHBORS, offering a serene backyard retreat. The $263 a month HOA fee covers ROOF and HOUSE PAINTING every 9 years, along with WATER, SEWER, TRASH, and LAWN CARE, making homeownership truly HASSLE-FREE. This home features a RARE EAT-IN KITCHEN with lots of cabinets and counter space perfect for casual dining. Recent updates include a New electrical Panel, Dishwasher, and HVAC within the last 2 years. The Barrel Tile Roof, installed in 2010, has years of remaining life left. The One-car garage has an attic spacious enough to stand up, providing excellent storage options along with the built-in cabinets. The FURNITURE IS OPTIONAL, allowing for a Move-in-ready experience or a space to make your own. LOCATED just minutes from the beaches, yet NO FLOOD INSURANCE IS REQUIRED. LOCATED in an extremely Active 55 community makes this an ideal opportunity for your primary residence or your lock-and-go second home. Probate is now completed, and it's ready for its new owner.
Interior
Appliances
- Dishwasher, Disposal, Range, Refrigerator
Bedrooms
- Bedrooms: 2
Bathrooms
- Total bathrooms: 2
- Full baths: 2
Laundry
- In Garage
Cooling
- Central Air
Heating
- Central, Electric
Fireplace
- None
Features
- Ceiling Fan(s), Eat-in Kitchen, Living/Dining Room, Open Floorplan, Main Level Primary, Window Treatments
Levels
- One
Size
- 1,578 sq ft
Exterior
Private Pool
- No
Patio & Porch
- Covered, Front Porch, Patio, Rear Porch
Roof
- Concrete,Tile
Garage
- Attached
- Garage Spaces: 1
- Driveway
- Garage Door Opener
Carport
- None
Year Built
- 1968
Lot Size
- 0.14 acres
- 6,003 sq ft
Waterfront
- No
Water Source
- Public
Sewer
- Public Sewer
Community Info
HOA Fee
- $263
- Frequency: Monthly
- Includes: Cable TV, Clubhouse, Maintenance, Pool, Recreation Facilities, Shuffleboard Court, Trail(s)
Taxes
- Annual amount: $1,652.06
- Tax year: 2024
Senior Community
- Yes
Features
- Clubhouse, Deed Restrictions, Golf Carts Permitted, Park, Pool, Sidewalks, Special Community Restrictions, Street Lights
Location
- City: Seminole
- County/Parrish: Pinellas
- Township: 30
Listing courtesy of: Sheri Ragsdale, RAGSDALE RESIDENTIAL REALTY, 727-742-3789
MLS ID: TB8364123
Listings courtesy of Stellar MLS as distributed by MLS GRID. Based on information submitted to the MLS GRID as of Nov 30, 2025, 11:38pm PST. All data is obtained from various sources and may not have been verified by broker or MLS GRID. Supplied Open House Information is subject to change without notice. All information should be independently reviewed and verified for accuracy. Properties may or may not be listed by the office/agent presenting the information. Properties displayed may be listed or sold by various participants in the MLS.
Tamarac By The Gulf Real Estate Agent
Want to learn more about Tamarac By The Gulf?
Here is the community real estate expert who can answer your questions, take you on a tour, and help you find the perfect home.
Get started today with your personalized 55+ search experience!
Want to learn more about Tamarac By The Gulf?
Get in touch with a community real estate expert who can answer your questions, take you on a tour, and help you find the perfect home.
Get started today with your personalized 55+ search experience!
Homes Sold:
55+ Homes Sold:
Sold for this Community:
Avg. Response Time:
Community Key Facts
Age Restrictions
- 55+
Amenities & Lifestyle
- See Tamarac By The Gulf amenities
- See Tamarac By The Gulf clubs, activities, and classes
Homes in Community
- Total Homes: 386
- Home Types: Single-Family
Gated
- No
Construction
- Construction Dates: 1968 - 1969
Similar homes in this community
Popular cities in Florida
The following amenities are available to Tamarac By The Gulf - Seminole, FL residents:
- Clubhouse/Amenity Center
- Outdoor Pool
- Hobby & Game Room
- Billiards
- Shuffleboard Courts
- Horseshoe Pits
- Demonstration Kitchen
- Table Tennis
- Outdoor Patio
- Picnic Area
- Multipurpose Room
- Misc.
- BBQ
There are plenty of activities available in Tamarac By The Gulf. Here is a sample of some of the clubs, activities and classes offered here.
- Aerobics
- Arts & Crafts
- Beach Walk Outings
- Book Club
- Bridge
- Bunco
- Coffee & Donuts
- Game Nights
- Golf Outings
- Horseshoes
- Line Dancing
- Lunch Bunch
- Mahjong
- Music Jam Sessions
- Pancake Breakfast
- Pinochle
- Pool Exercise
- Shuffleboard
- Table Tennis
- Women's Bible Study
- Yoga



