-
Home type
Manufactured home
-
Year built
1973
-
Lot size
5,227 sq ft
-
Price per sq ft
$119
-
Taxes
$1852 / Yr
-
Last updated
Today
-
Views
4
Questions? Call us: (239) 399-5458
Overview
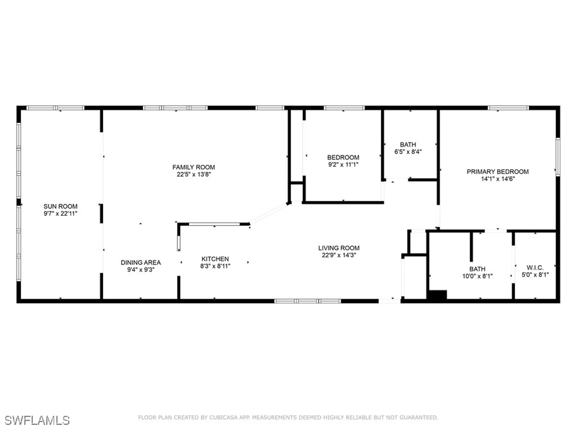
Lot behind is included in the sale! Turnkey 2-bedroom, 2-bath manufactured home with 1,584 sq. ft. of living space located on a quiet cul-de-sac in Riviera Colony, a 55+ community in Naples. This residence offers a functional floor plan with an attached carport, screened lanai, and a paver patio for outdoor enjoyment. The kitchen, updated in 2018, features plenty of cabinet space, a breakfast area with high-top seating, and a built-in desk. The dining room includes a built-in china cabinet, while the spacious living room comes furnished with sofas, recliner, and accent furniture. The large primary suite includes an ensuite bath with dual vanities. A secondary bedroom and bath provide space for guests, along with a second living area already set up with additional beds. A storage shed and shop are conveniently located off the lanai for hobbies or extra storage. Additional updates include a hot water tank (2019), A/C (2020), and ceiling fans throughout. Community amenities include a clubhouse, pool, community room, and shuffleboard. Situated just minutes from Route 41, this home offers easy access to Naples’ shopping, dining, and entertainment.
Interior
Appliances
- Dishwasher, Freezer, Range, Refrigerator
Bedrooms
- Bedrooms: 2
Bathrooms
- Total bathrooms: 2
- Full baths: 2
Cooling
- Central Air, Ceiling Fan(s), Electric
Heating
- Central, Electric
Fireplace
- None
Features
- Built-in Features, Coffered Ceiling(s), Dual Sinks, Living/Dining Room, Cable TV, Split Bedrooms
Size
- 1,584 sq ft
Exterior
Private Pool
- No
Patio & Porch
- Lanai, Patio, Porch, Screened
Roof
- Metal
Garage
- None
Carport
- Carport Spaces: 1
- Covered
- Driveway
- Paved
- AttachedCarport
Year Built
- 1973
Lot Size
- 0.12 acres
- 5,227 sq ft
Waterfront
- No
Water Source
- Public
Sewer
- Public Sewer
Community Info
Taxes
- Annual amount: $1,851.92
- Tax year: 2024
Senior Community
- Yes
Listing courtesy of: Frank Procopio, William Raveis Real Estate Listing Agent Contact Information: [email protected]
MLS ID: 225068358
Copyright 2025 Southwest Florida MLS. All rights reserved. Information deemed reliable but not guaranteed. The data relating to real estate for sale on this website comes in part from the IDX Program of the Southwest Florida Association of Realtors. Real estate listings held by brokerage firms other than 55places.com are marked with the Broker Reciprocity logo and detailed information about them includes the name of the listing broker.
Riviera Golf Estates Real Estate Agent
Want to learn more about Riviera Golf Estates?
Here is the community real estate expert who can answer your questions, take you on a tour, and help you find the perfect home.
Get started today with your personalized 55+ search experience!
Want to learn more about Riviera Golf Estates?
Get in touch with a community real estate expert who can answer your questions, take you on a tour, and help you find the perfect home.
Get started today with your personalized 55+ search experience!
Homes Sold:
55+ Homes Sold:
Sold for this Community:
Avg. Response Time:
Community Key Facts
Age Restrictions
- 55+
Amenities & Lifestyle
- See Riviera Golf Estates amenities
- See Riviera Golf Estates clubs, activities, and classes
Homes in Community
- Total Homes: 700
- Home Types: Condos, Single-Family
Gated
- No
Construction
- Construction Dates: 1967 - 2003
- Builder: Winfield Companies
Similar homes in this community
Popular cities in Florida
The following amenities are available to Riviera Golf Estates - Naples, FL residents:
- Clubhouse/Amenity Center
- Golf Course
- Fitness Center
- Outdoor Pool
- Card Room
- Arts & Crafts Studio
- Computers
- Library
- Billiards
- Walking & Biking Trails
- Tennis Courts
- Bocce Ball Courts
- Shuffleboard Courts
- Lakes - Scenic Lakes & Ponds
- Demonstration Kitchen
- Outdoor Patio
- Picnic Area
- Multipurpose Room
There are plenty of activities available in Riviera Golf Estates. Here is a sample of some of the clubs, activities and classes offered here.
- Art Classes
- Aquatic Exercises
- Bocce
- Bingo
- Bowling
- Bridge
- Chorus
- Computer Club
- Car Cruising Club
- Dominoes
- Euchre
- Genealogy Club
- Exercise Class
- Golf
- Line Dancing
- Men's Club
- Pickleball
- Pinochle
- Pocket Billiards
- Riviera Readers
- Shuffleboard
- Swimming
- Tennis
- Water Aerobics




