• Home type

    Single family

  • Year built

    1997

  • Lot size

    13,068 sq ft

  • Price per sq ft

    $190

  • Taxes

    $966 / Yr

  • HOA fees

    $198 / Mo

  • Last updated

    Today

  • Views

    31

  • Saves

    7


Questions? Call us: (352) 414-5765


Overview

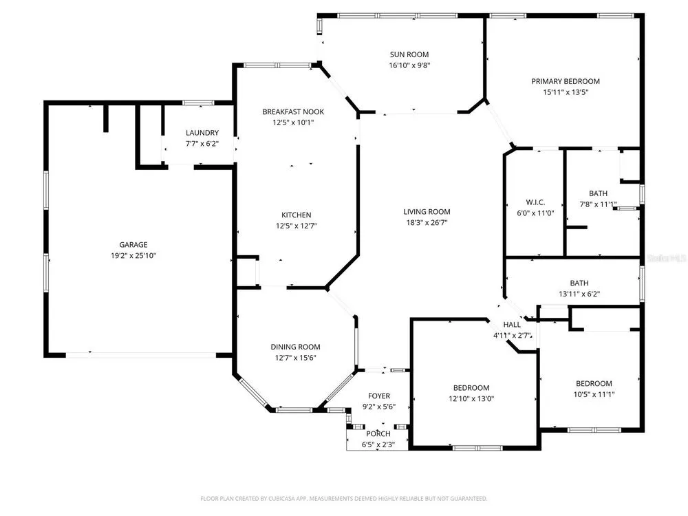
Welcome home to your little sanctuary tucked along the edge of a preserve, the Marjorie Harris Carr Cross Florida Greenway, where peaceful mornings and golden sunsets paint the backdrop of your days. This enchanting San Antonio floorplan residence sits gracefully on an comfortable .30-acre cul-de-sac lot, surrounded by nature and gentle breezes. Step inside to discover 3 spacious bedrooms, 2 bathrooms, and a 2-car garage, where comfort and elegance blend effortlessly. The kitchen offers abundant cabinetry, a cozy breakfast nook, and a view that makes every cup of coffee feel like a moment of escape. A formal dining room and sun-filled bonus room with sliding glass windows provide the perfect settings for gathering, relaxing, or simply enjoying the view. The primary suite invites serenity with its walk-in closet, updated step-in shower with glass doors, and a double-sink vanity. Throughout the home, thoughtful details abound—tray ceiling, glass block accents, recessed lighting, updated fixtures, and modern hardware that add a touch of refinement to every space. Outdoors, your fenced backyard opens to the beauty of the Preserve. Enjoy your own private 12x12 paver patio, perfect for quiet evenings under the stars or morning coffee while watching deer wander by. With a newer roof (2022), this home offers both charm and peace of mind. Life in Oak Run Country Club is rich with activity and community. Enjoy 6 swimming pools, 5 whirlpools, tennis and pickleball courts, a driving range, fitness centers, a library, craft and billiard rooms, and the Oak Room Bar & Grill restaurant. Oak Run also offers an 18-hole golf course and a variety of clubs to match every interest. With a state-of-the-art virtual guard system at the gates and a monthly service fee that includes trash pickup, yard debris, basic cable, and access to amenities, this community offers a lifestyle that’s as carefree as it is captivating. Set your appointment today to see this lovely home - this is the lifestyle you’ve been dreaming of.


Interior

Appliances

  • Dryer, Range, Range Hood, Washer

Bedrooms

  • Bedrooms: 3

Bathrooms

  • Total bathrooms: 2
  • Full baths: 2

Laundry

  • Laundry Room

Cooling

  • Central Air

Heating

  • Central

Fireplace

  • None

Features

  • Ceiling Fan(s), Eat-in Kitchen, High Ceilings, Main Level Primary, Vaulted Ceiling(s), Walk-In Closet(s)

Levels

  • One

Size

  • 1,670 sq ft

Exterior

Private Pool

  • No

Roof

  • Shingle

Garage

  • Attached
  • Garage Spaces: 2

Carport

  • None

Year Built

  • 1997

Lot Size

  • 0.3 acres
  • 13,068 sq ft

Waterfront

  • No

Water Source

  • Public

Sewer

  • Public Sewer

Community Info

HOA Fee

  • $198
  • Frequency: Monthly

Taxes

  • Annual amount: $966.19
  • Tax year: 2024

Senior Community

  • Yes

Location

  • City: Ocala
  • County/Parrish: Marion
  • Township: 16S

Listing courtesy of: Julie Beck, KELLER WILLIAMS CORNERSTONE RE, 352-369-4044

Source: Stellar
MLS ID: OM711379

Stellar

Listings courtesy of Stellar MLS as distributed by MLS GRID. Based on information submitted to the MLS GRID as of Oct 14, 2025, 08:43pm PDT. All data is obtained from various sources and may not have been verified by broker or MLS GRID. Supplied Open House Information is subject to change without notice. All information should be independently reviewed and verified for accuracy. Properties may or may not be listed by the office/agent presenting the information. Properties displayed may be listed or sold by various participants in the MLS.


Oak Run Real Estate Agent

Want to learn more about Oak Run?

Here is the community real estate expert who can answer your questions, take you on a tour, and help you find the perfect home.

Get started today with your personalized 55+ search experience!

Want to learn more about Oak Run?

Get in touch with a community real estate expert who can answer your questions, take you on a tour, and help you find the perfect home.

Get started today with your personalized 55+ search experience!

Homes Sold:

55+ Homes Sold:

Sold for this Community:

Avg. Response Time:

Global - Lead Form - Buyer Only
*55places does not provide or maintain community HOA information.
By requesting more information, you agree that 55places placeholder may call, text, or email you about your inquiry, which may be made with automated means (including recorded voice messages, SMS, or text messages). You understand that your consent is not a prerequisite for buying, selling or renting a property. You may revoke your consent at any time by contacting [email protected]. Message/data rates may apply. You also agree to 55places.com's Privacy Policy and Terms of Use.

Community Key Facts

Oak Run

Age Restrictions

  • 55+

Amenities & Lifestyle

  • See Oak Run amenities
  • See Oak Run clubs, activities, and classes

Homes in Community

  • Total Homes: 3,509
  • Home Types: Single-Family, Attached

Gated

  • Yes

Construction

  • Construction Dates: 1985 - 2007
  • Builder: Decca

Similar homes in this community Oak Run

$249,900
2 Beds | 2 Baths | 1178 Sq. Ft.
MLS #OM711425
Decca Real Estate, Sherri Driggers
$199,900
2 Beds | 2 Baths | 1232 Sq. Ft.
MLS #O6351497
Leerdam Properties Inc., Philip Shaw
$174,900
2 Beds | 2 Baths | 960 Sq. Ft.
MLS #OM711114
Tct Realty Group Llc, Romel Camacho

Oak Run Real Estate Agent

Want to learn more about Oak Run?

Here is the community real estate expert who can answer your questions, take you on a tour, and help you find the perfect home.

Get started today with your personalized 55+ search experience!

Want to learn more about Oak Run?

Get in touch with a community real estate expert who can answer your questions, take you on a tour, and help you find the perfect home.

Get started today with your personalized 55+ search experience!

Homes Sold:

55+ Homes Sold:

Sold for this Community:

Avg. Response Time:

Global - Lead Form - Buyer Only
*55places does not provide or maintain community HOA information.
By requesting more information, you agree that 55places placeholder may call, text, or email you about your inquiry, which may be made with automated means (including recorded voice messages, SMS, or text messages). You understand that your consent is not a prerequisite for buying, selling or renting a property. You may revoke your consent at any time by contacting [email protected]. Message/data rates may apply. You also agree to 55places.com's Privacy Policy and Terms of Use.

Agent Image
 

Community Expert

Call Us Call Us
Scroll to Top