-
Home type
Single family
-
Year built
1990
-
Lot size
20,909 sq ft
-
Price per sq ft
$192
-
Taxes
$1941 / Yr
-
HOA fees
$363 / Mo
-
Last updated
2 days ago
-
Views
4
-
Saves
3
Questions? Call us: (865) 205-1079
Overview
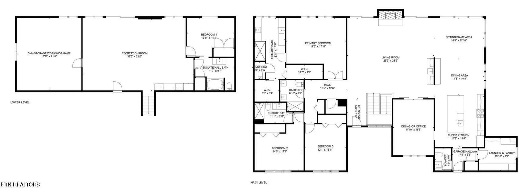
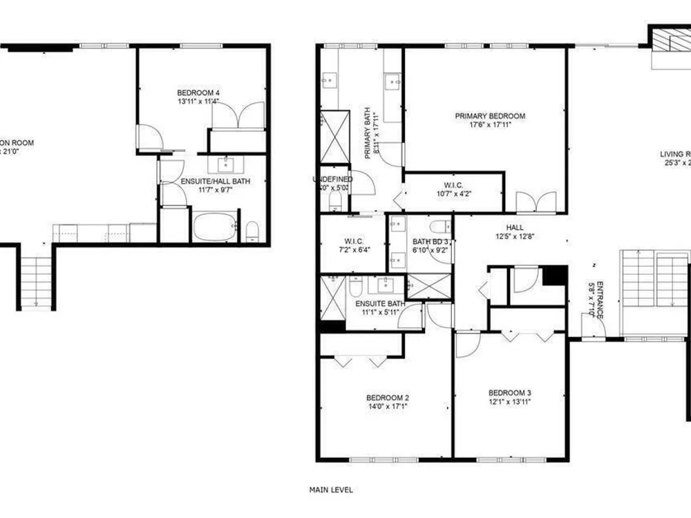
This elegant 3,100 sq ft main floor living home, with a finished lower level, has undergone a transformational $400K renovation. Everything is done! Enter to vaulted ceilings, hardwood floors, and abundant natural light from walls overlooking the expansive deck, private yard, and lake views. The spacious great room features a welcoming foyer, gas fireplace, and walk-up bar with hardwoods throughout. It adjoins a vaulted room that can serve as a formal dining room or office. The gourmet country kitchen boasts a huge island, Quartz countertops, high-capacity and luxury appliances, and undercounter/toekick lighting. Adjacent are the laundry/pantry and powder rooms, and garage with built-in storage. The other side of the house includes 3 bedrooms and 3 bathrooms, with 2 ensuites. The primary suite offers dual closets and vanities, a private toilet room and laser-cut marble tile accents. The 1,300 sq ft finished lower level is perfect for entertaining, storage, workshops, or fitness, with an additional ensuite and kitchenette. The home also features an evergreen entrance courtyard, new roof with gutter guards, new/young HVAC and water heater. Enjoy all the amenities and social activities of Tellico Village. Front and side lawns to be hydroseeded in the fall. The adjacent lot, 145 Inata Circle is included with the sale.
Interior
Appliances
- Gas Range, Dishwasher, Microwave, Refrigerator, Self Cleaning Oven
Bedrooms
- Bedrooms: 4
Bathrooms
- Total bathrooms: 5
- Half baths: 1
- Full baths: 4
Cooling
- Central Cooling
Heating
- Central, Forced Air, Heat Pump, Electric
Fireplace
- 1
Features
- Walk-In Closet(s), Cathedral Ceiling(s), Kitchen Island, Wet Bar, Eat-in Kitchen
Exterior
Private Pool
- No
Patio & Porch
- Porch - Covered, Deck
Garage
- Attached
- Garage Spaces: 2
- Off-Street Parking
- Garage Door Opener
- Attached
- Main Level
Carport
- None
Year Built
- 1990
Lot Size
- 0.48 acres
- 20,909 sq ft
Waterfront
- No
Water Source
- Public
Sewer
- Public Sewer
Community Info
HOA Fee
- $363
- Frequency: Monthly
- Includes: Swimming Pool, Tennis Courts, Club House, Golf Course, Playground, Recreation Facilities
Taxes
- Annual amount: $1,941.15
- Tax year:
Senior Community
- No
Location
- City: Loudon
- County/Parrish: Loudon County - 32
Listing courtesy of: Jennifer Cook, Keller Williams Signature
MLS ID: 1318847
IDX information is provided exclusively for consumers' personal, non-commercial use, that it may not be used for any purpose other than to identify prospective properties consumers may be interested in purchasing. Data is deemed reliable but is not guaranteed accurate by the MLS.
Tellico Village Real Estate Agent
Want to learn more about Tellico Village?
Here is the community real estate expert who can answer your questions, take you on a tour, and help you find the perfect home.
Get started today with your personalized 55+ search experience!
Want to learn more about Tellico Village?
Get in touch with a community real estate expert who can answer your questions, take you on a tour, and help you find the perfect home.
Get started today with your personalized 55+ search experience!
Homes Sold:
55+ Homes Sold:
Sold for this Community:
Avg. Response Time:
Community Key Facts
Age Restrictions
Amenities & Lifestyle
- See Tellico Village amenities
- See Tellico Village clubs, activities, and classes
Homes in Community
- Total Homes: 3,375
- Home Types: Single-Family, Attached
Gated
- No
Construction
- Construction Dates: 1987 - Present
- Builder: Multiple Builders
Similar homes in this community
Popular cities in Tennessee
The following amenities are available to Tellico Village - Loudon, TN residents:
- Clubhouse/Amenity Center
- Golf Course
- Restaurant
- Fitness Center
- Indoor Pool
- Outdoor Pool
- Aerobics & Dance Studio
- Indoor Walking Track
- Ballroom
- Tennis Courts
- Pickleball Courts
- Basketball Court
- Lakes - Boat Accessible
- Playground for Grandkids
- Outdoor Patio
- Steam Room/Sauna
- Golf Practice Facilities/Putting Green
- Multipurpose Room
- Gazebo
- Boat Launch
- Locker Rooms
- Beach
- Lounge
- BBQ
There are plenty of activities available in Tellico Village. Here is a sample of some of the clubs, activities and classes offered here.
- Art Guild
- Badminton
- Basketball
- Bead Goes On
- Bible Study
- Birders
- Bluegrass Jam
- Bridge
- Cards
- Carving Club
- Chrysler Retirees
- Community Concerts
- Computer Users
- Crafting
- Cruising Club
- Cycling Club
- Day Trippers
- Dancing
- Digital Photography
- Dog Owners
- Euchre
- Fishing
- Garden Club
- Genealogy
- Herbs
- Hiking
- Kniters
- Ladies Golf
- Line Dancing
- Lions Club
- Mac Users
- Mah Jongg
- Men's Golf
- Motorcycle Club
- Pickleball
- Pinochle
- Quilt Guild
- Racquetball
- Rotary Club
- Rubber Stamp Art
- Soggy Bottom Kayakers
- Solo Club
- Square Dancing
- Stained Glass
- Table Tennis
- Tai Chi
- Tennis Association
- Vintage Vehicles
- Wallyball
- Weight Watchers
- Woodworkers
- Yoga




