- 2 beds
- 2 baths
- 1,857 sq ft
1817 New Bedford Dr, Sun City Center, FL, 33573
Community: Sun City Center
-
Home type
Single family
-
Year built
1987
-
Lot size
10,788 sq ft
-
Price per sq ft
$201
-
Taxes
$5135 / Yr
-
HOA fees
$50 / Annually
-
Last updated
1 day ago
-
Views
3
-
Saves
3
Questions? Call us: (813) 590-4515
Overview
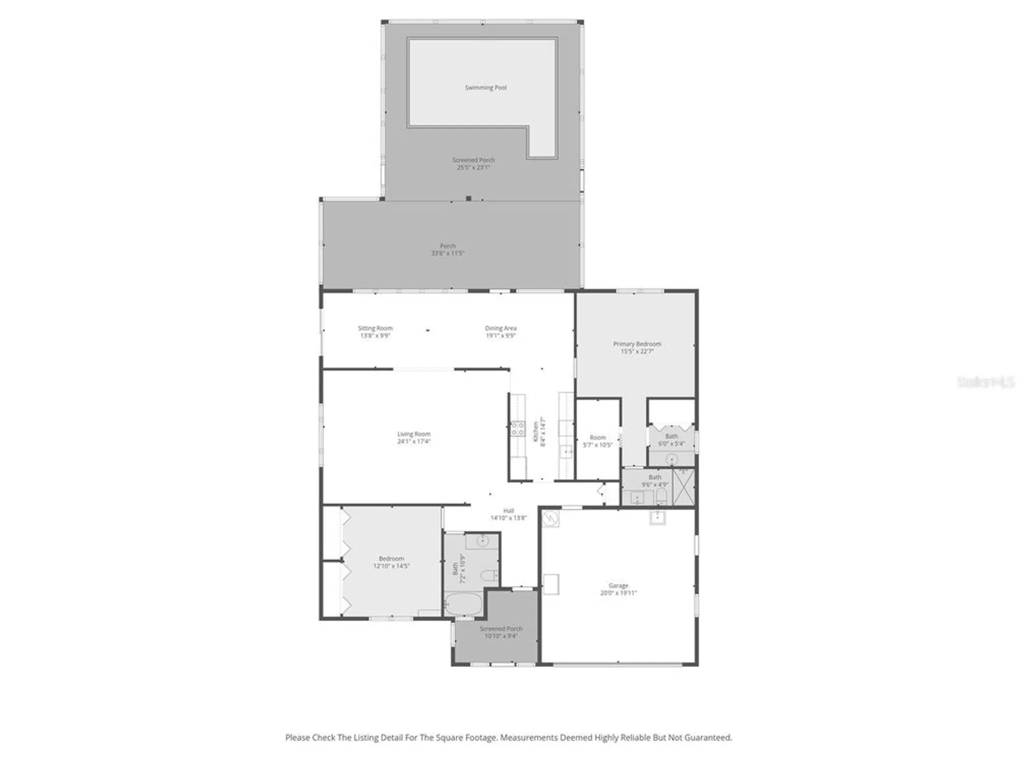
Stunning Pool Home in Sun City Center! Welcome to this fabulous pool home in the highly desirable community of Sun City Center! From the moment you arrive, you’ll be captivated by the beautiful curb appeal, featuring tropical landscaping and a backyard oasis that feels like your very own peaceful retreat — complete with no backyard neighbors. As you approach the home, a covered and screened front porch offers a welcoming sitting area overlooking the lush front yard. Inside, this two-bedroom, two-bath split floor plan provides the ideal layout for comfort and privacy, with spacious bedrooms on opposite sides of the home. The soaring vaulted ceilings and abundant natural light create an open, airy feel throughout the main living areas. The dining room overlooks the incredible 12’ x 20’ heated saltwater pool and expansive covered lanai, offering nearly 1,000 square feet of screened outdoor living space—perfect for entertaining or simply relaxing year-round. The pool is handicap accessible and surrounded by beautiful greenery that enhances the tranquil atmosphere. The kitchen will delight any home chef, featuring stainless steel appliances, a farmhouse sink with newer fixtures, and elegant granite countertops. This home has been meticulously maintained and updated, including: 2025: brand-new state-of-the-art Daikin HVAC system; 2025: high impact windows in a large portion of the home; 2023: new electrical panel; 2022: new roof; 2021: interior paint, new irrigation panel, and additional sprinkler heads; 2020: new pool heater. Located in the quiet Westlake Greens neighborhood, this property has no CDD fees and an incredibly low HOA fee of only $50 per year. You’ll love the convenience of being close to I-75, Hwy 301, and Hwy 41, providing easy access to downtown Tampa, Tampa International Airport, Sarasota-Bradenton International Airport, and the world-famous Gulf beaches. Enjoy all that Sun City Center has to offer — a premier active adult community featuring clubs, fitness centers, indoor and outdoor pools, tennis and pickleball courts, lawn bowling, dog parks, and golf courses. This is a true golf cart community, where residents often drive their carts to nearby medical centers, banks, restaurants, and shopping. Don’t miss your chance to own this rare tropical paradise!
Interior
Appliances
- Dishwasher, Disposal, Dryer, Microwave, Range, Refrigerator, Washer
Bedrooms
- Bedrooms: 2
Bathrooms
- Total bathrooms: 2
- Full baths: 2
Laundry
- Inside
- Laundry Room
Cooling
- Central Air
Heating
- Central, Electric
Fireplace
- None
Features
- Ceiling Fan(s), Open Floorplan, Stone Counters, Walk-In Closet(s)
Levels
- One
Size
- 1,857 sq ft
Exterior
Private Pool
- Yes
Patio & Porch
- Covered, Deck, Front Porch, Rear Porch, Screened
Roof
- Shingle
Garage
- Attached
- Garage Spaces: 2
Carport
- None
Year Built
- 1987
Lot Size
- 0.25 acres
- 10,788 sq ft
Waterfront
- No
Water Source
- Public
Sewer
- Public Sewer
Community Info
HOA Fee
- $50
- Frequency: Annually
Taxes
- Annual amount: $5,135.00
- Tax year: 2024
Senior Community
- Yes
Features
- Deed Restrictions, Fitness Center, Golf, Pool, Sidewalks, Tennis Court(s), Street Lights
Location
- City: Sun City Center
- County/Parrish: Hillsborough
- Township: 32
Listing courtesy of: Katherine Crider, RE/MAX COLLECTIVE, 813-438-7841
MLS ID: TB8444097
Listings courtesy of Stellar MLS as distributed by MLS GRID. Based on information submitted to the MLS GRID as of Dec 20, 2025, 04:46am PST. All data is obtained from various sources and may not have been verified by broker or MLS GRID. Supplied Open House Information is subject to change without notice. All information should be independently reviewed and verified for accuracy. Properties may or may not be listed by the office/agent presenting the information. Properties displayed may be listed or sold by various participants in the MLS.
Sun City Center Real Estate Agent
Want to learn more about Sun City Center?
Here is the community real estate expert who can answer your questions, take you on a tour, and help you find the perfect home.
Get started today with your personalized 55+ search experience!
Want to learn more about Sun City Center?
Get in touch with a community real estate expert who can answer your questions, take you on a tour, and help you find the perfect home.
Get started today with your personalized 55+ search experience!
Homes Sold:
55+ Homes Sold:
Sold for this Community:
Avg. Response Time:
Community Key Facts
Age Restrictions
- 55+
Amenities & Lifestyle
- See Sun City Center amenities
- See Sun City Center clubs, activities, and classes
Homes in Community
- Total Homes: 9,500
- Home Types: Single-Family, Attached
Gated
- No
Construction
- Construction Dates: 1961 - 2018
- Builder: Multiple Builders, Minto, Lennar, WCI, Del Webb
Similar homes in this community
Popular cities in Florida
The following amenities are available to Sun City Center - Sun City Center, FL residents:
- Clubhouse/Amenity Center
- Restaurant
- Fitness Center
- Indoor Pool
- Outdoor Pool
- Aerobics & Dance Studio
- Indoor Walking Track
- Hobby & Game Room
- Card Room
- Ceramics Studio
- Arts & Crafts Studio
- Lapidary Studio
- Stained Glass Studio
- Woodworking Shop
- Ballroom
- Performance/Movie Theater
- Computers
- Library
- Billiards
- Walking & Biking Trails
- Tennis Courts
- Pickleball Courts
- Shuffleboard Courts
- Horseshoe Pits
- Softball/Baseball Field
- Basketball Court
- Volleyball Court
- Lawn Bowling
- Outdoor Patio
- Pet Park
- Steam Room/Sauna
- Handball Courts
- Day Spa/Salon/Barber Shop
- Multipurpose Room
- Community Transit
- Gazebo
- Boat Launch
- Lounge
- Golf Shop/Golf Services/Golf Cart Rentals
- Gathering Areas
- Laundry
- Bar
There are plenty of activities available in Sun City Center. Here is a sample of some of the clubs, activities and classes offered here.
- Aerobics - Low Impact Aerobics
- Amateur Radio
- American Association of University Women
- Aquatic Fitness
- Art Club
- Arts and Crafts Clubs
- Audubon Society
- Ballroom Dance
- Big Band
- Big Band Dance
- Billiards
- Bingo
- Boom Ba Dance
- Bridge Association
- British Connection
- Bunka - Bunka Arts
- Bunka - Tai-Pan Bunka Club
- Caberet
- Cards
- Ceramics
- Chess Club
- China Painting
- Chorus-Men's
- Community Emergency Response Team (CERT)
- Computer Club (PC & Mac)
- Crafts and Things
- Dance
- Dog Owners Group
- Exercise
- Flexercise & Aerobic Dance
- Florida Senior American Cameo Club
- Foxy Seniors Dance Club
- Friends of European Brass
- Fun Squad
- Galaxy Bridge
- Guild of Technical & Electronic Experimenters
- High Twelve Masonic
- Historical Society of Greater SCC
- Horseshoe Pitching
- Intellectual Information Exchange Club
- International Forum of SCC
- Investment Club
- Ladies' Penny Ante
- Lapidary
- Lawn Bowling
- Man-to-Man
- Men's Club
- Men's Poker
- Metaphysical Group
- Minibus Trips
- Model Yachts
- Moonglow Dance
- Music
- Needlecrafters
- Needlepointers
- Photography
- Pickleball
- Pinochle
- Progressive Bridge
- Recreational Vehicle
- Registered Nurses
- Sawdust Engineers
- Sew 'N Sews
- Shellcrafters
- Shuffleboard
- Softball
- Solo Line Dancing
- Square Dancing
- Stained Glass
- SwimDancers
- Tap Dancing
- Tax Aide
- Tennis
- Tillers & Toilers
- Travel Club
- Unit Presidents Exchange Group (UPEG)
- Veterans
- Volleyball
- Weavers Guild
- Weight Control Group
- Women's Club
- Woodcarvers
- Writing
- Yoga




