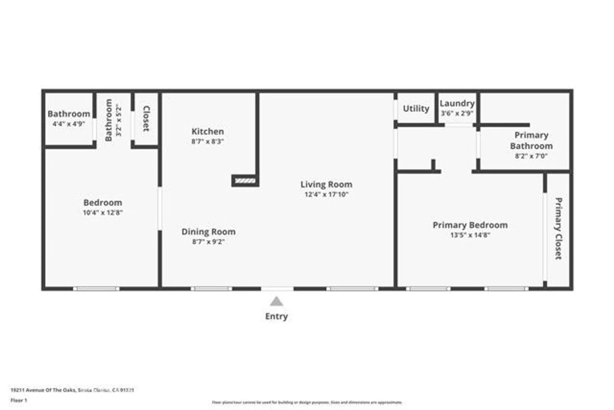
- 2 beds
- 2 baths
- 864 sq ft
19211 Avenue Of The Oaks A, Newhall, CA, 91321
Community: Friendly Valley
-
Home type
Condominium
-
Year built
1963
-
Lot size
281,446 sq ft
-
Price per sq ft
$450
-
HOA fees
$630 / Mo
-
Last updated
Today
-
Views
9
-
Saves
3
Questions? Call us: (661) 600-9605
Overview
Welcome to this Golf Course View home located in the guard gated and highly desirable 55+ community of Friendly Valley. This hidden gem sits on the 8th Green of the communities private Executive Golf course. With true pride of ownership, you are greeted by a spacious and functional open concept floor plan with a dual master layout. The kitchen was recently remodeled including a gorgeous backsplash, quartz countertops, new cabinet faces and stainless steel appliances. The primary suite is spacious and includes a step in bath with shower combo as well as in unit laundry. The spacious patio offers iconic views of the 8th green in this peaceful environment. The patio cover and windows have been replaced. This senior community offers the usual amenities of a resort style country club and includes an 18-hole pitch & putt golf courses, clubhouse, swimming pool and spa, auditorium, library, fitness center, game room, woodworking shop, ceramics studio, poker room, shuffleboard, horseshoe and basketball courts, lawn bowling, picnic areas, and BBQs. The HOA includes water, trash, sewer, building maintenance, insurance, 24/7 gated security, and so much more. This home is conveniently located in a commuter friendly location and near restaurants, shopping, parks, hiking and so much more!
Interior
Bedrooms
- Bedrooms: 2
Bathrooms
- Total bathrooms: 2
- Full baths: 2
Laundry
- Dryer Included
- Inside
- Washer Included
Cooling
- Central Air
Heating
- Central
Features
- All Bedrooms on Lower Level
Levels
- One
Size
- 864 sq ft
Exterior
Private Pool
- No
Patio & Porch
- Covered, Front Porch, See Remarks
Garage
- Garage Spaces: 1
- Carport
- Detached Carport
- Covered
Carport
- Carport Spaces:
- Carport
- Detached Carport
- Covered
Year Built
- 1963
Lot Size
- 6.46 acres
- 281,446 sq ft
Waterfront
- No
Water Source
- Public
Sewer
- Public Sewer
Community Info
HOA Information
- Association Fee: $630
- Association Fee Frequency: Monthly
- Association Fee Includes: Pickleball, Pool, Spa/Hot Tub, Barbecue, Picnic Area, Golf Course, Tennis Court(s), Sport Court, Gym, Clubhouse, Game Room, Recreation Facilities, Meeting Room, Storage, RV Parking, Cable TV, Insurance, Maintenance Grounds, Trash, Utilities, Sewer, Water, Management, Security/Guard, Security, Controlled Access, Front Yard Maintenance
Senior Community
- Yes
Features
- Curbs, Sidewalks, Street Lights, Suburban
Location
- City: Newhall
- County/Parrish: Los Angeles
Listing courtesy of: Joshua Sinatra, NextHome Real Estate Rockstars, 661-713-1036
MLS ID: SR25254025
Based on information from California Regional Multiple Listing Service, Inc. as of Feb 26, 2026 and/or other sources. All data, including all measurements and calculations of area, is obtained from various sources and has not been, and will not be, verified by broker or MLS. All information should be independently reviewed and verified for accuracy. Properties may or may not be listed by the office/agent presenting the information.
Friendly Valley Real Estate Agent
Want to learn more about Friendly Valley?
Here is the community real estate expert who can answer your questions, take you on a tour, and help you find the perfect home.
Get started today with your personalized 55+ search experience!
Want to learn more about Friendly Valley?
Get in touch with a community real estate expert who can answer your questions, take you on a tour, and help you find the perfect home.
Get started today with your personalized 55+ search experience!
Homes Sold:
55+ Homes Sold:
Sold for this Community:
Avg. Response Time:
Community Key Facts
Age Restrictions
- 55+
Amenities & Lifestyle
- See Friendly Valley amenities
- See Friendly Valley clubs, activities, and classes
Homes in Community
- Total Homes: 1,290
- Home Types: Single-Family, Attached
Gated
- Yes
Construction
- Construction Dates: 1963 - 2004
Similar homes in this community
Popular cities in California
The following amenities are available to Friendly Valley - Santa Clarita, CA residents:
- Clubhouse/Amenity Center
- Golf Course
- Fitness Center
- Outdoor Pool
- Card Room
- Ceramics Studio
- Sewing Studio
- Woodworking Shop
- Ballroom
- Computers
- Library
- Billiards
- Shuffleboard Courts
- Horseshoe Pits
- Lawn Bowling
- R.V./Boat Parking
- Demonstration Kitchen
- Picnic Area
- Multipurpose Room
- Community Transit
There are plenty of activities available in Friendly Valley. Here is a sample of some of the clubs, activities and classes offered here.
- 500 Card Club
- Aerobic Exercise Class
- Afternoon Pan
- Arts & Crafts
- Bad Boys
- Better Bidders
- Bible Study Group
- Bingo
- Book Club
- Bowlettes
- Breakfast Clubs
- Bridge Clubs
- Canasta Club
- Catholic Social Club
- Catholic Women's Club
- Choral Group
- City of Hope Chapter
- Community Council
- Computer Class
- Cribbage Club
- Doll & Ceramics Club
- Eager Beavers
- F.I.T.S.
- F.V. Travelers
- Five Aces
- Friday Dance Group
- Friendly Eight
- Frying Pan
- Jewish Group
- Lawn Bowls Club
- Line Dancing
- Little Theatre Group
- Loving Hearts and Hands
- Low Vision Group
- Macintosh Computer Class
- Men's Golf Club
- Morning Glories
- Over-the-Hill Gang
- Pinochle Clubs
- Roadrunners
- Senior Citizens Club
- Social Club
- Strengthen & Tone
- Tai Chi
- Tap Class
- Trip/Tour Steering Committee
- Veterans Club
- Women's Golf Club




