• Home type

    Single family

  • Year built

    2004

  • Lot size

    7,022 sq ft

  • Price per sq ft

    $225

  • Taxes

    $7596 / Yr

  • Last updated

    Today

  • Views

    14

  • Saves

    3


Questions? Call us: (848) 276-6271


Overview

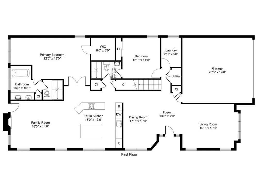
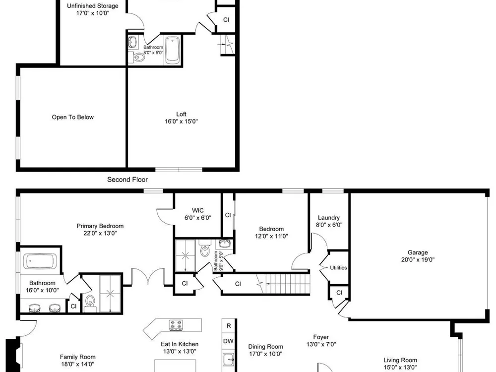
Welcome to The Renaissance an vibrant 55+ Community where luxury living meets resort-style amenities. This Tivoli Model features 3-bedroom, 3-baths, w/ a spacious loft situated on a desirable corner lot. Multiple skylights create a bright and inviting atmosphere. Inside updates include new luxury vinyl flooring on the main level, freshly painted walls and front door, and a seamless layout ideal for both relaxation and entertaining. The Dream kitchen includes newer stainless steel appliances, high line cabinetry, granite countertops, and a 6 ft center island. The family room features a gas fireplace, cathedral ceilings, and opens to a strikingly beautiful patio. The 2 car garage is freshly painted with durable epoxy flooring as an added touch of sophistication. Do not miss this rare opportunity for coastal living. Ranked by Forbes Magazine as one of America's Top places to retire for 3 years in a row!


Interior

Appliances

  • Dishwasher, Dryer, Gas Oven, Gas Range, Microwave, Refrigerator, Washer, Gas Water Heater

Bedrooms

  • Bedrooms: 3

Bathrooms

  • Total bathrooms: 3
  • Full baths: 3

Cooling

  • Central Air, Ceiling Fan(s)

Heating

  • Natural Gas, Forced Air

Fireplace

  • 1

Features

  • Blinds, Cathedral Ceiling(s), Cedar Closet(s), Skylight, Entrance Foyer, Bedroom, Kitchen, Laundry Facility, Living Room, Full Bathroom, Additional Bathroom, Storage, Dining Room, Family Room, Attic, Loft, None

Levels

  • Two

Size

  • 2,422 sq ft

Exterior

Private Pool

  • No

Patio & Porch

  • Patio

Roof

  • Asphalt

Garage

  • Attached
  • Garage Spaces: 2
  • Two Car Width
  • Asphalt
  • Garage
  • Attached
  • See Remarks
  • Garage Door Opener
  • Commercial Vehicle Allowed

Carport

  • None

Year Built

  • 2004

Lot Size

  • 0.16 acres
  • 7,022 sq ft

Waterfront

  • No

Water Source

  • Public

Sewer

  • Public Sewer

Community Info

Taxes

  • Annual amount: $7,596.00
  • Tax year: 2023

Senior Community

  • Yes

Features

  • Bocce, Clubhouse, Community Room, Pool, Playground, Fitness Center, Indoor Pool, Tennis Court(s)

Location


Listing courtesy of: RE/MAX OUR TOWN

Source: Cjmlsb
MLS ID: 2600465R

Cjmlsb

The data relating to real estate for sale on this web-site comes in part from the Internet Listing Display database of the CENTRAL JERSEY MULTIPLE LISTING SYSTEM,INC. Real estate listings held by brokerage firms other than this site-owner are marked with the ILD logo. The CENTRAL JERSEY MULTIPLE LISTING SYSTEM, INC does not warrant the accuracy, quality, reliability, suitability, completeness, usefulness or effectiveness of any information provided.The information being provided is for consumers' personal, non-commercial use and may not be used for any purpose other than to identify properties the consumer may be interested in purchasing or renting. Copyright 2025, CENTRAL JERSEY MULTIPLE LISTING SYSTEM, INC. All rights reserved. The CENTRAL JERSEY MULTIPLE LISTING SYSTEM, INC retains all rights, title and interest in and to its trademarks, service marks and copyrighted material.


Renaissance at Manchester Real Estate Agent

Want to learn more about Renaissance at Manchester?

Here is the community real estate expert who can answer your questions, take you on a tour, and help you find the perfect home.

Get started today with your personalized 55+ search experience!

Want to learn more about Renaissance at Manchester?

Get in touch with a community real estate expert who can answer your questions, take you on a tour, and help you find the perfect home.

Get started today with your personalized 55+ search experience!

Homes Sold:

55+ Homes Sold:

Sold for this Community:

Avg. Response Time:

Global - Lead Form - Buyer Only
*55places does not provide or maintain community HOA information.
By requesting more information, you agree that 55places placeholder may call, text, or email you about your inquiry, which may be made with automated means (including recorded voice messages, SMS, or text messages). You understand that your consent is not a prerequisite for buying, selling or renting a property. You may revoke your consent at any time by contacting [email protected]. Message/data rates may apply. You also agree to 55places.com's Privacy Policy and Terms of Use.

Community Key Facts

Renaissance at Manchester

Age Restrictions

  • 55+

Amenities & Lifestyle

  • See Renaissance at Manchester amenities
  • See Renaissance at Manchester clubs, activities, and classes

Homes in Community

  • Total Homes: 1,904
  • Home Types: Single-Family

Gated

  • Yes

Construction

  • Construction Dates: 1997 - 2007
  • Builder: Carlton Homes, Centex Homes

Similar homes in this community Renaissance at Manchester

$618,000
3 Beds | 3 Baths | 2455 Sq. Ft.
MLS #3991595
Brown Harris Stevens New Jersey, BROWN HARRIS STEVENS NEW JERSEY Listing Agent Contact Information: 973-744-6033
$514,900
2 Beds | 2 Baths | 2153 Sq. Ft.
MLS #NJOC2037618
E A Boniakowski Agency Inc, Joseph Marino
$514,900
2 Beds | 2 Baths | Sq. Ft.
MLS #3991117
Era Boniakowski Real Estate, ERA BONIAKOWSKI REAL ESTATE Listing Agent Contact Information: 732-968-0700

Renaissance at Manchester Real Estate Agent

Want to learn more about Renaissance at Manchester?

Here is the community real estate expert who can answer your questions, take you on a tour, and help you find the perfect home.

Get started today with your personalized 55+ search experience!

Want to learn more about Renaissance at Manchester?

Get in touch with a community real estate expert who can answer your questions, take you on a tour, and help you find the perfect home.

Get started today with your personalized 55+ search experience!

Homes Sold:

55+ Homes Sold:

Sold for this Community:

Avg. Response Time:

Global - Lead Form - Buyer Only
*55places does not provide or maintain community HOA information.
By requesting more information, you agree that 55places placeholder may call, text, or email you about your inquiry, which may be made with automated means (including recorded voice messages, SMS, or text messages). You understand that your consent is not a prerequisite for buying, selling or renting a property. You may revoke your consent at any time by contacting [email protected]. Message/data rates may apply. You also agree to 55places.com's Privacy Policy and Terms of Use.

Agent Image
 

Community Expert

Call Us Call Us
Scroll to Top