- 3 beds
- 2 baths
- 1,490 sq ft
237 W Calle Media Luz, Sahuarita, AZ, 85629
Community: Sonora at Rancho Sahuarita
-
Home type
Single family
-
Year built
2005
-
Lot size
4,312 sq ft
-
Price per sq ft
$185
-
Taxes
$2273 / Yr
-
HOA fees
$243 / Mo
-
Last updated
1 day ago
-
Views
7
-
Saves
1
Questions? Call us: (520) 900-0175
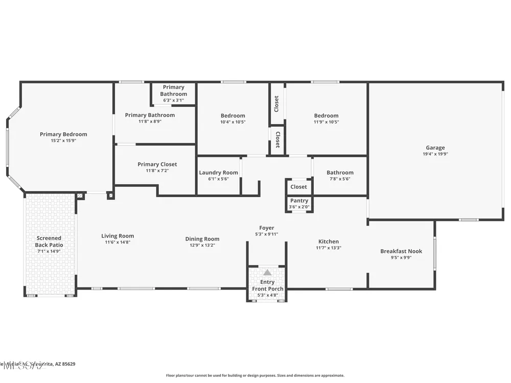
Overview
Immaculate home in the 55+ Sonora by Del Webb community--on the market for the first time! Lovingly updated, this home offers wonderful outdoor living with a lush, shaded backyard with pavers, tall oleanders, timed irrigation system, and a large screened-in patio--perfect for relaxing or entertaining. Inside, the floor plan flows seamlessly from the living room to the dining area and kitchen with breakfast nook and all windows are complete with sun screens. The primary suite features a spacious walk-in closet, laundry room, and peaceful backyard views, with a split-bedroom layout for privacy. Enjoy exclusive access to the Sonora Clubhouse with pool, spa, fitness center, and social events, plus all Rancho Sahuarita amenities including the stocked lake, water park, trails, and dog parks.
Interior
Appliances
- Dishwasher, Electric Oven, Electric Range, Exhaust Fan, Microwave
Bedrooms
- Bedrooms: 3
Bathrooms
- Total bathrooms: 2
- Full baths: 2
Laundry
- Laundry Room
Cooling
- Central Air
Heating
- Forced Air, Natural Gas
Features
- Ceiling Fan(s), Split Bedrooms, Walk-In Closet(s)
Size
- 1,490 sq ft
Exterior
Private Pool
- No
Patio & Porch
- Covered, Patio, Paver, Screened
Roof
- Tile
Garage
- Garage Spaces: 2
Carport
- None
Year Built
- 2005
Lot Size
- 0.1 acres
- 4,312 sq ft
Waterfront
- No
Water Source
- Water Company
Sewer
- Connected
Community Info
HOA Information
- Association Fee: $243
- Association Fee Frequency: Monthly
- Association Fee Includes: Clubhouse, Pickleball, Pool, Recreation Room, Spa/Hot Tub, Tennis Court(s), Maintenance Common Areas, Road Maintenance
Taxes
- Annual amount: $2,272.98
- Tax year: 2024
Senior Community
- Yes
Location
- City: Sahuarita
- County/Parrish: Pima
- Township: 16
Listing courtesy of: Lisa Larkin, RE/MAX Fine Properties Listing Agent Contact Information: [email protected]
MLS ID: 22526874
The data relating to real estate listings on this website comes in part from the Internet Data Exchange (IDX) program of Multiple Listing Service of Southern Arizona. IDX information is provided exclusively for consumers' personal, non-commercial use and may not be used for any purpose other than to identify prospective properties consumers may be interested in purchasing. Listings provided by brokerages other than 55Places.com are identified with the MLSSAZ IDX Logo. All Information Is Deemed Reliable But Is Not Guaranteed Accurate. Listing information Copyright 2026 MLS of Southern Arizona. All Rights Reserved.
Sonora at Rancho Sahuarita Real Estate Agent
Want to learn more about Sonora at Rancho Sahuarita?
Here is the community real estate expert who can answer your questions, take you on a tour, and help you find the perfect home.
Get started today with your personalized 55+ search experience!
Want to learn more about Sonora at Rancho Sahuarita?
Get in touch with a community real estate expert who can answer your questions, take you on a tour, and help you find the perfect home.
Get started today with your personalized 55+ search experience!
Homes Sold:
55+ Homes Sold:
Sold for this Community:
Avg. Response Time:
Community Key Facts
Age Restrictions
- 55+
Amenities & Lifestyle
- See Sonora at Rancho Sahuarita amenities
- See Sonora at Rancho Sahuarita clubs, activities, and classes
Homes in Community
- Total Homes: 428
- Home Types: Single-Family, Attached
Gated
- No
Construction
- Construction Dates: 2004 - 2008
- Builder: Del Webb
Similar homes in this community
Popular cities in Arizona
The following amenities are available to Sonora at Rancho Sahuarita - Sahuarita, AZ residents:
- Clubhouse/Amenity Center
- Fitness Center
- Outdoor Pool
- Aerobics & Dance Studio
- Card Room
- Arts & Crafts Studio
- Ballroom
- Performance/Movie Theater
- Library
- Billiards
- Pickleball Courts
- Bocce Ball Courts
- Horseshoe Pits
- Lakes - Fishing Lakes
- Outdoor Patio
- Gazebo
There are plenty of activities available in Sonora at Rancho Sahuarita. Here is a sample of some of the clubs, activities and classes offered here.
- Antique Car Club
- Arts & Crafts
- Bocce
- Book Club
- Bridge
- Bugger Bridge
- Bunco
- Canasta
- Cancer Support Group
- Ceramics
- Dance
- Dining Out
- Investment Discussion
- Mahjong
- Pickleball
- Poker
- Quilting
- R.O.M.E.O's (Retired Old Men Eating Out)
- Red Hat Society
- Scrabble
- Singles
- Spades
- Step Class
- Target Shooting Gun
- Trivial Pursuit
- Zumba




