• Home type

    Single family

  • Year built

    2022

  • Lot size

    5,227 sq ft

  • Price per sq ft

    $312

  • Taxes

    $5331 / Yr

  • HOA fees

    $414 / Mo

  • Last updated

    1 day ago

  • Views

    16

  • Saves

    3


Questions? Call us: (689) 210-3581


Overview

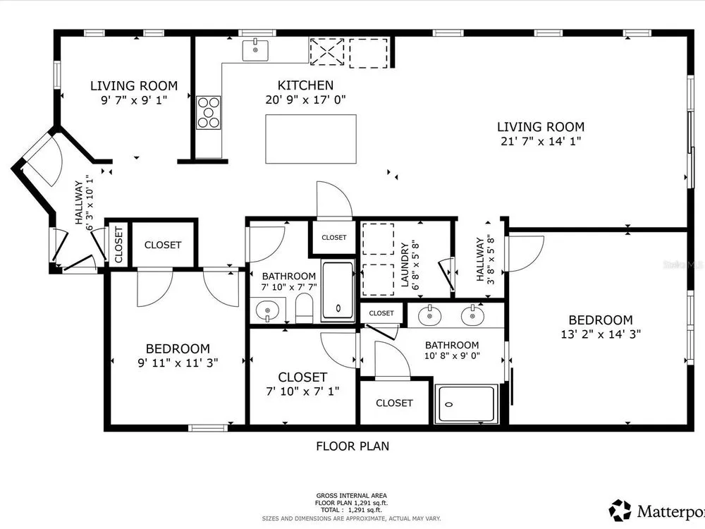
Welcome home to this move-in ready showpiece where every luxurious upgrade has already been thoughtfully added — from plantation shutters and custom remote-controlled blinds to built-in cabinetry and closets, epoxy-coated garage floors, and a whole-home water softener and filtration system. Every detail has been designed for beauty, comfort, and convenience. As you enter through the guarded gatehouse, you’ll be greeted by lush landscaping, scenic walking trails, and friendly neighbors who make this award-winning 55+ community truly special. Del Webb Sunbridge isn’t just a neighborhood it’s a lifestyle! Spend your days soaking up the sun in the resort-style, zero-entry pool, joining friends for a game of pickleball or tennis, or unleashing your creativity in one of the community’s many art studios. Enjoy dining and drinks at the on-site tavern, attend live concerts in the 27,000-square-foot clubhouse, or simply unwind with a peaceful walk through nature-filled trails. With daily clubs, activities, and events, you can stay as active or as relaxed as you wish. This stunning 2-bedroom, 2-bath Contour floor plan offers modern elegance and warm, inviting comfort. The open-concept living area is filled with natural light streaming through your glass-paneled front door, while the tile flooring throughout keeps the space fresh and easy to maintain. Your gourmet kitchen is a dream come true, featuring stainless steel built-in appliances, quartz countertops, a herringbone backsplash, a large island, and soft-close cabinetry surrounding a natural gas cooktop, perfect for anyone who loves to cook and entertain. Step outside to your covered lanai and extended patio, complete with an outdoor kitchen and hot tub, where you can relax and take in the sparkling pond view. Whether it’s morning coffee, an evening cocktail, or a weekend barbecue with friends, this outdoor space is designed to impress. Even better, yard maintenance and high-speed internet are included, so you can focus on enjoying your best life. Located just minutes from vibrant Lake Nona, this home in Del Webb Sunbridge combines resort-style living with everyday luxury. With its top-tier amenities, prime location, and immaculate upgrades, this is more than a home, it’s a place to live your dream lifestyle.


Interior

Appliances

  • Bar Fridge, Built-In Oven, Dishwasher, Disposal, Dryer, Microwave, Range, Range Hood, Refrigerator, Tankless Water Heater, Washer, Water Filter, Water Softener

Bedrooms

  • Bedrooms: 2

Bathrooms

  • Total bathrooms: 2
  • Full baths: 2

Laundry

  • Electric Dryer Hookup
  • Gas Dryer Hookup
  • Inside
  • Laundry Room
  • Washer Hookup

Cooling

  • Central Air

Heating

  • Heat Pump, Natural Gas

Fireplace

  • None

Features

  • In-Wall Pest Control, Kitchen/Family Room Combo, Living/Dining Room, Open Floorplan, Main Level Primary, Stone Counters, Thermostat, Walk-In Closet(s), Window Treatments

Levels

  • One

Size

  • 1,405 sq ft

Exterior

Private Pool

  • No

Patio & Porch

  • Front Porch, Patio, Porch, Screened

Roof

  • Shingle

Garage

  • Attached
  • Garage Spaces: 2
  • Driveway
  • Electric Vehicle Charging Station(s)
  • Garage Door Opener

Carport

  • None

Year Built

  • 2022

Lot Size

  • 0.12 acres
  • 5,227 sq ft

Waterfront

  • No

Water Source

  • Public

Sewer

  • Public Sewer

Community Info

HOA Fee

  • $414
  • Frequency: Monthly
  • Includes: Clubhouse, Fence Restrictions, Fitness Center, Gated, Lobby Key Required, Optional Additional Fees, Pickleball, Pool, Recreation Facilities, Spa/Hot Tub, Tennis Court(s), Trail(s), Vehicle Restrictions, Wheelchair Accessible

Taxes

  • Annual amount: $5,331.39
  • Tax year: 2024

Senior Community

  • Yes

Features

  • Association Recreation - Owned, Clubhouse, Community Mailbox, Deed Restrictions, Dog Park, Fitness Center, Gated, Guarded Entrance, Golf Carts Permitted, Modified for Accessibility, Irrigation-Reclaimed Water, No Truck/RV/Motorcycle Parking, Pool, Restaurant, Sidewalks, Special Community Restrictions, Tennis Court(s), Wheelchair Accessible

Location

  • City: Saint Cloud
  • County/Parrish: Osceola
  • Township: 25S

Listing courtesy of: Jory Williams, RE/MAX INNOVATION, 407-281-1053

Source: Stellar
MLS ID: O6353355

Stellar

Listings courtesy of Stellar MLS as distributed by MLS GRID. Based on information submitted to the MLS GRID as of Oct 21, 2025, 01:21pm PDT. All data is obtained from various sources and may not have been verified by broker or MLS GRID. Supplied Open House Information is subject to change without notice. All information should be independently reviewed and verified for accuracy. Properties may or may not be listed by the office/agent presenting the information. Properties displayed may be listed or sold by various participants in the MLS.


Del Webb Sunbridge Real Estate Agent

Want to learn more about Del Webb Sunbridge?

Here is the community real estate expert who can answer your questions, take you on a tour, and help you find the perfect home.

Get started today with your personalized 55+ search experience!

Want to learn more about Del Webb Sunbridge?

Get in touch with a community real estate expert who can answer your questions, take you on a tour, and help you find the perfect home.

Get started today with your personalized 55+ search experience!

Homes Sold:

55+ Homes Sold:

Sold for this Community:

Avg. Response Time:

Global - Lead Form - Buyer Only
*55places does not provide or maintain community HOA information.
By requesting more information, you agree that 55places placeholder may call, text, or email you about your inquiry, which may be made with automated means (including recorded voice messages, SMS, or text messages). You understand that your consent is not a prerequisite for buying, selling or renting a property. You may revoke your consent at any time by contacting [email protected]. Message/data rates may apply. You also agree to 55places.com's Privacy Policy and Terms of Use.

Community Key Facts

Del Webb Sunbridge

Age Restrictions

  • 55+

Amenities & Lifestyle

  • See Del Webb Sunbridge amenities
  • See Del Webb Sunbridge clubs, activities, and classes

Homes in Community

  • Total Homes: 1,300
  • Home Types: Single-Family, Attached

Gated

  • Yes

Construction

  • Construction Dates: 2019 - Present
  • Builder: Del Webb

Similar homes in this community Del Webb Sunbridge

$599,000
4 Beds | 3 Baths | 2249 Sq. Ft.
MLS #O6353256
Weichert Realtors Hallmark Properties, Alisa Hildebrand
$499,990
3 Beds | 3 Baths | 2038 Sq. Ft.
MLS #O6351448
Keller Williams Advantage Iii, Kathleen Hereford
$417,880
3 Beds | 3 Baths | 1767 Sq. Ft.
MLS #G5103226
Olympus Executive Realty Inc, Nancy Pruitt

Del Webb Sunbridge Real Estate Agent

Want to learn more about Del Webb Sunbridge?

Here is the community real estate expert who can answer your questions, take you on a tour, and help you find the perfect home.

Get started today with your personalized 55+ search experience!

Want to learn more about Del Webb Sunbridge?

Get in touch with a community real estate expert who can answer your questions, take you on a tour, and help you find the perfect home.

Get started today with your personalized 55+ search experience!

Homes Sold:

55+ Homes Sold:

Sold for this Community:

Avg. Response Time:

Global - Lead Form - Buyer Only
*55places does not provide or maintain community HOA information.
By requesting more information, you agree that 55places placeholder may call, text, or email you about your inquiry, which may be made with automated means (including recorded voice messages, SMS, or text messages). You understand that your consent is not a prerequisite for buying, selling or renting a property. You may revoke your consent at any time by contacting [email protected]. Message/data rates may apply. You also agree to 55places.com's Privacy Policy and Terms of Use.

Agent Image
 

Community Expert

Call Us Call Us
Scroll to Top