- 2 beds
- 2 baths
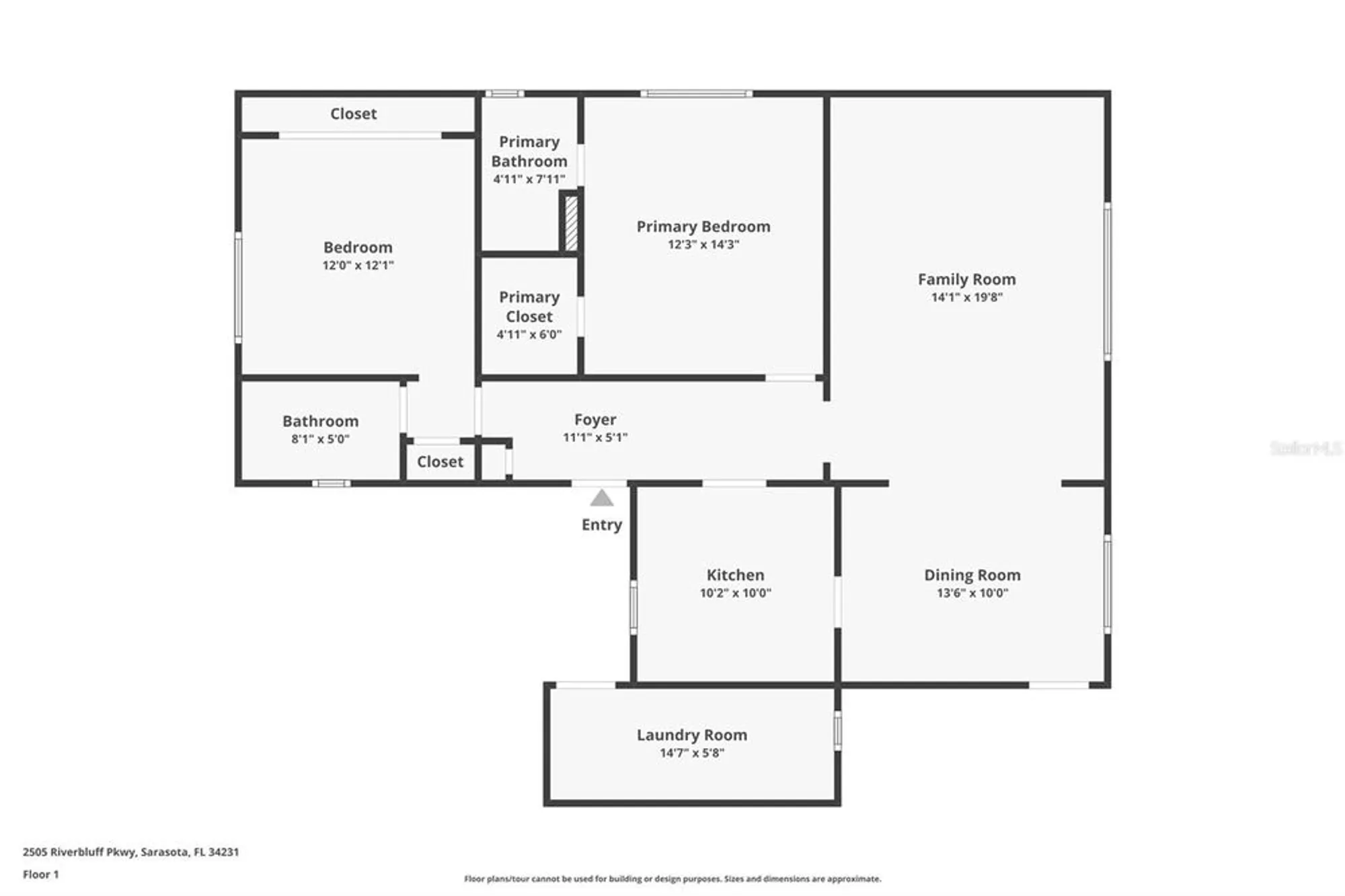
- 1,120 sq ft
2505 Riverbluff Pkwy # V196, Sarasota, FL, 34231
Community: Strathmore Riverside Villas
-
Home type
Villa
-
Year built
1971
-
Lot size
0 sq ft
-
Price per sq ft
$196
-
Taxes
$2287 / Yr
-
HOA fees
$2025 /
-
Last updated
Today
-
Views
8
Questions? Call us: (941) 260-2472
Overview
Sunny Coastal Living Minutes from Siesta Key Beach! Enjoy the Florida lifestyle in this immaculate, turnkey-furnished 2-bed, 2-bath villa in sought-after Strathmore Riverside, an active 55+ waterfront community. This well-maintained home offers a new roof and gutters (2024), new water heater (2025), AC (2021), updated windows, tile floors, and a whole-house surge protector for peace of mind. The kitchen and baths feature granite countertops, and both bedrooms have en-suite baths for comfort and privacy. All appliances are in working order, with a $1,000 appliance credit for updates. Enjoy a maintenance-free lifestyle with heated pool, clubhouse, social activities, and marina offering first-come, first-served boat docks ($1,344/yr). Bring your kayak and explore Phillippi Creek, the Intracoastal, and the Gulf right from your community. Perfect as a seasonal retreat or full-time Sarasota home, this villa combines comfort, convenience, and an unbeatable coastal location near Siesta Key Beach, dining, shopping, and downtown’s arts and culture.
Interior
Appliances
- Dryer, Electric Water Heater, Microwave, Range, Refrigerator, Washer
Bedrooms
- Bedrooms: 2
Bathrooms
- Total bathrooms: 2
- Full baths: 2
Laundry
- In Hall
- Electric Dryer Hookup
- Laundry Room
- Washer Hookup
Cooling
- Central Air
Heating
- Central, Electric
Fireplace
- None
Features
- Open Floorplan, Stone Counters, Thermostat, Walk-In Closet(s), Window Treatments
Levels
- One
Size
- 1,120 sq ft
Exterior
Private Pool
- No
Roof
- Membrane
Garage
- None
Carport
- Carport Spaces:
Year Built
- 1971
Waterfront
- No
Water Source
- Public
Sewer
- Public Sewer
Community Info
HOA Fee
- $2,025
- Includes: Cable TV, Clubhouse, Fitness Center, Maintenance, Pool
Taxes
- Annual amount: $2,287.00
- Tax year: 2023
Senior Community
- Yes
Features
- Association Recreation - Owned, Buyer Approval Required, Clubhouse, Fitness Center, Pool
Location
- City: Sarasota
- County/Parrish: Sarasota
- Township: 37
Listing courtesy of: Alice Sciarrino, GALLERY PROPERTIES INTERNATION, 941-957-0833
MLS ID: A4669796
Listings courtesy of Stellar MLS as distributed by MLS GRID. Based on information submitted to the MLS GRID as of Nov 04, 2025, 12:08pm PST. All data is obtained from various sources and may not have been verified by broker or MLS GRID. Supplied Open House Information is subject to change without notice. All information should be independently reviewed and verified for accuracy. Properties may or may not be listed by the office/agent presenting the information. Properties displayed may be listed or sold by various participants in the MLS.
Strathmore Riverside Villas Real Estate Agent
Want to learn more about Strathmore Riverside Villas?
Here is the community real estate expert who can answer your questions, take you on a tour, and help you find the perfect home.
Get started today with your personalized 55+ search experience!
Want to learn more about Strathmore Riverside Villas?
Get in touch with a community real estate expert who can answer your questions, take you on a tour, and help you find the perfect home.
Get started today with your personalized 55+ search experience!
Homes Sold:
55+ Homes Sold:
Sold for this Community:
Avg. Response Time:
Community Key Facts
Age Restrictions
- 55+
Amenities & Lifestyle
- See Strathmore Riverside Villas amenities
- See Strathmore Riverside Villas clubs, activities, and classes
Homes in Community
- Total Homes: 336
- Home Types: Attached
Gated
- No
Construction
- Construction Dates: 1970 - 1971
- Builder: Paver
Similar homes in this community
Popular cities in Florida
The following amenities are available to Strathmore Riverside Villas - Sarasota, FL residents:
- Clubhouse/Amenity Center
- Fitness Center
- Outdoor Pool
- Library
- Billiards
- Shuffleboard Courts
- Lakes - Scenic Lakes & Ponds
- Lakes - Fishing Lakes
- Multipurpose Room
- Boat Launch
There are plenty of activities available in Strathmore Riverside Villas. Here is a sample of some of the clubs, activities and classes offered here.
- Aerobics
- Book Club
- Bridge
- Computer Class
- Euchre
- Line Dancing
- Pinochle
- Poker
- Qi Chong
- Rummi-Kub
- SRV Singers
- Shuffleboard
- Tai Chi




